+ Lisa oma töö      

Otsid ehitajat "Fassaaditööd" valdkonnast?

Parima pakkumise ja teostaja leidmiseks lisa oma töö.

Eramaja fassaadi krohvimine + SISETÖÖD

ID 80376

603 vaatamist

Prindi

  • check Pakkumiste tegemine
    kuni 19.04.2023
  • check Võitja valik kuni
    26.04.2023
  • 3 Töö teostamine
    ja hinnang
Hanke lõpp: K, 19. aprill, 2023
Maakond: Harjumaa
Linn: Paldiski
Tööde algus: N, 01. juuni, 2023 (Soovituslik)
Tööde lõpp: L, 30. september, 2023 (Soovituslik)
Ehitusmaterjalid: Töö tegija poolt
Soovin pakkumisi: Summa kogu projektile

Töö sisu

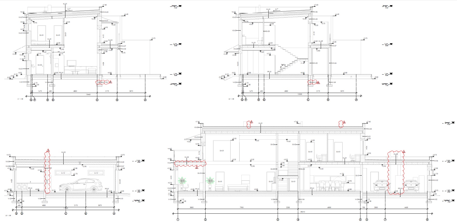
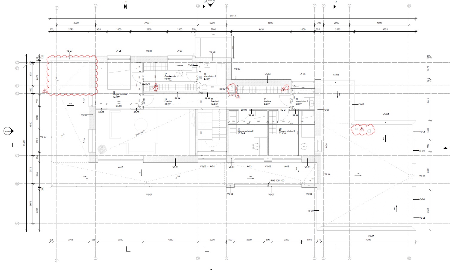
- Bauroc eramaja fassaadi krohvimine, lõppviimistlus silikoonkrohviga.
- Bauroc eramaja siseseinte krohvimine ja lõppviimistlus kuni värvini + laed Bauroc paneelid viimistleda

Pildid, video ja failid

Hanke korraldaja: eraisik ID5841

Pakkumised

Pakkumisi kokku: 5

Ettevõte Summa Käibemaks Lisatud Vestlus
Kasutaja ikoon ID65371
Pakkuja profiil Väike nool paremale
83 000€ KM lisandub KM lisandub 10.04.2023 Vestlus (0)

Pakkumise kirjeldus:

hind võib muutuda juuni kuuks materjali hinna tõusu tõttu

Kasutaja ikoon ID65125
Pakkuja profiil Väike nool paremale
80 000€ KM lisandub KM lisandub 12.04.2023 Vestlus (0)
Kasutaja ikoon ID73479
Pakkuja profiil Väike nool paremale
90 000€ Sisaldab KM Sisaldab KM 19.04.2023 Vestlus (0)

Pakkumise kirjeldus:

Tere

Hea meelega teostame tööd teie jaoks.Tööd tehakse kvaliteetselt ja võimalikult kiiresti.Pakume 5 aastane garantii oma töödele.
Pakume teile teha plekikatuse paigaldust, topeltvaltssi tehnoloogia (ilma kruvideta). See on kõige parim lahendus oma majale. Garantii on aastateks.
See hind sisaldab kõiki nimekirjas olevaid soovitud tööd.
Spet ... Rohkem

Kasutaja ikoon ID72809
Pakkuja profiil Väike nool paremale
81 400€ KM lisandub KM lisandub 19.04.2023 Vestlus (0)

Pakkumise kirjeldus:

Tere,

Pakkumine hankes kirjeldatule. Sisaldab materjale, tööd ning abivahendid (näit telling).

Töödele 2a garantiid. Lisaks omame kõiki vastavaid kindlustusi, et ei tuleks ootamatusi.

Kasutaja ikoon ID73625
Pakkuja profiil Väike nool paremale
100 000€ Ei ole KMKR Ei ole KMKR 19.04.2023 Vestlus (0)

Küsimused hanke korraldajale

Hanke korraldajale ei ole veel küsimusi esitatud.

Lisa küsimus

Lisa küsimus

Minu pakkumine

Reeglid

Pakkumise kirjelduse väli on mõeldud pakkumise detailsemaks lahti kirjutamiseks. Pikema teksti mugavaks sisestamiseks klikkige kasti paremal ülaservas oleval ikoonil.
Pakkumist tehes on keelatud postitada enda kontaktandmeid (nimi, telefon, aadress jne). Me jälgime ja analüüsime pakkumisi, et vältida pettuseid ja reeglite rikkumisi.
Rikkumise puhul kasutajakonto blokeeritakse.

 

Teisi töid samas valdkonnas

Valdkonnas "Fassaaditööd" on 12 aktiivset tööd

Akende ja viilude parandus ja värvimine

Asukoht: Valgamaa, Valga
Aega jäänud: 12h 35 min
Tehtud pakkumisi: 3

Eramaja vintskapide laudise paigaldus

Asukoht: Pärnumaa, Pärnu-Jaagupi
Aega jäänud: 9p 12h
Tehtud pakkumisi: 2

Vanemad teated:

Vaata kõiki

Sellel veebilehel kasutatakse küpsiseid. Kasutamist jätkates nõustute küpsiste kasutamisega.

Sulge
 
Minu pakkumine

Reeglid

Pakkumise kirjelduse väli on mõeldud pakkumise detailsemaks lahti kirjutamiseks. Pikema teksti mugavaks sisestamiseks klikkige kasti paremal ülaservas oleval ikoonil.
Pakkumist tehes on keelatud postitada enda kontaktandmeid (nimi, telefon, aadress jne). Me jälgime ja analüüsime pakkumisi, et vältida pettuseid ja reeglite rikkumisi.
Rikkumise puhul kasutajakonto blokeeritakse.