+ Lisa oma töö      

Otsid ehitajat "Üldehitus" valdkonnast?

Parima pakkumise ja teostaja leidmiseks lisa oma töö.

Korteri kapitaalremont

ID 79896

684 vaatamist

Prindi

  • check Pakkumiste tegemine
    kuni 26.04.2023
  • check Võitja valik kuni
    03.05.2023
  • 3 Töö teostamine
    ja hinnang
Hanke lõpp: K, 26. aprill, 2023
Maakond: Harjumaa
Linn: Tallinn
Tööde algus: E, 15. mai, 2023 (Soovituslik)
Tööde lõpp: N, 31. august, 2023 (Soovituslik)
Ehitusmaterjalid: Töö tegija poolt
Soovin pakkumisi: Summa kogu projektile

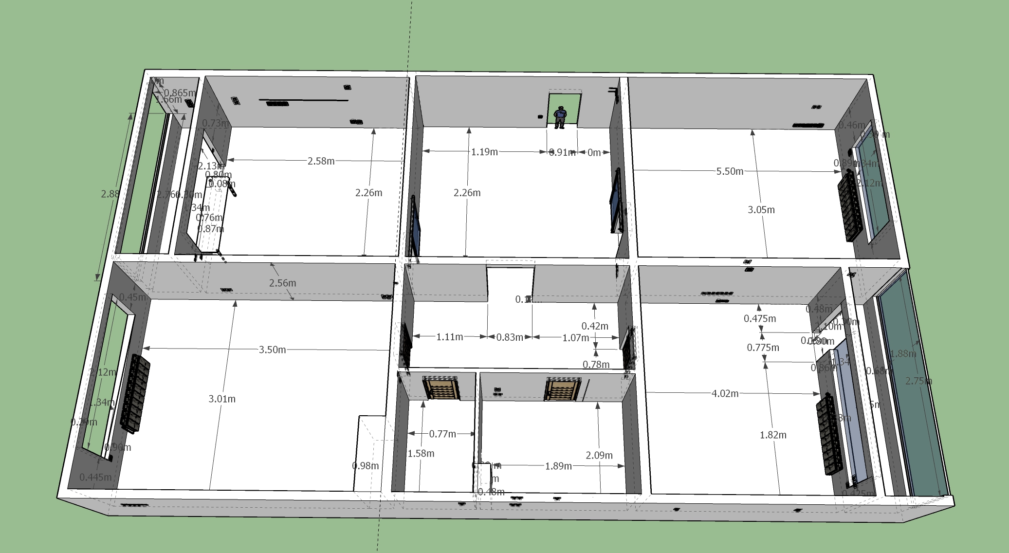
Töö sisu

Märkused:
Elektritööde teostaja täpsustamisel, kandidaat olemas. Teostab oma töid kõige esimesena.
Konditsioneeri paigaldaja olemas.

Vaja järgmisi töid:
1. Ripplagede paigaldus kõikidesse ruumidese..
2. Kütte radiaatorite vahetus
3. Laminaat põranda paigutus elutuppa, magamistuppa ja lapsetuppa
4. Vajadusel seinte sirgendamine ja värvimine pestava värviga. Lapsetuppa ühele seinale läheb tapeet.
5. Vannitoas/WC seintel suur pliit. Mõõdikute asukoha muutmine WC seina juurde, mis kergelt avatav ja tagab ligipääsu torustikule ja mõõdikutele. Dušši ja wc potti paigaldus.
6. Epoksiidpõranda paigasldus esikusse, vahekäiku, kööki, rõdudele ja vannituppa/wc(seoses dušši kasutusest, vaja kalduvus, mis viib kõik võimaliku vee kanalisatsiooni avapoole)
7. Rõdu plastik akende paigaldus. Võimalik, et vaheta ka ülejäänud vanad plastikaknad uute vastu.
8. Samuti ühel rõdul raamideta klaaside paigaldus,/parandus
9.Köögimööbel ja tehnika(samsung või LG). Tehnikas pliit, ahi(sisse ehitatud), nõudepesumasin. Võimalik ka külmkapp ja mikrolaineahi.

Mõningad detailid veel täpsustamisel. Nagu rõdu plastikakna paigaldus, akende vahetus. Kindlasti on detaile mida vaja täpsustada, kuna projekti videos jääb arusaamatuks.

Pildid, video ja failid

Hanke korraldaja: eraisik ID73505

Pakkumised

Pakkumisi kokku: 4

Ettevõte Summa Käibemaks Lisatud Vestlus
Kasutaja ikoon ID52293
Pakkuja profiil Väike nool paremale
30 000€ Sisaldab KM Sisaldab KM 24.03.2023 Vestlus (0)
Kasutaja ikoon ID72080
Pakkuja profiil Väike nool paremale
22 000€ Ei ole KMKR Ei ole KMKR 25.03.2023 Vestlus (0)

Pakkumise kirjeldus:

Pakkumine sisaldab materjali osaliselt . Parimat.

Kasutaja ikoon ID72862
Pakkuja profiil Väike nool paremale
25 000€ Ei ole KMKR Ei ole KMKR 26.03.2023 Vestlus (0)

Pakkumise kirjeldus:

Täpsemad andmed ja lõplik hind täpsustatakse objektil.

Kasutaja ikoon ID73102
Pakkuja profiil Väike nool paremale
18 000€ Sisaldab KM Sisaldab KM 27.03.2023 Vestlus (1)

Pakkumise kirjeldus:

Palun märkige maja täpsed mõõdud. Kui palju on maja üldpind
Hinnapakkumine on esialgne. Teades täpseid mõõtmeid, saate arvutada täpsema summa
Kas soovite ka vannituppa pinglaed?

Küsimused hanke korraldajale

Hanke korraldajale ei ole veel küsimusi esitatud.

Lisa küsimus

Lisa küsimus

Minu pakkumine

Reeglid

Pakkumise kirjelduse väli on mõeldud pakkumise detailsemaks lahti kirjutamiseks. Pikema teksti mugavaks sisestamiseks klikkige kasti paremal ülaservas oleval ikoonil.
Pakkumist tehes on keelatud postitada enda kontaktandmeid (nimi, telefon, aadress jne). Me jälgime ja analüüsime pakkumisi, et vältida pettuseid ja reeglite rikkumisi.
Rikkumise puhul kasutajakonto blokeeritakse.

 

Teisi töid samas valdkonnas

Valdkonnas "Üldehitus" on 27 aktiivset tööd

Terassi õlitamine, 13,7 ruutu

Asukoht: Harjumaa, Saue
Aega jäänud: 5p 14h
Tehtud pakkumisi: 4

Eramaja ehitus

Asukoht: Harjumaa, Suurupi
Aega jäänud: 4p 14h
Tehtud pakkumisi: 4

Vanemad teated:

Vaata kõiki

Sellel veebilehel kasutatakse küpsiseid. Kasutamist jätkates nõustute küpsiste kasutamisega.

Sulge
 
Minu pakkumine

Reeglid

Pakkumise kirjelduse väli on mõeldud pakkumise detailsemaks lahti kirjutamiseks. Pikema teksti mugavaks sisestamiseks klikkige kasti paremal ülaservas oleval ikoonil.
Pakkumist tehes on keelatud postitada enda kontaktandmeid (nimi, telefon, aadress jne). Me jälgime ja analüüsime pakkumisi, et vältida pettuseid ja reeglite rikkumisi.
Rikkumise puhul kasutajakonto blokeeritakse.