+ Lisa oma töö      

Otsid ehitajat "Üldehitus" valdkonnast?

Parima pakkumise ja teostaja leidmiseks lisa oma töö.

Suvila juurdeehitis

ID 79745

529 vaatamist

Prindi

  • check Pakkumiste tegemine
    kuni 03.04.2023
  • check Võitja valik kuni
    10.04.2023
  • 3 Töö teostamine
    ja hinnang
Hanke lõpp: E, 3. aprill, 2023
Maakond: Saaremaa
Muu asula: Liigalaskma
Tööde algus: E, 01. mai, 2023 (Soovituslik)
Tööde lõpp: L, 15. juuli, 2023 (Soovituslik)
Ehitusmaterjalid: Töö tellija poolt
Soovin pakkumisi: Tüki- või ühikuhinda

Töö sisu

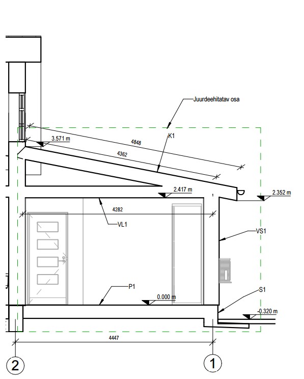
Olemasolevale suvilale juurdeehitise ehitamine - vundamendist katuseni, ilma siseviimistuseta. Kaks tuba, WC, san. ruum ja veranda.

Pildid, video ja failid

Hanke korraldaja: eraisik ID73402

Pakkumised

Pakkumisi kokku: 5

Ettevõte Summa Käibemaks Lisatud Vestlus
Kasutaja ikoon ID72717
Pakkuja profiil Väike nool paremale
16 000€ Ikoon kell Sisaldab KM Sisaldab KM 03.04.2023 Vestlus (0)
Kasutaja ikoon ID72647
Pakkuja profiil Väike nool paremale
45 000€ Sisaldab KM Sisaldab KM 03.04.2023 Vestlus (0)

Pakkumise kirjeldus:

Ainult töö hind, matrjal ei ole hinnas. Võime teha pakkumise ka koos materjaliga.

Kasutaja ikoon ID73479
Pakkuja profiil Väike nool paremale
33 000€ Sisaldab KM Sisaldab KM 03.04.2023 Vestlus (0)

Pakkumise kirjeldus:

Tere

Hea meelega teostame tööd teie jaoks.Tööd tehakse kvaliteetselt ja võimalikult kiiresti.Pakume 5 aastane garantii oma töödele.

Pakume teile teha plekikatuse paigaldust, topeltvaltssi tehnoloogia (ilma kruvideta). See on kõige parim lahendus oma majale. Garantii on aastateks.


See hind sisaldab kõiki nimekirjas olevaid soovitud tööd. ... Rohkem

Kasutaja ikoon ID73625
Pakkuja profiil Väike nool paremale
225 000€ Sisaldab KM Sisaldab KM 03.04.2023 Vestlus (0)

Pakkumise kirjeldus:

Tere,

Ehitusfirma on Sinu tööst huvitatud. Tööd teevad asjatundjad. Ettevõte on valmis andma tööde teostamisele garantii.

Lugupidamisega, Anton

Kasutaja ikoon ID72809
Pakkuja profiil Väike nool paremale
74 300€ KM lisandub KM lisandub 03.04.2023 Vestlus (0)

Pakkumise kirjeldus:

Hind sisaldab hankes kirjeldatud töid. Ilma ehitusmaterjalideta nagu kirjas.

2a garantii. Maksmine ainult arve alusel.

Küsimused hanke korraldajale

Hanke korraldajale ei ole veel küsimusi esitatud.

Lisa küsimus

Lisa küsimus

Minu pakkumine

Reeglid

Pakkumise kirjelduse väli on mõeldud pakkumise detailsemaks lahti kirjutamiseks. Pikema teksti mugavaks sisestamiseks klikkige kasti paremal ülaservas oleval ikoonil.
Pakkumist tehes on keelatud postitada enda kontaktandmeid (nimi, telefon, aadress jne). Me jälgime ja analüüsime pakkumisi, et vältida pettuseid ja reeglite rikkumisi.
Rikkumise puhul kasutajakonto blokeeritakse.

 

Teisi töid samas valdkonnas

Valdkonnas "Üldehitus" on 32 aktiivset tööd

Põrandakütte torustiku ja kollektori paigaldus.

Asukoht: Harjumaa, Kurkse
Aega jäänud: 16p 3h
Tehtud pakkumisi: 4

Kuuri lammutus

Asukoht: Pärnumaa
Aega jäänud: 3p 3h
Tehtud pakkumisi: 3

Vanemad teated:

Vaata kõiki

Sellel veebilehel kasutatakse küpsiseid. Kasutamist jätkates nõustute küpsiste kasutamisega.

Sulge
 
Minu pakkumine

Reeglid

Pakkumise kirjelduse väli on mõeldud pakkumise detailsemaks lahti kirjutamiseks. Pikema teksti mugavaks sisestamiseks klikkige kasti paremal ülaservas oleval ikoonil.
Pakkumist tehes on keelatud postitada enda kontaktandmeid (nimi, telefon, aadress jne). Me jälgime ja analüüsime pakkumisi, et vältida pettuseid ja reeglite rikkumisi.
Rikkumise puhul kasutajakonto blokeeritakse.