+ Lisa oma töö      

Otsid ehitajat "Üldehitus" valdkonnast?

Parima pakkumise ja teostaja leidmiseks lisa oma töö.

Elamu renoveerimine ja juurdeehitus

ID 79667

822 vaatamist

Prindi

  • check Pakkumiste tegemine
    kuni 16.04.2023
  • check Võitja valik kuni
    23.04.2023
  • 3 Töö teostamine
    ja hinnang
Hanke lõpp: P, 16. aprill, 2023
Maakond: Saaremaa
Muu asula: Vaivere
Tööde algus: N, 01. juuni, 2023 (Soovituslik)
Tööde lõpp: N, 31. august, 2023 (Soovituslik)
Ehitusmaterjalid: Töö tegija poolt
Soovin pakkumisi: Summa kogu projektile

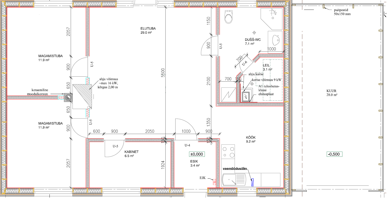
Töö sisu

Elamu renoveerimine ja juurdeehituse teostamine.
Põrandakütte paigaldamine, vundamendi soojustamine+ juurdeehitus.
110 ruutu, ühekorruseline

Pildid, video ja failid

Hanke korraldaja: eraisik ID73341

Pakkumised

Pakkumisi kokku: 1

Ettevõte Summa Käibemaks Lisatud Vestlus
Kasutaja ikoon ID73479
Pakkuja profiil Väike nool paremale
50 000€ Sisaldab KM Sisaldab KM 16.04.2023 Vestlus (0)

Pakkumise kirjeldus:

Tere

Hea meelega teostame tööd teie jaoks.Tööd tehakse kvaliteetselt ja võimalikult kiiresti.Pakume 5 aastane garantii oma töödele.
Pakume teile teha plekikatuse paigaldust, topeltvaltssi tehnoloogia (ilma kruvideta). See on kõige parim lahendus oma majale. Garantii on aastateks.
See hind sisaldab kõiki nimekirjas olevaid soovitud tööd.
Spet ... Rohkem

Küsimused hanke korraldajale

Küsimus: private ID72717   17.03.2023 14:34
Tere,
Kas oleks võimalik lisada juurde pildid hoonest? Mingid mõõdudki või parimal juhul maja plaan ja soovitud juurdeehituse suurus?
Kas põrandakütte soov on tervele majale või ala. vannituba/wc?
Renoveerimisele sooviks täpsustust. Kas maja täielik renoveerimine, ainult väljast või ainult seest?

Teavita reeglite rikkumisest

Korraldaja vastus: 17.03.2023 14:59

Tere. Põrandakütte paigaldus kogu majale, kaasa arvatud juurdeehitusele. Plaani saan peagi lisada ja maja mõõdud koos juurdeehituse plaanitavate mõõtudega.

Teavita reeglite rikkumisest

Küsimus: private ID72080   18.03.2023 09:11
Tere ! Mis põranda kütte lahendus vesi või elekter ? Parimat .

Teavita reeglite rikkumisest

Korraldaja vastus: 18.03.2023 09:49

Tere. Vesi.

Teavita reeglite rikkumisest

Küsimus: private ID70017   20.03.2023 18:09
Tere.
Kas rohkem infot ka saaks v kohapeal arutada?

Teavita reeglite rikkumisest

Korraldaja vastus: 21.03.2023 09:02

Tere.
Saab ikka, saab ka kohapeale tulla. Kuidas ühendust luua?

Teavita reeglite rikkumisest

Küsimus: private ID70017   21.03.2023 09:03
Viis kaheksa üks kaks null kuus kaks null

Teavita reeglite rikkumisest

Korraldaja vastus:
Hanke korraldaja ei ole küsimusele veel vastanud

Lisa küsimus

Lisa küsimus

Minu pakkumine

Reeglid

Pakkumise kirjelduse väli on mõeldud pakkumise detailsemaks lahti kirjutamiseks. Pikema teksti mugavaks sisestamiseks klikkige kasti paremal ülaservas oleval ikoonil.
Pakkumist tehes on keelatud postitada enda kontaktandmeid (nimi, telefon, aadress jne). Me jälgime ja analüüsime pakkumisi, et vältida pettuseid ja reeglite rikkumisi.
Rikkumise puhul kasutajakonto blokeeritakse.

 

Teisi töid samas valdkonnas

Valdkonnas "Üldehitus" on 32 aktiivset tööd

Põrandakütte torustiku ja kollektori paigaldus.

Asukoht: Harjumaa, Kurkse
Aega jäänud: 16p 3h
Tehtud pakkumisi: 4

Kuuri lammutus

Asukoht: Pärnumaa
Aega jäänud: 3p 3h
Tehtud pakkumisi: 3

Vanemad teated:

Vaata kõiki

Sellel veebilehel kasutatakse küpsiseid. Kasutamist jätkates nõustute küpsiste kasutamisega.

Sulge
 
Minu pakkumine

Reeglid

Pakkumise kirjelduse väli on mõeldud pakkumise detailsemaks lahti kirjutamiseks. Pikema teksti mugavaks sisestamiseks klikkige kasti paremal ülaservas oleval ikoonil.
Pakkumist tehes on keelatud postitada enda kontaktandmeid (nimi, telefon, aadress jne). Me jälgime ja analüüsime pakkumisi, et vältida pettuseid ja reeglite rikkumisi.
Rikkumise puhul kasutajakonto blokeeritakse.