+ Lisa oma töö      

Otsid ehitajat "Põrandaküte, paigaldus" valdkonnast?

Parima pakkumise ja teostaja leidmiseks lisa oma töö.

Hange on lõppenud!

Võitjaks osutus kasutaja ID 67766

Korraldaja hinnang tehtud tööle

5.0
14.06.2023
Töökiirus: 12345
Kvaliteet: 12345
Hind: 12345

Põranda ehitus koos vesipõrandakütte paigaldamisega

ID 79452

1569 vaatamist

Prindi

  • check Pakkumiste tegemine
    kuni 09.04.2023
  • check Võitja valik kuni
    16.04.2023
  • 3 Töö teostamine
    ja hinnang
Hanke lõpp: P, 9. aprill, 2023
Maakond: Põlvamaa
Muu asula: Kaaru
Tööde algus: E, 15. mai, 2023 (Soovituslik)
Tööde lõpp: K, 14. juuni, 2023 (Soovituslik)
Ehitusmaterjalid: Töö tellija poolt
Soovin pakkumisi: Summa kogu projektile

Töö sisu

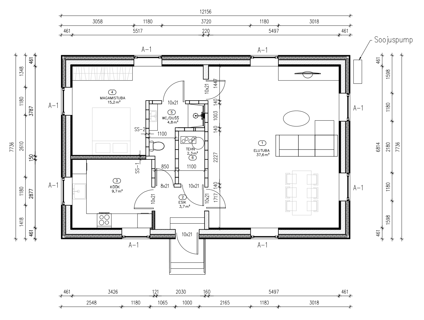
Põranda ehitus rekonstrueeritavasse hoonesse koos vesipõrandakütte paigaldusega. Veidi lisainfot:
* Põrandapinda kokku 73,5 m2, aga tehnoruumi ennast ei kütaks, seetõttu köetavat pinda ~70m2.
* Ainult 1. korrus.
* Panen kaasa ehitusprojekti vaated, kuid vajadusel võib teha muudatus-soovitusi, kuidas saaks parima võimaliku tulemuse.
* Projektis seda otseselt ei ole märgitud, mistõttu toon välja, et vaja paigaldada ka armatuur.
* Kütteseadmeks tuleb esialgu õhk-vesi soojuspump, kuid põrandakütet peab hiljem olema võimalik ühendada ka puugaasikatlaga. Kütteseadet ega selle paigaldust hanke raames ei telli.
* Vajalik viia läbi ka põrandakütte survetest.
* Vajalik ka ehituse korrektne dokumenteerimine.
* Põrandapind peab tulema tänasest laudpõrandast 30cm madalamale.
* Eeltöödena teen ise ära lammutustööd ning ehitan hoone keskele tehnoruumi ja WC/dušširuumi seinad nii, et lagi oleks põranda ehitamise ajaks toestatud.
* Põranda alla minevad kommunikatsioonid (kanalisatsioonitrass, kõrid erinevatele juhtmetele, voolikutele ja torudele) teen eelnevalt ise, kuid põranda või selle isolatsiooni sisse minevad veetorud peaksid olema hanke osa.

Pildid, video ja failid

Hanke korraldaja: eraisik ID73200

Pakkumised

Pakkumisi kokku: 9

Ettevõte Summa Käibemaks Lisatud Vestlus
Kasutaja ikoon ID67766
Pakkuja profiil Väike nool paremale
3 350€ Ei ole KMKR Ei ole KMKR 12.03.2023 Vestlus (4)

Pakkumise kirjeldus:

Hind sisaldab pinnase ettevalmistust ja pinnase täite paigaldust, põranda soojustuse eps 200mm paigaldust ,armatuuri paigaldust ja põranda küttetorude paigaldust vajadusel koos survestamisega ning põranda valamist. Küsimuste tekkimisel oleme valmis neile vastama .Parimat soovides

Kasutaja ikoon ID66447
Pakkuja profiil Väike nool paremale
2 800€ Ei ole KMKR Ei ole KMKR 12.03.2023 Vestlus (2)

Pakkumise kirjeldus:

Tere!
Teostan kõik vajalikud tööd
Võite kirjutada mulle sõnumisse
Annan sõnumisse teile head lahendused
Võite alati küsida lisa küsimused
Minu poolt on veel servalint ja alustele
Ettevõte tegeleb nende töödega
Ärge palun vaadake hinnet. See pole seotud tegelikult ültse töö hindamisega.
Oli üks maakiviladumis töö, millel töö telli ... Rohkem

Kasutaja ikoon ID61081
Pakkuja profiil Väike nool paremale
2 860€ KM lisandub KM lisandub 23.03.2023 Vestlus (0)

Pakkumise kirjeldus:

Tere.
Hinnapakkumine ettevalmistus töödele koos põrandakütte paigaldusega ja valamisega. Tööraha.

Kasutaja ikoon ID57450
Pakkuja profiil Väike nool paremale
14 700€ KM lisandub KM lisandub 06.04.2023 Vestlus (0)

Pakkumise kirjeldus:

Tervist!
Pakkumine vastavalt lähteülesandele. Huvi korral võtke ühendust-vaatame üle ning koostame detailse pakkumise.
Edukat hanget!

Kasutaja ikoon ID70424
Pakkuja profiil Väike nool paremale
7 500€ Ikoon kell KM lisandub KM lisandub 06.04.2023 Vestlus (0)

Pakkumise kirjeldus:

Saab tasuda sularaha.

Kasutaja ikoon ID36220
Pakkuja profiil Väike nool paremale
2 690€ Sisaldab KM Sisaldab KM 09.04.2023 Vestlus (0)

Pakkumise kirjeldus:

Peno, kile, armatuuri, küttetoru paigaldus ja valamine.

Kasutaja ikoon ID73479
Pakkuja profiil Väike nool paremale
8 000€ Sisaldab KM Sisaldab KM 09.04.2023 Vestlus (0)

Pakkumise kirjeldus:

Tere

Hea meelega teostame tööd teie jaoks.Tööd tehakse kvaliteetselt ja võimalikult kiiresti.Pakume 5 aastane garantii oma töödele.

Pakume teile teha plekikatuse paigaldust, topeltvaltssi tehnoloogia (ilma kruvideta). See on kõige parim lahendus oma majale. Garantii on aastateks.


See hind sisaldab kõiki nimekirjas olevaid soovitud tööd. ... Rohkem

Kasutaja ikoon ID73625
Pakkuja profiil Väike nool paremale
11 000€ Sisaldab KM Sisaldab KM 09.04.2023 Vestlus (0)

Pakkumise kirjeldus:

Ehitusfirma on Sinu tööst huvitatud.. Ettevõte on valmis andma tööde teostamisele garantii.

Kasutaja ikoon ID61515
Pakkuja profiil Väike nool paremale
5 600€ Ei ole KMKR Ei ole KMKR 09.04.2023 Vestlus (2)

Küsimused hanke korraldajale

Küsimus: private ID67766   11.03.2023 07:51
Tere .Kas pinna kaevate ise 30 cm allapoole ,Kui palju olete mõelnud soojustust panna põrandale ja kui palju aluspinna täidet .Parimat soovides

Teavita reeglite rikkumisest

Korraldaja vastus: 11.03.2023 11:46

Lühidalt. Praegu on projekti kirja läinud tihendatud kruus 300mm ja isolatsiooni 200mm (vt. pakkumises olevaid pilte). Hinnapakkumises võiks lähtuda sellest. Kaevetööd teeksin ise.

Pikemalt. Põhjus, miks otsin paigaldajat ongi selles, et ma ei ole kursis parimate praktikatega. Olen pärast projeki valmimist kuulnud, et näiteks isolatsiooni pannakse 300mm ja mõnelpool rohkemgi veel. Kui erinevus on ainult materjali-hinnas, siis võib reaalsuses panna ka paksema isolatsioonikihi - nii nagu asjatundja soovitab.

Kaevetöödest pikemalt. Hetkel on laudpõrand, mis toetub vundamendile ja see on omakorda maja-alusest pinnasest umbes 40-50cm kõrgusel. Ma teeksin kaevetööd jah ise, aga - ma ei ole täiesti kindel, kui sügavale on võimalik üldse kaevata. Praegusest põrandapinnast umbes 70cm allapoole minnes tuleb ette kanalisatsioonitrass. Samas on ka suur tõenäosus, et kaevetöid teostades selgub, et maja all on suuri maakive, mida ilma vundamenti kahjustamata eemaldada ei saa. Seega, hinnapakkumises võiks ehk arvestada sellega, et - pinna viin sobilikule tasandile ise ja ettevalmistatud pind saab olema praegusest põrandapinnast umbes 70-80cm maldalamal. Praktikas võib esineda komplikatsioone, mida siis tuleks enne reaalset teostamist arutada.

Teavita reeglite rikkumisest

Küsimus: private ID67766   11.03.2023 13:10
Tere .Tänan nii pika ja täpse vastuse eest. Kui soovite täidet 300 mm ja soojustust 200mm,siis betooni võib arvestada 90-100mmm.Siis kaevata pole vaja kindlasti rohkem .Kui isegi 300mm täidet pole võimalik panna siis oleneb mis pinnas seal on a aitaks 200mm täitest samuti .Aga siis tean arvestada pakkumise tegemisel ,et pinnase tegemine ,eps ,põrandakütte torude paigaldus ja survestamine ning põranda valu oleks tööd mida vaja teha .Parimat soovides

Teavita reeglite rikkumisest

Korraldaja vastus:
Hanke korraldaja ei ole küsimusele veel vastanud

Lisa küsimus

Lisa küsimus

Minu pakkumine

Reeglid

Pakkumise kirjelduse väli on mõeldud pakkumise detailsemaks lahti kirjutamiseks. Pikema teksti mugavaks sisestamiseks klikkige kasti paremal ülaservas oleval ikoonil.
Pakkumist tehes on keelatud postitada enda kontaktandmeid (nimi, telefon, aadress jne). Me jälgime ja analüüsime pakkumisi, et vältida pettuseid ja reeglite rikkumisi.
Rikkumise puhul kasutajakonto blokeeritakse.

 

Vanemad teated:

Vaata kõiki

Sellel veebilehel kasutatakse küpsiseid. Kasutamist jätkates nõustute küpsiste kasutamisega.

Sulge
 
Minu pakkumine

Reeglid

Pakkumise kirjelduse väli on mõeldud pakkumise detailsemaks lahti kirjutamiseks. Pikema teksti mugavaks sisestamiseks klikkige kasti paremal ülaservas oleval ikoonil.
Pakkumist tehes on keelatud postitada enda kontaktandmeid (nimi, telefon, aadress jne). Me jälgime ja analüüsime pakkumisi, et vältida pettuseid ja reeglite rikkumisi.
Rikkumise puhul kasutajakonto blokeeritakse.