+ Lisa oma töö      

Otsid ehitajat "Üldehitus" valdkonnast?

Parima pakkumise ja teostaja leidmiseks lisa oma töö.

Eramu vundamendi soojustamine

ID 79372

533 vaatamist

Prindi

  • check Pakkumiste tegemine
    kuni 11.03.2023
  • check Võitja valik kuni
    18.03.2023
  • 3 Töö teostamine
    ja hinnang
Hanke lõpp: L, 11. märts, 2023
Maakond: Harjumaa
Muu asula: Viimsi
Tööde algus: E, 17. aprill, 2023 (Soovituslik)
Tööde lõpp: R, 19. mai, 2023 (Soovituslik)
Ehitusmaterjalid: Töö tellija poolt
Soovin pakkumisi: Summa kogu projektile

Töö sisu

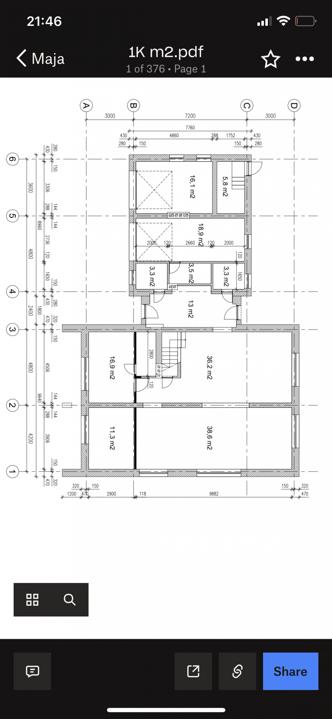
Eramu vundamendi soojustamine.
Vundamendi lahti kaevamine, hüdro, soojustamine XPS plaadiga, perimeetri horisontaalne soojustamine XPS plaadiga. Sokliosa krohvimine.

Pildid, video ja failid

Hanke korraldaja: eraisik ID66966

Pakkumised

Pakkumisi kokku: 0

Küsimused hanke korraldajale

Küsimus: private ID52293   09.03.2023 16:23
Tere
Mitu m2 tuleb soojustatavat pind ja mitu m2 koos krohvimisega
Tänud

Teavita reeglite rikkumisest

Korraldaja vastus:
Hanke korraldaja ei ole küsimusele veel vastanud

Lisa küsimus

Lisa küsimus

Minu pakkumine

Reeglid

Pakkumise kirjelduse väli on mõeldud pakkumise detailsemaks lahti kirjutamiseks. Pikema teksti mugavaks sisestamiseks klikkige kasti paremal ülaservas oleval ikoonil.
Pakkumist tehes on keelatud postitada enda kontaktandmeid (nimi, telefon, aadress jne). Me jälgime ja analüüsime pakkumisi, et vältida pettuseid ja reeglite rikkumisi.
Rikkumise puhul kasutajakonto blokeeritakse.

 

Teisi töid samas valdkonnas

Valdkonnas "Üldehitus" on 32 aktiivset tööd

Põrandakütte torustiku ja kollektori paigaldus.

Asukoht: Harjumaa, Kurkse
Aega jäänud: 16p 3h
Tehtud pakkumisi: 4

Kuuri lammutus

Asukoht: Pärnumaa
Aega jäänud: 3p 3h
Tehtud pakkumisi: 3

Vanemad teated:

Vaata kõiki

Sellel veebilehel kasutatakse küpsiseid. Kasutamist jätkates nõustute küpsiste kasutamisega.

Sulge
 
Minu pakkumine

Reeglid

Pakkumise kirjelduse väli on mõeldud pakkumise detailsemaks lahti kirjutamiseks. Pikema teksti mugavaks sisestamiseks klikkige kasti paremal ülaservas oleval ikoonil.
Pakkumist tehes on keelatud postitada enda kontaktandmeid (nimi, telefon, aadress jne). Me jälgime ja analüüsime pakkumisi, et vältida pettuseid ja reeglite rikkumisi.
Rikkumise puhul kasutajakonto blokeeritakse.