+ Lisa oma töö      

Otsid ehitajat "Üldehitus" valdkonnast?

Parima pakkumise ja teostaja leidmiseks lisa oma töö.

Hoone laiendus

ID 79215

644 vaatamist

Prindi

  • check Pakkumiste tegemine
    kuni 31.03.2023
  • check Võitja valik kuni
    07.04.2023
  • 3 Töö teostamine
    ja hinnang
Hanke lõpp: R, 31. märts, 2023
Maakond: Harjumaa
Linn: Tallinn
Tööde algus: E, 13. märts, 2023 (Soovituslik)
Tööde lõpp: N, 31. august, 2023 (Soovituslik)
Ehitusmaterjalid: Töö tellija poolt
Soovin pakkumisi: Tüki- või ühikuhinda

Töö sisu

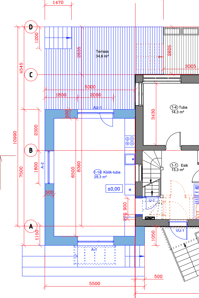
Olemasolevale majale teha juurdeehitus. Hoone karp, alates vundamendist, katus, siseviimistlus. Ehitusalune pind u 30 m2
Ehitus asub Tallinn, Kristiines

Pildid, video ja failid

Hanke korraldaja: eraisik ID73005

Pakkumised

Pakkumisi kokku: 10

Ettevõte Summa Käibemaks Lisatud Vestlus
Kasutaja ikoon ID70588
Pakkuja profiil Väike nool paremale
1 000€ Ei ole KMKR Ei ole KMKR 02.03.2023 Vestlus (0)

Pakkumise kirjeldus:

Tere,

Pakkumine küsitud töödele m2 hinnaga vastavalt reaalsetele m2 mahtudele.

Lugupidamisega,

jm.

Kasutaja ikoon ID70688
Pakkuja profiil Väike nool paremale
74 950€ KM lisandub KM lisandub 05.03.2023 Vestlus (0)

Pakkumise kirjeldus:

Tere! Saan aru, et juurdeehitusel tuleb ka garaaz. Hind võib natuke muutuda kui soovite puldiga avatavat garaaziust. Muidu kõik hinnas. Ja nagu plaanilt näha, juurdehitusel treppe ei tule? Neid ei ole meil ka hinnas. Töö kogenud brigaadi poolt. Töödele garntii. Jääme ootama teie kontakti, Erki

Kasutaja ikoon ID72885
Pakkuja profiil Väike nool paremale
88 500€ KM lisandub KM lisandub 20.03.2023 Vestlus (0)
Kasutaja ikoon ID72647
Pakkuja profiil Väike nool paremale
89 250€ Ikoon kell Sisaldab KM Sisaldab KM 23.03.2023 Vestlus (0)

Pakkumise kirjeldus:

Töö ja materjal.

Lp

Kasutaja ikoon ID8633
Pakkuja profiil Väike nool paremale
75 500€ KM lisandub KM lisandub 31.03.2023 Vestlus (0)
Kasutaja ikoon ID72809
Pakkuja profiil Väike nool paremale
83 500€ KM lisandub KM lisandub 31.03.2023 Vestlus (0)

Pakkumise kirjeldus:

Tere,

Hind sisaldab võtmed kätte lahendust. Ning nagu hanke kirjelduses siis sisaldab nii tööd kui ka materjale.

2a garantii

Kasutaja ikoon ID31957
Pakkuja profiil Väike nool paremale
188 000€ Sisaldab KM Sisaldab KM 31.03.2023 Vestlus (0)

Pakkumise kirjeldus:

Tere,

Pakkumine võtmed kätte.
Täpsustused sõnumites.

Lugupidamisega

Kasutaja ikoon ID73479
Pakkuja profiil Väike nool paremale
80 000€ Sisaldab KM Sisaldab KM 31.03.2023 Vestlus (0)

Pakkumise kirjeldus:

Tere

Hea meelega teostame tööd teie jaoks.Tööd tehakse kvaliteetselt ja võimalikult kiiresti.Pakume 2 aastane garantii oma töödele.

Pakume teile teha plekikatuse paigaldust, topeltvaltssi tehnoloogia (ilma kruvideta). See on kõige parim lahendus oma majale. Garantii on aastateks.

Kasutaja ikoon ID59528
Pakkuja profiil Väike nool paremale
70 000€ KM lisandub KM lisandub 31.03.2023 Vestlus (0)

Pakkumise kirjeldus:

Pakkumnie tehtud vastvalt hankes kirjeldatud töödele

Kasutaja ikoon ID73625
Pakkuja profiil Väike nool paremale
100 000€ Sisaldab KM Sisaldab KM 31.03.2023 Vestlus (0)

Küsimused hanke korraldajale

Küsimus: private ID39013   02.03.2023 11:47
Palun kas saaksite lisada juurdeehituse ehitusprojekti ja tööde loetelu või kirjelduse kavandatavatest töödest. Paraku esitatud info pealt sisulist pakkumist ei ole võimalik esitada. Palun täpsustada, milline oleks soovitud ühikhinna ühik, millele pakkumishind taandada.

Teavita reeglite rikkumisest

Korraldaja vastus: 03.03.2023 18:04

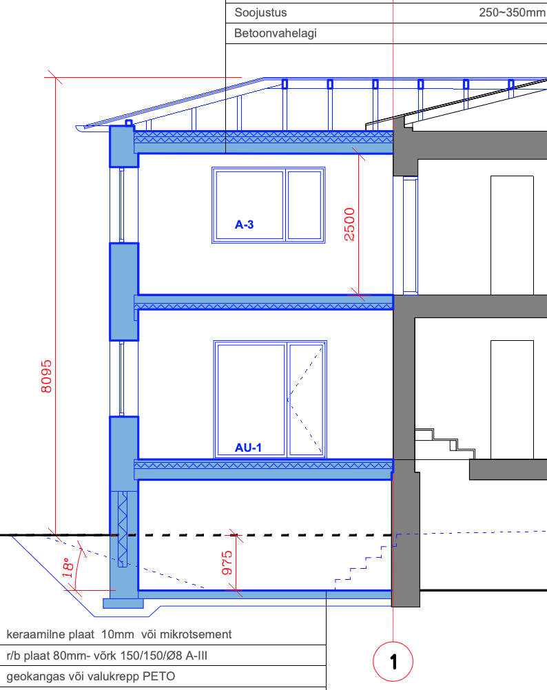
Uus vundament keramsiitplokkidest ja põrand pinnasel R/B plaat Uued välisseinad AEROC EcoTerm Plus 500mm plokkidest. Uued väliseinad teha Termoplokist 500mm, ja katta struktuurkrohviga. Uued vahelaed paneelidest.Hoone on kandvad välisseinad teha Bauroc EcoTerm Plus 500mm plokkidest.
Põrand pinnasel on raudbetoonplaat, mille alla paigaldada ehituskile ja 250mm soojustust EPS100Uue katuste kandekonstruktsiooniks on puitsarikad. Sarikad toetuvad uutele välisseintele. Sarikatele paigaldatakse aluskate, tuulutusliistud ja roovid. Katuse katteks on tsingitud valtsplekk („klassik“ profiil).
2.korruse vahelae peale tuleb soojustus 250-350mm.
"Võtmed kätte " ehitus.

Teavita reeglite rikkumisest

Küsimus: private ID29141   03.03.2023 15:48
Tere

1. Mis materjalist maja tuleb?
2. Kas soovite pakkumist "võtmed kätte" või "valge karp?
3. Mis materjalist fassaad?
4. Millest katus?
5. Vahelaed millised?
Selle info järgi ei saa teha konkreetset pakkumist. Saame teha orienteeruva pakkumise. Hea oleks, kui saaksite laadida üles lingi projektist ja seletuskirja.

Tervitades
BF

Teavita reeglite rikkumisest

Korraldaja vastus: 03.03.2023 17:57

Uus vundament keramsiitplokkidest ja põrand pinnasel R/B plaat Uued välisseinad AEROC EcoTerm Plus 500mm plokkidest
Uued vahelaed paneelidest.Hoone on kandvad välisseinad teha Bauroc EcoTerm Plus 500mm plokkidest.
Põrand pinnasel on raudbetoonplaat, mille alla paigaldada ehituskile ja 250mm soojustust EPS100Uue katuste kandekonstruktsiooniks on puitsarikad. Sarikad toetuvad uutele välisseintele. Sarikatele paigaldatakse aluskate, tuulutusliistud ja roovid. Katuse katteks on tsingitud valtsplekk („klassik“ profiil).
2.korruse vahelae peale tuleb soojustus 250-350mm.
"Võtmed kätte " ehitus.

Teavita reeglite rikkumisest

Küsimus: private ID31957   18.03.2023 16:07
Tere,

Hanke sisus on märgitud, et materjalid tellija poolt. Kindluse mõttes täpsustan, et soovite vaid juurdeehitust töörahana ?

Lugupidamisega

Teavita reeglite rikkumisest

Korraldaja vastus: 21.03.2023 09:15

Pakkuge koos materjalidega.

Teavita reeglite rikkumisest

Lisa küsimus

Lisa küsimus

Minu pakkumine

Reeglid

Pakkumise kirjelduse väli on mõeldud pakkumise detailsemaks lahti kirjutamiseks. Pikema teksti mugavaks sisestamiseks klikkige kasti paremal ülaservas oleval ikoonil.
Pakkumist tehes on keelatud postitada enda kontaktandmeid (nimi, telefon, aadress jne). Me jälgime ja analüüsime pakkumisi, et vältida pettuseid ja reeglite rikkumisi.
Rikkumise puhul kasutajakonto blokeeritakse.

 

Teisi töid samas valdkonnas

Valdkonnas "Üldehitus" on 32 aktiivset tööd

Põrandakütte torustiku ja kollektori paigaldus.

Asukoht: Harjumaa, Kurkse
Aega jäänud: 16p 3h
Tehtud pakkumisi: 4

Kuuri lammutus

Asukoht: Pärnumaa
Aega jäänud: 3p 3h
Tehtud pakkumisi: 3

Vanemad teated:

Vaata kõiki

Sellel veebilehel kasutatakse küpsiseid. Kasutamist jätkates nõustute küpsiste kasutamisega.

Sulge
 
Minu pakkumine

Reeglid

Pakkumise kirjelduse väli on mõeldud pakkumise detailsemaks lahti kirjutamiseks. Pikema teksti mugavaks sisestamiseks klikkige kasti paremal ülaservas oleval ikoonil.
Pakkumist tehes on keelatud postitada enda kontaktandmeid (nimi, telefon, aadress jne). Me jälgime ja analüüsime pakkumisi, et vältida pettuseid ja reeglite rikkumisi.
Rikkumise puhul kasutajakonto blokeeritakse.