+ Lisa oma töö      

Otsid ehitajat "Ehituse peatöövõtt" valdkonnast?

Parima pakkumise ja teostaja leidmiseks lisa oma töö.

Eramu ehitus

ID 79087

1248 vaatamist

Prindi

  • check Pakkumiste tegemine
    kuni 26.03.2023
  • check Võitja valik kuni
    02.04.2023
  • 3 Töö teostamine
    ja hinnang
Hanke lõpp: P, 26. märts, 2023
Maakond: Harjumaa
Linn: Maardu
Tööde algus: L, 01. aprill, 2023 (Soovituslik)
Tööde lõpp: E, 01. aprill, 2024 (Soovituslik)
Ehitusmaterjalid: Töö tegija poolt
Soovin pakkumisi: Summa kogu projektile

Töö sisu

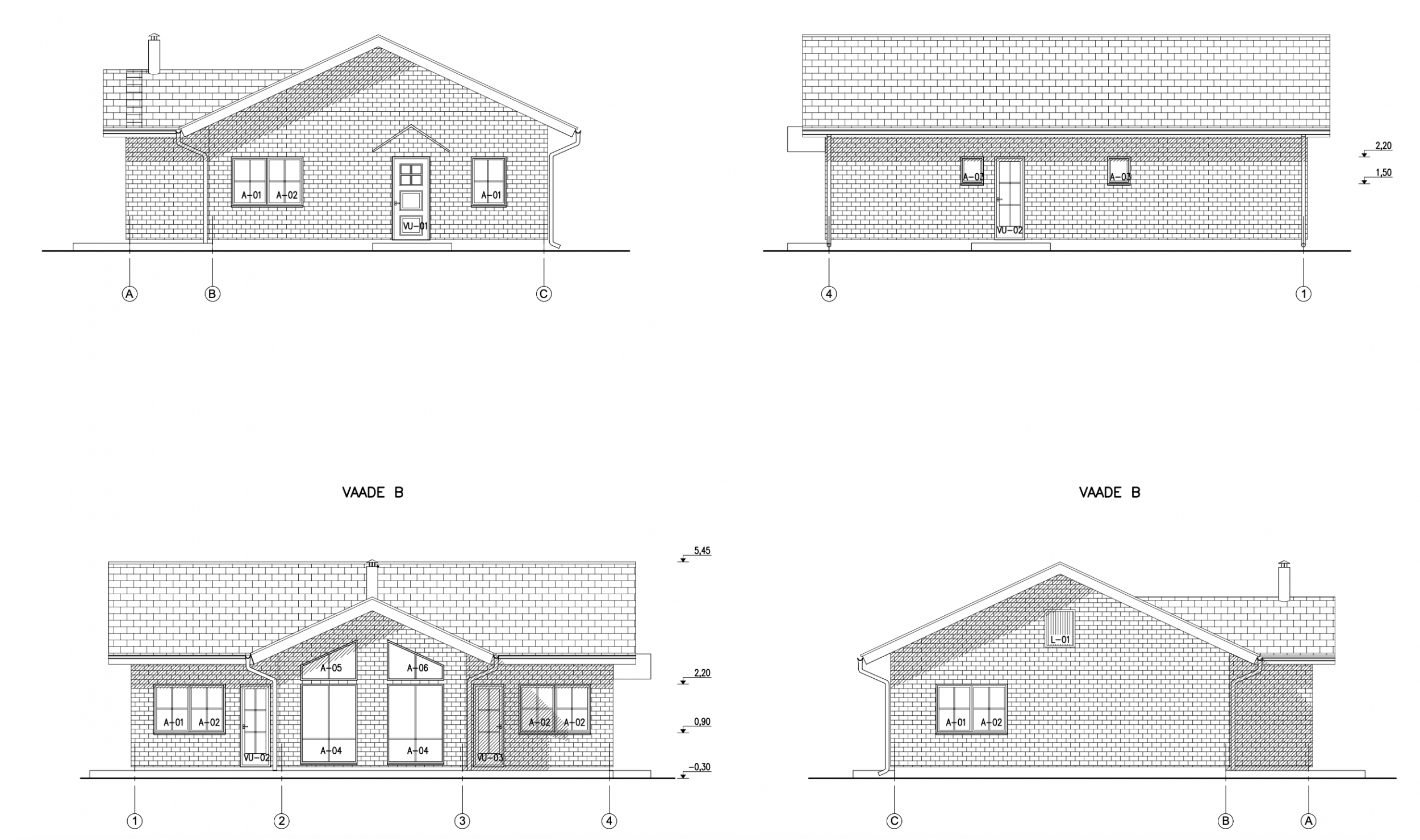
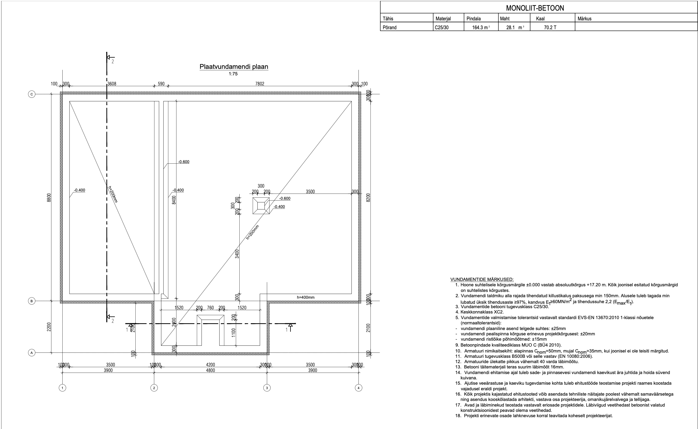
Soovime ehituse peatöövõtu pakkumist (võtmed kätte) 100m2 eramu ehitamiseks Muuga aedlinnas. Mõned võtmesõnad on plaatvundament, kivimaja, maaküte, päikesepaneelid. Ehitusluba ja projektid on olemas ning krunt on ehitamiseks ette valmistatud. Kommunikatsioonid ja liitumised on olemas. Pakkumise detailide täpsustamiseks küsige lisainfot

Pildid, video ja failid

Hanke korraldaja: eraisik ID72912

Pakkumised

Pakkumisi kokku: 11

Ettevõte Summa Käibemaks Lisatud Vestlus
Kasutaja ikoon ID72267
Pakkuja profiil Väike nool paremale
100 000€ Sisaldab KM Sisaldab KM 24.02.2023 Vestlus (0)

Pakkumise kirjeldus:

Готовы помочь вам в вашей задаче. Звоните для уточнения деталей. Можем оформить через фирму с гарантией! есть грузоввая техника для вывоза муссора и доставки материалов

Kasutaja ikoon ID70688
Pakkuja profiil Väike nool paremale
175 000€ KM lisandub KM lisandub 24.02.2023 Vestlus (0)

Pakkumise kirjeldus:

Tere! Hind sisladab teie poolt esitatud plaanide kohast eramu ehitust koos materalidega. Kõik hinnas. Hind ei sisalda päiksepaneelide hinda. Jääme ootama teie kontakti, Erki

Kasutaja ikoon ID72647
Pakkuja profiil Väike nool paremale
160 000€ Sisaldab KM Sisaldab KM 26.02.2023 Vestlus (0)

Pakkumise kirjeldus:

Ei sisalda haljastust ega päiksepaneele. Keskeltläbi on maja ehituse hind ca 1600eur/m2.

Maja eripäradega ja kliendi soovidega võib hind mõnevõrra muutuda.

Lp

Kasutaja ikoon ID70588
Pakkuja profiil Väike nool paremale
225 000€ Ei ole KMKR Ei ole KMKR 27.02.2023 Vestlus (0)

Pakkumise kirjeldus:

Tere,

Pakkumine küsitud töödele ja materjalidele + võtmed kätte lahendusele.

Lugupidamisega,

jm.

Kasutaja ikoon ID72809
Pakkuja profiil Väike nool paremale
168 000€ KM lisandub KM lisandub 02.03.2023 Vestlus (0)

Pakkumise kirjeldus:

Hind on idikatiivne ja võib muutuda peale täpsete materjalide ja projekti ülevaatamist mõlemale poole (k.a odavamaks).

Ettemaks vaid hange.ee tasudeks kui peaksite võitjaks valima.

Kasutaja ikoon ID71921
Pakkuja profiil Väike nool paremale
140 000€ Ei ole KMKR Ei ole KMKR 04.03.2023 Vestlus (0)
Kasutaja ikoon ID63978
Pakkuja profiil Väike nool paremale
172 000€ Sisaldab KM Sisaldab KM 07.03.2023 Vestlus (0)

Pakkumise kirjeldus:

Teostame eramajade ehitust, remont ja siseviimistlustöid...
Vastavalt kliendi huvidele teostame töid esimesel võimalusel
Kõik läbiräägitav

Kasutaja ikoon ID72885
Pakkuja profiil Väike nool paremale
185 000€ Sisaldab KM Sisaldab KM 16.03.2023 Vestlus (0)
Kasutaja ikoon ID73393
Pakkuja profiil Väike nool paremale
186 000€ Sisaldab KM Sisaldab KM 20.03.2023 Vestlus (0)

Pakkumise kirjeldus:

Pakkuja E-Stone OÜ.

Kasutaja ikoon ID39222
Pakkuja profiil Väike nool paremale
165 000€ KM lisandub KM lisandub 22.03.2023 Vestlus (0)

Pakkumise kirjeldus:

Ilma päikepaneelita

Kasutaja ikoon ID59528
Pakkuja profiil Väike nool paremale
59 739€ KM lisandub KM lisandub 26.03.2023 Vestlus (0)

Pakkumise kirjeldus:

Tere,

Meie poolne pakkumine tehtud töödele mis saime plaanide pealt välja lugeda

Plaatvundamendi ehitus 28 190
Aeroc seinte ladumine 16 875
Katuse fermide paigaldus ja katusekatte paigaldus 14 670, katuse fermid pole hinnas, need tellite tehasest nagu jooniste pealt välja loen

Muud materjaid, tellingud, kinnitusvahendid kõik meie hinnas. Vaja ... Rohkem

Küsimused hanke korraldajale

Küsimus: private ID43856   27.02.2023 11:42
Kas pakkumist koos materjalidega?
Sellisel juhul kas oleks võimalik saada projekti täies mahus?

Teavita reeglite rikkumisest

Korraldaja vastus:
Hanke korraldaja ei ole küsimusele veel vastanud

Lisa küsimus

Lisa küsimus

Minu pakkumine

Reeglid

Pakkumise kirjelduse väli on mõeldud pakkumise detailsemaks lahti kirjutamiseks. Pikema teksti mugavaks sisestamiseks klikkige kasti paremal ülaservas oleval ikoonil.
Pakkumist tehes on keelatud postitada enda kontaktandmeid (nimi, telefon, aadress jne). Me jälgime ja analüüsime pakkumisi, et vältida pettuseid ja reeglite rikkumisi.
Rikkumise puhul kasutajakonto blokeeritakse.

 

Vanemad teated:

Vaata kõiki

Sellel veebilehel kasutatakse küpsiseid. Kasutamist jätkates nõustute küpsiste kasutamisega.

Sulge
 
Minu pakkumine

Reeglid

Pakkumise kirjelduse väli on mõeldud pakkumise detailsemaks lahti kirjutamiseks. Pikema teksti mugavaks sisestamiseks klikkige kasti paremal ülaservas oleval ikoonil.
Pakkumist tehes on keelatud postitada enda kontaktandmeid (nimi, telefon, aadress jne). Me jälgime ja analüüsime pakkumisi, et vältida pettuseid ja reeglite rikkumisi.
Rikkumise puhul kasutajakonto blokeeritakse.