+ Lisa oma töö      

Otsid ehitajat "Vundamenditööd" valdkonnast?

Parima pakkumise ja teostaja leidmiseks lisa oma töö.

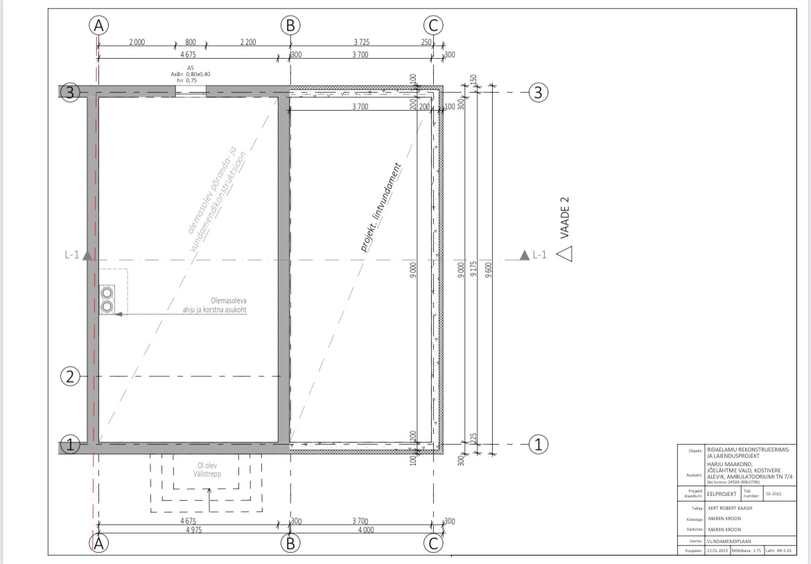
Lintvundament

ID 79020

1402 vaatamist

Prindi

  • check Pakkumiste tegemine
    kuni 06.03.2023
  • check Võitja valik kuni
    13.03.2023
  • 3 Töö teostamine
    ja hinnang
Hanke lõpp: E, 6. märts, 2023
Maakond: Harjumaa
Muu asula: Kostivere
Tööde algus: K, 01. märts, 2023 (Soovituslik)
Tööde lõpp: E, 05. juuni, 2023 (Soovituslik)
Ehitusmaterjalid: Töö tegija poolt
Soovin pakkumisi: Summa kogu projektile

Töö sisu

Tere,
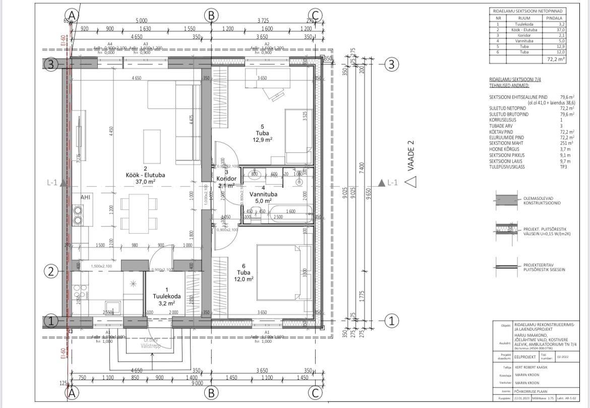
Otsin lintvundamendi valmistajat, vundamendi suurus tuleks umbes 32m2.
Tegemist siis juurdeehitusega, millel olemas projekt.

Sobiva pakkumise korral saab tööga alustada kohe!

Pildid, video ja failid

Hanke korraldaja: eraisik ID72856

Pakkumised

Pakkumisi kokku: 12

Ettevõte Summa Käibemaks Lisatud Vestlus
Kasutaja ikoon ID70448
Pakkuja profiil Väike nool paremale
7 850€ Ei ole KMKR Ei ole KMKR 21.02.2023 Vestlus (6)

Pakkumise kirjeldus:

Meie pakkumine Teie kirjeldatud töödele
Lugupidamisega
HN

Kasutaja ikoon ID70424
Pakkuja profiil Väike nool paremale
8 000€ KM lisandub KM lisandub 21.02.2023 Vestlus (5)

Pakkumise kirjeldus:

Saab tasuda sularahas.

Olen huvitatud ka SBS katuse tööst,

Kasutaja ikoon ID72190
Pakkuja profiil Väike nool paremale
8 100€ Sisaldab KM Sisaldab KM 21.02.2023 Vestlus (0)
Kasutaja ikoon ID52293
Pakkuja profiil Väike nool paremale
7 000€ Sisaldab KM Sisaldab KM 21.02.2023 Vestlus (2)
Kasutaja ikoon ID72647
Pakkuja profiil Väike nool paremale
6 500€ Ikoon kell Sisaldab KM Sisaldab KM 26.02.2023 Vestlus (3)

Pakkumise kirjeldus:

Oleme vamis otsast lõpuni töö valmis tegema. Kui te just ise ei plaani ülejäänuid töid teostada.

6500 eurot, juhul kui makstakse sularahas.

Lp
Martin

Kasutaja ikoon ID72952
Pakkuja profiil Väike nool paremale
6 500€ Sisaldab KM Sisaldab KM 26.02.2023 Vestlus (0)

Pakkumise kirjeldus:

L-sokkel sisaldab pinnasetööd bet valu 900mm kõrge tagasi täide sees kui väljast .Sokkeli kaitse .Koristus.

Kasutaja ikoon ID63978
Pakkuja profiil Väike nool paremale
10 000€ Sisaldab KM Sisaldab KM 02.03.2023 Vestlus (0)

Pakkumise kirjeldus:

Teostame erinevaid ehitus ja remont töid,nii eramajadele kui korteritele.
Vastavalt kliendi huvidele...Pakkumine on läbiräägitav kohapeal .
Teostame töid esimesel võimalusel.....

Kasutaja ikoon ID8633
Pakkuja profiil Väike nool paremale
8 000€ KM lisandub KM lisandub 06.03.2023 Vestlus (0)

Pakkumise kirjeldus:

töö

Kasutaja ikoon ID23896
Pakkuja profiil Väike nool paremale
7 900€ Sisaldab KM Sisaldab KM 06.03.2023 Vestlus (0)

Pakkumise kirjeldus:

Pakkumine vundamendi töödele, oleme huvitatud kogu projektist.
Detailse pakkumise teeme peale objekti ülevaatust.
pakkumine sisaldab ehitustööde päevikut, kaetud tööde akte ja sertifikaate materjalidele.

Kasutaja ikoon ID71918
Pakkuja profiil Väike nool paremale
6 000€ Ei ole KMKR Ei ole KMKR 06.03.2023 Vestlus (0)

Pakkumise kirjeldus:

Tere, saame alustada kohe.

Tänan
Pavel

Kasutaja ikoon ID72543
Pakkuja profiil Väike nool paremale
6 000€ Sisaldab KM Sisaldab KM 06.03.2023 Vestlus (2)

Pakkumise kirjeldus:

Pakkumine sisaldab materjalid ja tööd.

Enne lepingu sõlmimist, soovime detailid läbi arutada tellijaga ja objekti üle vaadata.

Kui on tekkinud küsimusi seoses hinnapakkumisega, siis võtke julgelt ühendust.

Kasutaja ikoon ID29141
Pakkuja profiil Väike nool paremale
9 650€ KM lisandub KM lisandub 06.03.2023 Vestlus (0)

Pakkumise kirjeldus:

Tere,
Pakkumine tehtud lintvundamendi ehitusele ja sisaldab vundamendi mahamärkimist, kaevetöid, vundamendi ehitus, sokli ehitust, hüdroisolatsiooni, soojustust ja tagsitäidet koos materjaliga.
Oleme spetsialiseerunud majade ehitusele "võtmed kätte" meetodil nii et saame aidata ka ülejäänud hoone ehituse osas.
Töödele garantii 3 aastat.
Töid ... Rohkem

Küsimused hanke korraldajale

Küsimus: private ID70424   21.02.2023 10:45
Kas kütte torud tuleb ka?

Teavita reeglite rikkumisest

Korraldaja vastus: 21.02.2023 12:36

Ei tule.
Parandan ka vundament tuleb 38m2

Teavita reeglite rikkumisest

Küsimus: private ID70424   21.02.2023 10:47
Palun projekti.

Teavita reeglite rikkumisest

Korraldaja vastus: 21.02.2023 12:48

Lisasin projektist pildid töö sisusse.

Teavita reeglite rikkumisest

Küsimus: private ID72543   06.03.2023 13:22
Tere,

Kas projektides puudub midagi või kuidas te saite 38m2?

Kas soovite ainult lintvundamendi või lintvundament+kergplokk+soojustus välisperimeetris?

Kui teil tuleb puitkarkassist seinad, siis võiks viimase kergplokki rea asemel valada 15-20cm betoonvöö, kuhu hiljem saaks paremini ankurdada puitkarkassi vöö.

Andke teada, siis saame ka omalt poolt pakkumise teha.

Juhul, kui pakkumine teile sobiks, siis oleme valmis alustama juba see nädal.

Ette tänades!

Teavita reeglite rikkumisest

Korraldaja vastus: 06.03.2023 13:29

Tere,
Projekti koostaja utles 38m2, kuid projekt on õige ja arvatavasti siis ajas ise midagi sassi, kui tundub vale.
Soovime kõiki kolme.
Seinad tulevad puitkarkassist.

Teavita reeglite rikkumisest

Küsimus: private ID72543   06.03.2023 13:38
Kas arvestan, et viimase (ülemise) rea asemele tuleb betoonvalu või soovite, et teen joonise järgi pakkumise?

Teavita reeglite rikkumisest

Korraldaja vastus: 06.03.2023 14:30

Joonise järgi.

Teavita reeglite rikkumisest

Küsimus: private ID72543   06.03.2023 14:40
Meie poolt pakkumine tehtud.

Teavita reeglite rikkumisest

Korraldaja vastus:
Hanke korraldaja ei ole küsimusele veel vastanud

Lisa küsimus

Lisa küsimus

Minu pakkumine

Reeglid

Pakkumise kirjelduse väli on mõeldud pakkumise detailsemaks lahti kirjutamiseks. Pikema teksti mugavaks sisestamiseks klikkige kasti paremal ülaservas oleval ikoonil.
Pakkumist tehes on keelatud postitada enda kontaktandmeid (nimi, telefon, aadress jne). Me jälgime ja analüüsime pakkumisi, et vältida pettuseid ja reeglite rikkumisi.
Rikkumise puhul kasutajakonto blokeeritakse.

 

Vanemad teated:

Vaata kõiki

Sellel veebilehel kasutatakse küpsiseid. Kasutamist jätkates nõustute küpsiste kasutamisega.

Sulge
 
Minu pakkumine

Reeglid

Pakkumise kirjelduse väli on mõeldud pakkumise detailsemaks lahti kirjutamiseks. Pikema teksti mugavaks sisestamiseks klikkige kasti paremal ülaservas oleval ikoonil.
Pakkumist tehes on keelatud postitada enda kontaktandmeid (nimi, telefon, aadress jne). Me jälgime ja analüüsime pakkumisi, et vältida pettuseid ja reeglite rikkumisi.
Rikkumise puhul kasutajakonto blokeeritakse.