+ Lisa oma töö      

Otsid ehitajat "Üldehitus" valdkonnast?

Parima pakkumise ja teostaja leidmiseks lisa oma töö.

Maja II korruse väljaehitus

ID 78781

1254 vaatamist

Prindi

  • check Pakkumiste tegemine
    kuni 17.02.2023
  • check Võitja valik kuni
    24.02.2023
  • 3 Töö teostamine
    ja hinnang
Hanke lõpp: R, 17. veebruar, 2023
Maakond: Harjumaa
Muu asula: Turbuneeme
Tööde algus: K, 01. märts, 2023 (Soovituslik)
Tööde lõpp: P, 30. aprill, 2023 (Soovituslik)
Ehitusmaterjalid: Töö tegija poolt
Soovin pakkumisi: Summa kogu projektile

Töö sisu

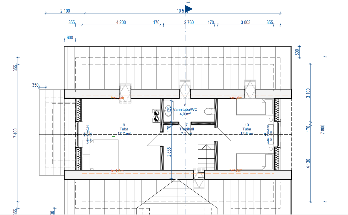
Maja II korruse ehitus. Pindala ca 45 m2

Põrandad, vaheseinad, katuse ja seinte soojustus, heliisolatsioon, kahe akna viimistlus (mõõtmed: 1400x900), kolm siseust ja nende paigaldus. WC ruumi asemel tuleb panipaik. Ruumidesse tulevad radiaatorid (vajalikud küttetorud veetud). Ventilatsioonisüsteem paigaldatud. Katuseaknaid ei tule. Ühte tuba läbib moodulkorsten, mis tuleb samuti viimistleda (korsten paigaldatakse märtsis).

Lõppviimistluseks soovin kasutada laepaneele ja seinapaneele, põrandale parkett.

Hetkel on II korrusel vaid fermid ja katus. Hinnapakkumisest jätta välja põrandaparketi hind.

Objekt asub Lahemaal (Kuusalu vald) ning töödega saab alustada märtsis.

Pildid, video ja failid

Hanke korraldaja: eraisik ID27125

Pakkumised

Pakkumisi kokku: 11

Ettevõte Summa Käibemaks Lisatud Vestlus
Kasutaja ikoon ID70058
Pakkuja profiil Väike nool paremale
65 000€ Sisaldab KM Sisaldab KM 09.02.2023 Vestlus (0)

Pakkumise kirjeldus:

Hankes kirjeldatud tööde tegemine 4 liikmelise professionaalse tiimi poolt.

Kasutaja ikoon ID70448
Pakkuja profiil Väike nool paremale
63 500€ Ei ole KMKR Ei ole KMKR 10.02.2023 Vestlus (0)

Pakkumise kirjeldus:

Meie pakkumine Teie kirjeldatud töödele.
Lugupidamisega
HN

Kasutaja ikoon ID70688
Pakkuja profiil Väike nool paremale
39 750€ Sisaldab KM Sisaldab KM 10.02.2023 Vestlus (0)

Pakkumise kirjeldus:

Tere! Hinnapakkummine sisaldab teie poolt soovitud töid,materjale,prahi utiliseerimist. Parkett välja arvatud. Töö kiire ja korralik. Garantii 2 aastat. Soovin objekti ennem õle ka vaadata. Jään ootama teie kontakti. Erki

Kasutaja ikoon ID57837
Pakkuja profiil Väike nool paremale
52 800€ KM lisandub KM lisandub 10.02.2023 Vestlus (0)

Pakkumise kirjeldus:

Tere! Minu pakkumine kirjeldatud töödele.
Tänades

Kasutaja ikoon ID70588
Pakkuja profiil Väike nool paremale
60 000€ Ei ole KMKR Ei ole KMKR 10.02.2023 Vestlus (0)

Pakkumise kirjeldus:

Tere,

Oleme huvitatud Teie hankest, teha saame Teile sobival ajal ja planeeritud 2+ 1 meest.

Pakkumine küsitud töödele ja materjalidele tehtud kogemuse põhjal, sisaldab vajalikku transporti jne, töödele garantii.

Lugupidamisega,

jm.

Kasutaja ikoon ID72267
Pakkuja profiil Väike nool paremale
33 000€ Sisaldab KM Sisaldab KM 10.02.2023 Vestlus (0)

Pakkumise kirjeldus:

Готовы помочь вам в вашей задаче. Звоните для уточнения деталей. Можем оформить через фирму с гарантией!

Kasutaja ikoon ID72190
Pakkuja profiil Väike nool paremale
52 000€ Sisaldab KM Sisaldab KM 12.02.2023 Vestlus (0)
Kasutaja ikoon ID72752
Pakkuja profiil Väike nool paremale
32 000€ Sisaldab KM Sisaldab KM 14.02.2023 Vestlus (0)

Pakkumise kirjeldus:

Korralik töö ja tulemus! Üheskoos leiame parima lahenduse! Tööd teostame kahekesi. Sooviksime ka tutvuda objektiga.

Kasutaja ikoon ID52873
Pakkuja profiil Väike nool paremale
10 230€ KM lisandub KM lisandub 15.02.2023 Vestlus (0)

Pakkumise kirjeldus:

Tere,

Pakkumine hankes teostatavatele töödele, ei sisalda materjale.

Teostan töid üksinda, pean vajalikuks ära märkida.

Lp.
Marek

Kasutaja ikoon ID71416
Pakkuja profiil Väike nool paremale
22 000€ Ei ole KMKR Ei ole KMKR 15.02.2023 Vestlus (0)

Pakkumise kirjeldus:

Pakkumine sisaldab vaid tööd. Materjalide osas saab läbirääkida enne tööde alustamist.

Kasutaja ikoon ID72774
Pakkuja profiil Väike nool paremale
30 000€ Ei ole KMKR Ei ole KMKR 16.02.2023 Vestlus (0)

Pakkumise kirjeldus:

Pakkumine on tehtud töödele. summas 10 000. Kuna materjalide valik ja hind sõltub palju tellijast siis arvestasime pakkumises 20 000-ga. See muutub arvatavasti. Garantii. Vajadusel kuni 6 töömeest. Omame pikaajalist kogemust ja saame anda head konsultatsiooni erinevate lahenduste jaoks. Saame aidata materjalide hankimisel.

Küsimused hanke korraldajale

Küsimus: private ID52873   10.02.2023 11:55
Tere,

Kas põrandale soovite paigaldada lisa prussid(kuidas jääb ruumide kõrgusega sellisel juhul) et annaks soojustuseks 400mm välja(projektis)?
Kas tuuletõke on juba paigaldatud? Või tuleb sarikate vahele?
Kas soovite puistevillaga soojustada või sobib ka kivivill(plaat)?
Seina- ja laepaneele palju erinevaid, millist soovite?

Terv.
Marek

Teavita reeglite rikkumisest

Korraldaja vastus: 10.02.2023 18:25

Tere!

Kas lisaprusse paigaldada, sõltub sellest, milline oleks soojustuse paksus ilma nendeta. Kui peale lisaprusse hakkab pea vastu lage käima, siis jätaks need ära. Eesmärk on saavutada hea soojapidavus seintel/põrandal/lagedel ning ka heliisolatsioon, et alumisele korrusele jõuaks maksimaalselt vähe heli (ja vastupidi).

Tuuletõkke kangas on paigaldatud. Sarikate vahele tuleks soojustus, roovitus, osb plaat. Seega tuuletõkkeplaati paigaldama ei pea.

Kuna praegu on kohapeal olemas ca 45 - 50 pakki kivivilla, siis need tuleks kõigepealt ära panna. Ülejäänud võib olla puistevill.

Seina- ja laepaneelide valik on väga suur. Lõplikku otsust veel langetanud ei ole, kuid hetkel on silma jäänud need variandid:
Laepaneel: https://www.decora.ee/isotex-nordic-quatro-280x1800
Seinapaneel: https://www.decora.ee/seinapaneel-mdf-avanti-e-bright-white-2-6m

Elektritöö teeb elektrifirma (pistikud, lülitid, valgustid, termostaadid).
Radiaatorid on olemas ja need paigaldab küttefirma.

Kui on veel küsimusi, siis hea meelega vastan.

Teavita reeglite rikkumisest

Küsimus: private ID52873   14.02.2023 09:06
Tere

Kas Teile sobib kui teen pakkumise ainult tehtavatele töödele?

Teavita reeglite rikkumisest

Korraldaja vastus: 14.02.2023 12:07

Kas peate silmas raha ainult töö eest (ilma materjalikuluta)? Jah, sobib.

Teavita reeglite rikkumisest

Küsimus: private ID52873   15.02.2023 10:51
Tere,

Kahjuks ei luba hange.ee keskkond teha pakkumist ainult töödele.

Teavita reeglite rikkumisest

Korraldaja vastus: 17.02.2023 11:43

Tere!

Pakkumise oleks saanud teha mingile summale ning lisada kommentaar juurde, et tegemist vaid töö rahaga.

Annan ka teada, et olen ehitaja leidnud ning rohkem ei ole mõtet pakkumisi teha.

Teavita reeglite rikkumisest

Lisa küsimus

Lisa küsimus

Minu pakkumine

Reeglid

Pakkumise kirjelduse väli on mõeldud pakkumise detailsemaks lahti kirjutamiseks. Pikema teksti mugavaks sisestamiseks klikkige kasti paremal ülaservas oleval ikoonil.
Pakkumist tehes on keelatud postitada enda kontaktandmeid (nimi, telefon, aadress jne). Me jälgime ja analüüsime pakkumisi, et vältida pettuseid ja reeglite rikkumisi.
Rikkumise puhul kasutajakonto blokeeritakse.

 

Teisi töid samas valdkonnas

Valdkonnas "Üldehitus" on 30 aktiivset tööd

Põrandakütte torustiku ja kollektori paigaldus.

Asukoht: Harjumaa, Kurkse
Aega jäänud: 16p 5h
Tehtud pakkumisi: 4

Kuuri lammutus

Asukoht: Pärnumaa
Aega jäänud: 3p 5h
Tehtud pakkumisi: 3

Vanemad teated:

Vaata kõiki

Sellel veebilehel kasutatakse küpsiseid. Kasutamist jätkates nõustute küpsiste kasutamisega.

Sulge
 
Minu pakkumine

Reeglid

Pakkumise kirjelduse väli on mõeldud pakkumise detailsemaks lahti kirjutamiseks. Pikema teksti mugavaks sisestamiseks klikkige kasti paremal ülaservas oleval ikoonil.
Pakkumist tehes on keelatud postitada enda kontaktandmeid (nimi, telefon, aadress jne). Me jälgime ja analüüsime pakkumisi, et vältida pettuseid ja reeglite rikkumisi.
Rikkumise puhul kasutajakonto blokeeritakse.