+ Lisa oma töö      

Otsid ehitajat "Katusetööd" valdkonnast?

Parima pakkumise ja teostaja leidmiseks lisa oma töö.

katusetööd

ID 78578

888 vaatamist

Prindi

  • check Pakkumiste tegemine
    kuni 07.02.2023
  • check Võitja valik kuni
    14.02.2023
  • 3 Töö teostamine
    ja hinnang
Hanke lõpp: T, 7. veebruar, 2023
Maakond: Pärnumaa
Linn: Pärnu
Tööde algus: E, 06. veebruar, 2023 (Soovituslik)
Tööde lõpp: T, 28. veebruar, 2023 (Soovituslik)
Ehitusmaterjalid: Töö tellija poolt
Soovin pakkumisi: Summa kogu projektile

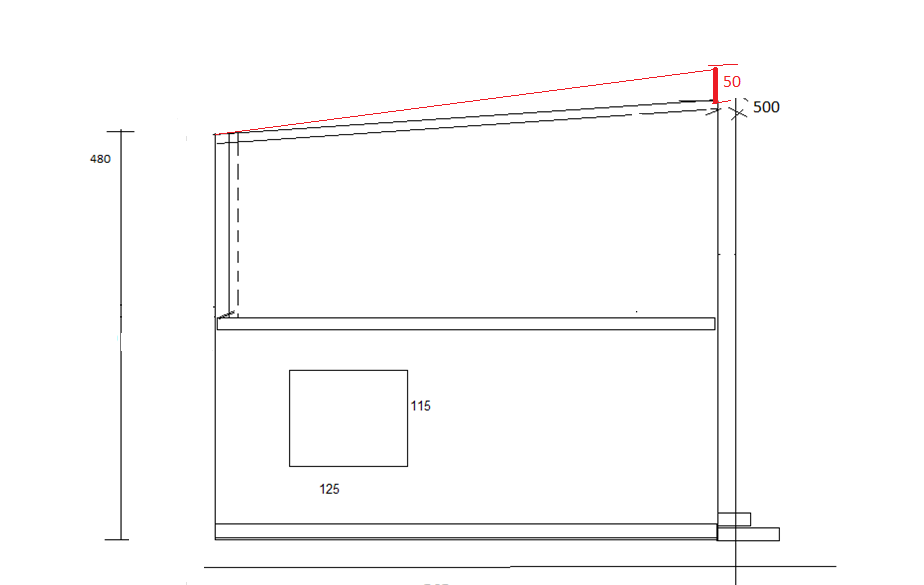
Töö sisu

Olemasolev katus hakkas lekkima, sellega seoses on soov:
Vahetada välja kogu katus ca 65m2.
Katuse pealiskihti katab bituumen, mille all OSB plaat, roovitus ja prussid 50x150.
Sooviks eemaldada osb ja roovituse ning katuse kõrgemat otsa tõsta 50cm võrra, et tekiks suurem kalle.
Olemasolevad prussid jääksid paika, kalle tuleks teostada uute prusside abil.. Materjalid soetan ise, eelnevalt töö tegijaga konsulteerides, samuti võib teha pakkumise koos materjalidega ja oma nägemuse asjast, katusekatte valik jne.
Tööde teostajal tuleb valmistada ka uued räästa kastid.

Pildid, video ja failid

Hanke korraldaja: eraisik ID72535

Pakkumised

Pakkumisi kokku: 13

Ettevõte Summa Käibemaks Lisatud Vestlus
Kasutaja ikoon ID68458
Pakkuja profiil Väike nool paremale
4 500€ Ikoon kell Ei ole KMKR Ei ole KMKR 31.01.2023 Vestlus (4)

Pakkumise kirjeldus:

Tere
Pakkumine sisaldab olemasoleva katuse lammutamist sarikateni, uute sarikate paigaldust suurema kaldenurgaga, aluskatte paigaldust, distantsliistu ja tiheda roovituse paigaldust. Lisaks ka räästakastide ehitust.
Lisaks katusekattematerjali paigaldust. Soovitaksin katusekattena kas classic või valtsprofiil plekki.
Pakkumises arvestatud odavama paiga ... Rohkem

Kasutaja ikoon ID70448
Pakkuja profiil Väike nool paremale
3 750€ Ei ole KMKR Ei ole KMKR 01.02.2023 Vestlus (11)

Pakkumise kirjeldus:

Meie pakkumine Teie kirjeldatud töödele.
Lugupidamisega
HN

Kasutaja ikoon ID59430
Pakkuja profiil Väike nool paremale
4 000€ KM lisandub KM lisandub 01.02.2023 Vestlus (0)

Pakkumise kirjeldus:

Tööraha

Kasutaja ikoon ID42041
Pakkuja profiil Väike nool paremale
4 670€ Sisaldab KM Sisaldab KM 01.02.2023 Vestlus (2)

Pakkumise kirjeldus:

Tere!
Tööde sisu, Vihmavee eemaldus, tuulekastide lammutus, vanakatte/osb eemaldus, uue katuse sõrestiku ehitus, katusekatte paigaldus vastavalt soovile( julgeks soovitada PVC katet, kuid pleki peale minnes tuleks hinnavõit)
Fassaadi ehitus/soojustus, Tuulekastide ehitus,
Vihmavee paigaldus
Prügi utiliseerimine.
Koos materjaliga 106.- m2 sisaldab ... Rohkem

Kasutaja ikoon ID62796
Pakkuja profiil Väike nool paremale
2 500€ Ei ole KMKR Ei ole KMKR 01.02.2023 Vestlus (19)

Pakkumise kirjeldus:

Tere!

Pakkumine vana katuse eemalduseks kuni prussideni ja uue katuse ehitust, koos kalde suurendamisega 50cm.
Pakkumises töö raha.
Võimalik alustada koheselt hanke võitmisel.
Ettemaks 50% tuleks tasuda siis kui vana katus maas.


Lgp Riivo.

Kasutaja ikoon ID70424
Pakkuja profiil Väike nool paremale
14 000€ KM lisandub KM lisandub 01.02.2023 Vestlus (0)

Pakkumise kirjeldus:

Tere

Pakkumine sisaldab 3 mehe majutustja tööraha.

Materjali saab konkreetselt välja arvutada koha peal.

Saab tasuda ka sularahas.

Kasutaja ikoon ID50648
Pakkuja profiil Väike nool paremale
3 200€ Ei ole KMKR Ei ole KMKR 02.02.2023 Vestlus (5)

Pakkumise kirjeldus:

Pvc katuse täis lahendus, pvc jaoks ei ole vaja kallet muuta ja kui katus läbi ei vaju võib otse vana sbsi peale paigaldada.

Sbs vananenud tehniloogia

Kui katus mäda või soovite siiski kallet tõsta läheb hind kallimaks

Garantii ja sertifitseeritud paigaldaja

Kasutaja ikoon ID55968
Pakkuja profiil Väike nool paremale
4 800€ KM lisandub KM lisandub 02.02.2023 Vestlus (0)

Pakkumise kirjeldus:

Hind sisaldab töödeteostamist,Tellinguid või tõstukit.

Kasutaja ikoon ID71766
Pakkuja profiil Väike nool paremale
5 000€ Ei ole KMKR Ei ole KMKR 02.02.2023 Vestlus (0)

Pakkumise kirjeldus:

Tere,

Pakkumine kirjeldatud töödele. Hind võib kõikuda olenevalt katusematerjali valikust.

Parimat,
LK

Kasutaja ikoon ID50594
Pakkuja profiil Väike nool paremale
15 000€ KM lisandub KM lisandub 02.02.2023 Vestlus (0)

Pakkumise kirjeldus:

Tere,

Hinnapakkumine koostatud vastavalt hanke kirjeldusele.
Uus kattematerjal classic plekk.

Lgp. Taivo

Kasutaja ikoon ID72248
Pakkuja profiil Väike nool paremale
5 500€ Sisaldab KM Sisaldab KM 05.02.2023 Vestlus (0)
Kasutaja ikoon ID59528
Pakkuja profiil Väike nool paremale
10 000€ KM lisandub KM lisandub 06.02.2023 Vestlus (0)

Pakkumise kirjeldus:

Tere,

Pakkumine tehtud vastavalt Hankes kirjeldatud töödele, katuse katteks plekk profiil
Töid teostab proffesionaalne meeskond, kōikidele meie poolt tehtud töödele garantii !
Ettevõttel olemas kindlustus, mis katab tehtud tööd!

Kui meie pakkumise vastu huvi, võtke meiega ühendust ja kirjutame oma hinnapakkumise lahti.
Meie profiili alt n ... Rohkem

Kasutaja ikoon ID54831
Pakkuja profiil Väike nool paremale
3 000€ Sisaldab KM Sisaldab KM 07.02.2023 Vestlus (0)

Pakkumise kirjeldus:

Tere, Kui ol.ol katusekonstruktsioon on tugev siis ei näe me mingit vajadust see eemaldada! See selguks objekti lähivaatlusel, Meie pakkumine on uue katuse ehitus, tõstmine, rihtimine ja profiilpleki paigaldus ol.ol. katusele. Kui siiski selgub, et asi on mäda siis lisandub 600 €.
P.S. Kuidas Te näete, et katust tõsta ühelt poolt 50 mm. ? ... Esm ... Rohkem

Küsimused hanke korraldajale

Küsimus: private ID72049   31.01.2023 22:00
Tere.

Kas sobib ka töö teostamine Märtsi algusest ?
Veebruari enam ei mahutaks kuidagi.

Mis oleks Tellija poolne katuskatte eelistus ?
Soovite SBS katte ka uuele katusele ? Võimalik oleks ka classic plekk paigaldada .

Lugupidamisega,
Pärnu K.

Teavita reeglite rikkumisest

Korraldaja vastus: 01.02.2023 09:49

Tere,

Eelistaksin pigem plekki, milline oleks tööde hind koos materjaliga?

Teavita reeglite rikkumisest

Lisa küsimus

Lisa küsimus

Minu pakkumine

Reeglid

Pakkumise kirjelduse väli on mõeldud pakkumise detailsemaks lahti kirjutamiseks. Pikema teksti mugavaks sisestamiseks klikkige kasti paremal ülaservas oleval ikoonil.
Pakkumist tehes on keelatud postitada enda kontaktandmeid (nimi, telefon, aadress jne). Me jälgime ja analüüsime pakkumisi, et vältida pettuseid ja reeglite rikkumisi.
Rikkumise puhul kasutajakonto blokeeritakse.

 

Teisi töid samas valdkonnas

Valdkonnas "Katusetööd" on 10 aktiivset tööd

no-img Pilt puudub

Käidava katuse PVC 54m2

Asukoht: Harjumaa, Muraste
Aega jäänud: 4p 5h
Tehtud pakkumisi: 3

Suvila

Asukoht: Pärnumaa, Eametsa
Aega jäänud: 5h 57 min
Tehtud pakkumisi: 2

Vanemad teated:

Vaata kõiki

Sellel veebilehel kasutatakse küpsiseid. Kasutamist jätkates nõustute küpsiste kasutamisega.

Sulge
 
Minu pakkumine

Reeglid

Pakkumise kirjelduse väli on mõeldud pakkumise detailsemaks lahti kirjutamiseks. Pikema teksti mugavaks sisestamiseks klikkige kasti paremal ülaservas oleval ikoonil.
Pakkumist tehes on keelatud postitada enda kontaktandmeid (nimi, telefon, aadress jne). Me jälgime ja analüüsime pakkumisi, et vältida pettuseid ja reeglite rikkumisi.
Rikkumise puhul kasutajakonto blokeeritakse.