+ Lisa oma töö      

Otsid ehitajat "Ventilatsioonitööd" valdkonnast?

Parima pakkumise ja teostaja leidmiseks lisa oma töö.

Ventilatsiooni paigaldus

ID 78343

669 vaatamist

Prindi

  • check Pakkumiste tegemine
    kuni 25.01.2023
  • check Võitja valik kuni
    01.02.2023
  • 3 Töö teostamine
    ja hinnang
Hanke lõpp: K, 25. jaanuar, 2023
Maakond: Lääne-Virumaa
Muu asula: Roela
Tööde algus: E, 23. jaanuar, 2023 (Soovituslik)
Tööde lõpp: T, 31. jaanuar, 2023 (Soovituslik)
Ehitusmaterjalid: Töö tegija poolt
Soovin pakkumisi: Summa kogu projektile

Töö sisu

Otsin eramule ventilatsioonsüsteemile paigaldajat

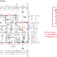
Pildid, video ja failid

Hanke korraldaja: ettevõte ID33406

Pakkumised

Pakkumisi kokku: 5

Ettevõte Summa Käibemaks Lisatud Vestlus
Kasutaja ikoon ID41204
Pakkuja profiil Väike nool paremale
7 000€ KM lisandub KM lisandub 19.01.2023 Vestlus (0)

Pakkumise kirjeldus:

Tööde aeg:
1 etapp - 5-7 päeva
2 etapp - 2-3 päeva
3 etapp - 1 päev.

Kasutaja ikoon ID71075
Pakkuja profiil Väike nool paremale
6 600€ KM lisandub KM lisandub 19.01.2023 Vestlus (0)
Kasutaja ikoon ID70448
Pakkuja profiil Väike nool paremale
6 500€ Ei ole KMKR Ei ole KMKR 19.01.2023 Vestlus (0)
Kasutaja ikoon ID53315
Pakkuja profiil Väike nool paremale
6 800€ Ikoon kell Ei ole KMKR Ei ole KMKR 22.01.2023 Vestlus (0)

Pakkumise kirjeldus:

Materjalid, paigaldus, ventseade plaatsoojusvahetiga HOLTOP ECO-smart ERV D3,5 (350m3/h), 10 erikiirust, touch screen paneel

Kasutaja ikoon ID72273
Pakkuja profiil Väike nool paremale
8 400€ KM lisandub KM lisandub 24.01.2023 Vestlus (0)

Pakkumise kirjeldus:

Hinnas on arvestatud ventilatsiooni seadet airobot V3, ventilatsiooni torustikud ja torustiku osasid joonise põhjal, ventilatsioonitorustiku isolatsiooni kogust joonise põhjal, läbiviikudeks avade tegemist, süsteemi paigaldust ja isoleerimist joonise põhjal, materjalide transporti, toodete konsultatsiooni.

Parimat.
K.K

Küsimused hanke korraldajale

Küsimus: private ID53315   18.01.2023 16:00
Tere, mis materjalist siseseinad on, kas ventilatsioonimaterjalid Teie poolt ? Mis seade peaks minema, kas plaatsoojusvahetiga või rootoriga?

Teavita reeglite rikkumisest

Korraldaja vastus:
Hanke korraldaja ei ole küsimusele veel vastanud

Lisa küsimus

Lisa küsimus

Minu pakkumine

Reeglid

Pakkumise kirjelduse väli on mõeldud pakkumise detailsemaks lahti kirjutamiseks. Pikema teksti mugavaks sisestamiseks klikkige kasti paremal ülaservas oleval ikoonil.
Pakkumist tehes on keelatud postitada enda kontaktandmeid (nimi, telefon, aadress jne). Me jälgime ja analüüsime pakkumisi, et vältida pettuseid ja reeglite rikkumisi.
Rikkumise puhul kasutajakonto blokeeritakse.

 

Teisi töid samas valdkonnas

Valdkonnas "Ventilatsioonitööd" on 3 aktiivset tööd

Eramaja ventilatsioonitööd

Asukoht: Tartumaa, Soinaste
Aega jäänud: 6p 1h
Tehtud pakkumisi: 1

no-img Pilt puudub

Ventilatsiooni paigaldamine

Asukoht: Tartumaa, Tartu
Aega jäänud: 3p 1h
Tehtud pakkumisi: 0

Vanemad teated:

Vaata kõiki

Sellel veebilehel kasutatakse küpsiseid. Kasutamist jätkates nõustute küpsiste kasutamisega.

Sulge
 
Minu pakkumine

Reeglid

Pakkumise kirjelduse väli on mõeldud pakkumise detailsemaks lahti kirjutamiseks. Pikema teksti mugavaks sisestamiseks klikkige kasti paremal ülaservas oleval ikoonil.
Pakkumist tehes on keelatud postitada enda kontaktandmeid (nimi, telefon, aadress jne). Me jälgime ja analüüsime pakkumisi, et vältida pettuseid ja reeglite rikkumisi.
Rikkumise puhul kasutajakonto blokeeritakse.