+ Lisa oma töö      

Otsid ehitajat "Aia ehitus" valdkonnast?

Parima pakkumise ja teostaja leidmiseks lisa oma töö.

Tänavakivide paigaldus

ID 78113

858 vaatamist

Prindi

  • check Pakkumiste tegemine
    kuni 08.01.2023
  • check Võitja valik kuni
    15.01.2023
  • 3 Töö teostamine
    ja hinnang
Hanke lõpp: P, 8. jaanuar, 2023
Maakond: Harjumaa
Muu asula: Tiskre
Tööde algus: T, 02. mai, 2023 (Soovituslik)
Tööde lõpp: L, 06. mai, 2023 (Soovituslik)
Ehitusmaterjalid: Töö tellija poolt
Soovin pakkumisi: Summa kogu projektile

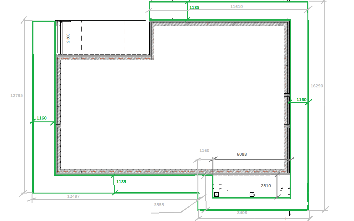
Töö sisu

Tänavakivide paigaldus. Lao maja ümber kivid, soojustuse ( XPS CARBON PROF 300 100MM 580X1180MM ) peale. Nüüd tihendatud liiv ja killustik + soojustus. Enne kivide ladumist on vaja täiendavalt (juba rammitult) tampida ja tasandada (väga peen kruus või liiv) vahu all.
Uut fotot, kuhu soojustus laotud, pole. On ainult foto, kus nad hakkasid vahtu panema.

Töö plaanis aprill-mai.
Kivi - Munga 60.
Umbes 60m2

Pildid, video ja failid

Hanke korraldaja: eraisik ID68746

Pakkumised

Pakkumisi kokku: 9

Ettevõte Summa Käibemaks Lisatud Vestlus
Kasutaja ikoon ID72028
Pakkuja profiil Väike nool paremale
2 300€ Sisaldab KM Sisaldab KM 05.01.2023 Vestlus (5)
Kasutaja ikoon ID70448
Pakkuja profiil Väike nool paremale
2 100€ Ei ole KMKR Ei ole KMKR 05.01.2023 Vestlus (4)
Kasutaja ikoon ID71684
Pakkuja profiil Väike nool paremale
2 660€ Sisaldab KM Sisaldab KM 06.01.2023 Vestlus (4)

Pakkumise kirjeldus:

Töö kiire ja kvaliteetne

Kasutaja ikoon ID53569
Pakkuja profiil Väike nool paremale
1 900€ Ei ole KMKR Ei ole KMKR 06.01.2023 Vestlus (2)

Pakkumise kirjeldus:

Hinnapakkumine sisaldab: pinnase ettevalmistust, sängituskihi ettevalmistust, tihendamine, põhja kõrguste nivelleerimine, tänavakivi paigaldus, platsi viimistlus.
Tööle garantii.

Kasutaja ikoon ID70588
Pakkuja profiil Väike nool paremale
3 100€ Ei ole KMKR Ei ole KMKR 06.01.2023 Vestlus (0)

Pakkumise kirjeldus:

Tere,

Pakkumine vastavalt hankes kirjeldatule!

Lugupidamisega,

j. m.

Kasutaja ikoon ID50594
Pakkuja profiil Väike nool paremale
3 000€ KM lisandub KM lisandub 06.01.2023 Vestlus (2)

Pakkumise kirjeldus:

Tere,

Hinnapakkumine koostatud vastavalt hanke kirjeldusele.
Võimalus tasuda ilma KM.

Lgp. Taivo

Kasutaja ikoon ID66441
Pakkuja profiil Väike nool paremale
2 300€ Sisaldab KM Sisaldab KM 06.01.2023 Vestlus (4)

Pakkumise kirjeldus:

Tere,

Pakkumine sisaldab tänavakivide ja äärekivi paigaldust ning aluspinna ettevalmistust

Kasutaja ikoon ID71147
Pakkuja profiil Väike nool paremale
2 000€ Sisaldab KM Sisaldab KM 08.01.2023 Vestlus (2)

Pakkumise kirjeldus:

Pakkumine arvestusega, et materjalid tellija poolt.

Kasutaja ikoon ID55769
Pakkuja profiil Väike nool paremale
2 100€ Ei ole KMKR Ei ole KMKR 08.01.2023 Vestlus (2)

Pakkumise kirjeldus:

Pakkumine sisaldab ca 60rm kivi paigaldust ja ca 30 m äärekivi paigaldust.
Kõik materjalid teie poolt, kivid, äärekivid, alusmaterjal, vuugiliiv.
Meie poolt äärekivi betoon ja töö.

Küsimused hanke korraldajale

Küsimus: private ID55769   06.01.2023 18:25
Tere. Kas äärekivi ka tuleb paigaldada?

Teavita reeglite rikkumisest

Korraldaja vastus: 06.01.2023 18:54

osaline, jah. Ma arvan, et 28-30jm

Teavita reeglite rikkumisest

Lisa küsimus

Lisa küsimus

Minu pakkumine

Reeglid

Pakkumise kirjelduse väli on mõeldud pakkumise detailsemaks lahti kirjutamiseks. Pikema teksti mugavaks sisestamiseks klikkige kasti paremal ülaservas oleval ikoonil.
Pakkumist tehes on keelatud postitada enda kontaktandmeid (nimi, telefon, aadress jne). Me jälgime ja analüüsime pakkumisi, et vältida pettuseid ja reeglite rikkumisi.
Rikkumise puhul kasutajakonto blokeeritakse.

 

Teisi töid samas valdkonnas

Valdkonnas "Aia ehitus" on 18 aktiivset tööd

Tänavakivi puhastus

Asukoht: Harjumaa, Tallinn
Aega jäänud: 17h 5 min
Tehtud pakkumisi: 7

no-img Pilt puudub

Piirdeaia postide paigaldus koos paneelidega

Asukoht: Tartumaa
Aega jäänud: 1p 17h
Tehtud pakkumisi: 5

Vanemad teated:

Vaata kõiki

Sellel veebilehel kasutatakse küpsiseid. Kasutamist jätkates nõustute küpsiste kasutamisega.

Sulge
 
Minu pakkumine

Reeglid

Pakkumise kirjelduse väli on mõeldud pakkumise detailsemaks lahti kirjutamiseks. Pikema teksti mugavaks sisestamiseks klikkige kasti paremal ülaservas oleval ikoonil.
Pakkumist tehes on keelatud postitada enda kontaktandmeid (nimi, telefon, aadress jne). Me jälgime ja analüüsime pakkumisi, et vältida pettuseid ja reeglite rikkumisi.
Rikkumise puhul kasutajakonto blokeeritakse.