+ Lisa oma töö      

Otsid ehitajat "Siseviimistlustööd" valdkonnast?

Parima pakkumise ja teostaja leidmiseks lisa oma töö.

Hiiumaal 50-ruuduse suvila siseviimistlus

ID 78092

580 vaatamist

Prindi

  • check Pakkumiste tegemine
    kuni 18.01.2023
  • check Võitja valik kuni
    25.01.2023
  • 3 Töö teostamine
    ja hinnang
Hanke lõpp: K, 18. jaanuar, 2023
Maakond: Hiiumaa
Muu asula: Kiduspe
Tööde algus: E, 13. märts, 2023 (Soovituslik)
Tööde lõpp: E, 10. aprill, 2023 (Soovituslik)
Ehitusmaterjalid: Töö tellija poolt
Soovin pakkumisi: Summa kogu projektile

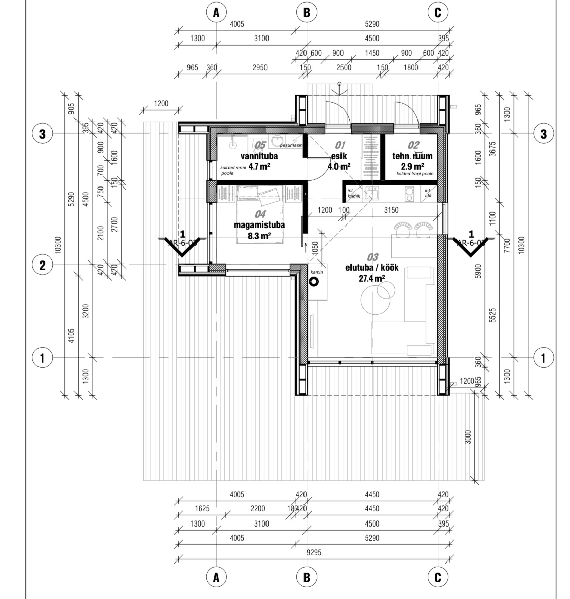
Töö sisu

Tööd, mis vaja teostada:

* 5-ruutmeetrise vannitoa ehitus (plaatimine või mikrotsement). Vaja tasandada põrand ja valada kalded. Dushinurgas renntrapp.

* 75 ruutu katuslage (viilkatus) paigaldada sisevoodrilaud, värvida. Lae max kõrgus 4,2 meetrit.

* 120 ruutu kipsseinu pahteldada ja värvida.

* 40 ruutu puitparketti paigaldada (liimiga).

Kui soovite teha pakkumist vaid mõnele nimetatud töödest, siis võib teha ka osalise pakkumise.

Pildid, video ja failid

Hanke korraldaja: eraisik ID54969

Pakkumised

Pakkumisi kokku: 5

Ettevõte Summa Käibemaks Lisatud Vestlus
Kasutaja ikoon ID70448
Pakkuja profiil Väike nool paremale
8 000€ Ei ole KMKR Ei ole KMKR 07.01.2023 Vestlus (0)
Kasutaja ikoon ID54009
Pakkuja profiil Väike nool paremale
5 500€ KM lisandub KM lisandub 08.01.2023 Vestlus (0)

Pakkumise kirjeldus:

Tere

Materljal telija poolt.

Kasutaja ikoon ID58217
Pakkuja profiil Väike nool paremale
5 950€ KM lisandub KM lisandub 10.01.2023 Vestlus (0)

Pakkumise kirjeldus:

Tere!

Pakkumine hankes kirjeldatule majutuseta ja materjalideta. Tööd teeks 1-2 meest vastavalt töö sisule ning majutuse organiseerimisest, objekti ja majutuskoha vahelisest liikumisest sõltuvalt võib pakkumine hankes antud määral muutuda. Võime teostada ka materjalide soetamise vastavalt tulevastele kokkulepetele .

Lugupidamisega,
S

Kasutaja ikoon ID40144
Pakkuja profiil Väike nool paremale
5 350€ KM lisandub KM lisandub 17.01.2023 Vestlus (0)
Kasutaja ikoon ID72042
Pakkuja profiil Väike nool paremale
8 000€ Sisaldab KM Sisaldab KM 18.01.2023 Vestlus (0)

Küsimused hanke korraldajale

Küsimus: private ID67735   05.01.2023 09:16
Tere, kas vannitoas kommunikatsioonid veetud ja seinad püsti, et saab kohe plaatima hakata või missugune seal olukord on?

Teavita reeglite rikkumisest

Korraldaja vastus: 05.01.2023 09:30

Tööde alguse ajaks on vannitoas seinad püsti ja kommunikatsioonid veetud. Vaja on viimistleda seinad, tasandada ja viimistleda põrand.

Teavita reeglite rikkumisest

Küsimus: private ID70588   05.01.2023 11:22
Tere,

Kui saaks veidi infot juurde:

Plaadi suurus?
Milline parkett, mis mustrisse?
Lähim elamise võimalus, 2 meest 1 kuu?
Kas olete ise kohapeal või kuidas n materjali tarne oleks organiseeritud?

Lugupidamisega,

j. m.

Teavita reeglite rikkumisest

Korraldaja vastus: 05.01.2023 15:54

* Vannituppa on plaanitud 30x30cm plaadid (juhul, kui ei teostaja ei paku mikrotsementi).
* Parkett tuleb tavaline ühelipiline.
* Saan korraldada elamise Kärdla hotellis (objektist 40 km).
* Panin kirjeldusse, et materjal minu poolt (et vähendada siinset teenustasu ehitaja jaoks). Teostaja võib materjali ka ise korraldada. Kärdlas on ehituspood, kust saab teostaja lahtise arvega vajalikku kaupa võtta.

Teavita reeglite rikkumisest

Küsimus: private ID70588   05.01.2023 17:19
Tere,

Saan aru, et kui 2 meest meilt n ehitavad, siis teie organiseeriksite kogu vajaliku materjali kohale ja kui mehed bussiga käivad, siis saavad jooksvalt ka Kärdlast kohe asjad kätte, üks sõitmine... mis peale mahub.

Terv. j

Teavita reeglite rikkumisest

Korraldaja vastus: 05.01.2023 17:24

Just nii

Teavita reeglite rikkumisest

Lisa küsimus

Lisa küsimus

Minu pakkumine

Reeglid

Pakkumise kirjelduse väli on mõeldud pakkumise detailsemaks lahti kirjutamiseks. Pikema teksti mugavaks sisestamiseks klikkige kasti paremal ülaservas oleval ikoonil.
Pakkumist tehes on keelatud postitada enda kontaktandmeid (nimi, telefon, aadress jne). Me jälgime ja analüüsime pakkumisi, et vältida pettuseid ja reeglite rikkumisi.
Rikkumise puhul kasutajakonto blokeeritakse.

 

Teisi töid samas valdkonnas

Valdkonnas "Siseviimistlustööd" on 20 aktiivset tööd

Seinte pahteldus ja värvimine

Asukoht: Harjumaa, Türisalu
Aega jäänud: 2p 20h
Tehtud pakkumisi: 7

Korteri seinte ja lagede värvimine, osaline pahteldamine

Asukoht: Harjumaa, Tallinn
Aega jäänud: 20h 33 min
Tehtud pakkumisi: 5

Vanemad teated:

Vaata kõiki

Sellel veebilehel kasutatakse küpsiseid. Kasutamist jätkates nõustute küpsiste kasutamisega.

Sulge
 
Minu pakkumine

Reeglid

Pakkumise kirjelduse väli on mõeldud pakkumise detailsemaks lahti kirjutamiseks. Pikema teksti mugavaks sisestamiseks klikkige kasti paremal ülaservas oleval ikoonil.
Pakkumist tehes on keelatud postitada enda kontaktandmeid (nimi, telefon, aadress jne). Me jälgime ja analüüsime pakkumisi, et vältida pettuseid ja reeglite rikkumisi.
Rikkumise puhul kasutajakonto blokeeritakse.