+ Lisa oma töö      

Otsid ehitajat "Energiasüsteemide ehitus, hooldus" valdkonnast?

Parima pakkumise ja teostaja leidmiseks lisa oma töö.

Hange on lõppenud!

Võitjaks osutus kasutaja ID 66602

2x korruselise maja elektrisüsteemide projekteerimine

ID 78069

277 vaatamist

Prindi

  • check Pakkumiste tegemine
    kuni 04.01.2023
  • check Võitja valik kuni
    11.01.2023
  • 3 Töö teostamine
    ja hinnang
Hanke lõpp: K, 4. jaanuar, 2023
Maakond: Harjumaa
Muu asula: Muuga
Tööde algus: E, 23. jaanuar, 2023 (Soovituslik)
Tööde lõpp: E, 06. veebruar, 2023 (Soovituslik)
Ehitusmaterjalid: Töö tellija poolt
Soovin pakkumisi: Summa kogu projektile

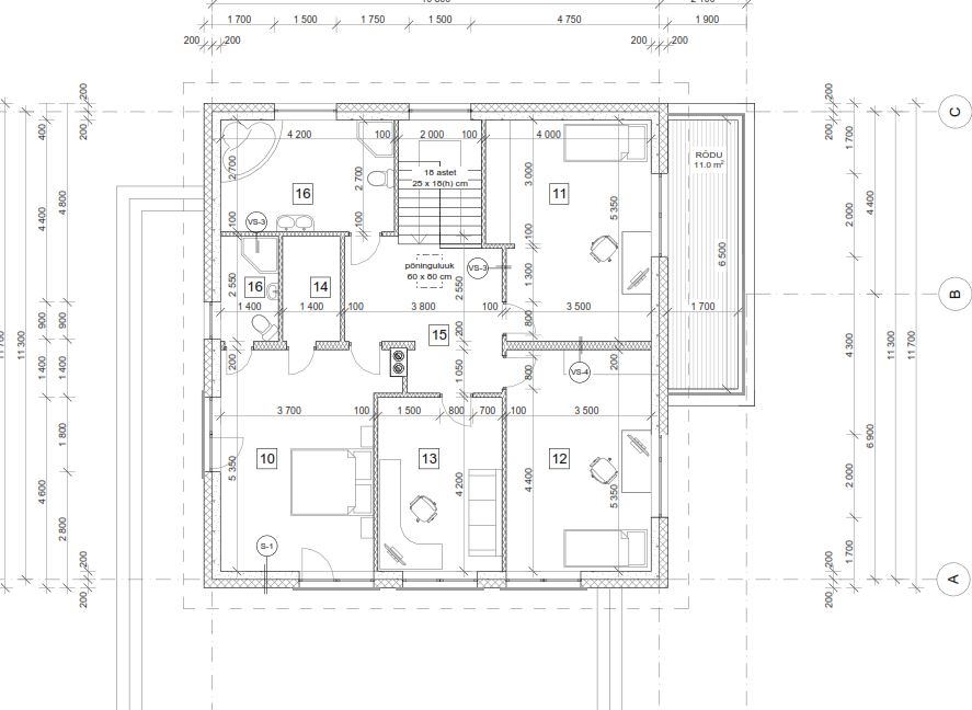
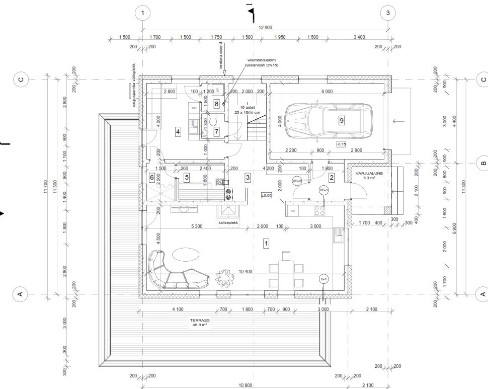
Töö sisu

Tere,

vaja koostada 2x korruselise eramaja elektrisüsteemide projekt.
ca 180m2 maja.

Pildid, video ja failid

Hanke korraldaja: eraisik ID68301

Pakkumised

Pakkumisi kokku: 1

Ettevõte Summa Käibemaks Lisatud Vestlus
Kasutaja ikoon ID66602
Pakkuja profiil Väike nool paremale
360€ Sisaldab KM Sisaldab KM 04.01.2023 Vestlus (0)

Pakkumise kirjeldus:

Esitan hinnapakkumise projekteerimistööle põhiprojekti staadiumis, mis sisaldab: 1) jõupaigaldist 2) valguspaigaldist 3) maanduspaigaldist 4) vajadusel piksekaitset 5) kilbijoonist 6) TV ja sidepistikud 7) el.varustust alates LK-st.

Töö teostamiseks vajalikud esialgsed lähteandmed Tellijalt: 1) hoone plaan .dwg formaadis 2) katastriüksuse geodee ... Rohkem

Küsimused hanke korraldajale

Hanke korraldajale ei ole veel küsimusi esitatud.

Lisa küsimus

Lisa küsimus

Minu pakkumine

Reeglid

Pakkumise kirjelduse väli on mõeldud pakkumise detailsemaks lahti kirjutamiseks. Pikema teksti mugavaks sisestamiseks klikkige kasti paremal ülaservas oleval ikoonil.
Pakkumist tehes on keelatud postitada enda kontaktandmeid (nimi, telefon, aadress jne). Me jälgime ja analüüsime pakkumisi, et vältida pettuseid ja reeglite rikkumisi.
Rikkumise puhul kasutajakonto blokeeritakse.

 

Vanemad teated:

Vaata kõiki

Sellel veebilehel kasutatakse küpsiseid. Kasutamist jätkates nõustute küpsiste kasutamisega.

Sulge
 
Minu pakkumine

Reeglid

Pakkumise kirjelduse väli on mõeldud pakkumise detailsemaks lahti kirjutamiseks. Pikema teksti mugavaks sisestamiseks klikkige kasti paremal ülaservas oleval ikoonil.
Pakkumist tehes on keelatud postitada enda kontaktandmeid (nimi, telefon, aadress jne). Me jälgime ja analüüsime pakkumisi, et vältida pettuseid ja reeglite rikkumisi.
Rikkumise puhul kasutajakonto blokeeritakse.