+ Lisa oma töö      

Otsid ehitajat "Siseviimistlustööd" valdkonnast?

Parima pakkumise ja teostaja leidmiseks lisa oma töö.

Siseviimistlustööd

ID 77739

1155 vaatamist

Prindi

  • check Pakkumiste tegemine
    kuni 12.12.2022
  • check Võitja valik kuni
    19.12.2022
  • 3 Töö teostamine
    ja hinnang
Hanke lõpp: E, 12. detsember, 2022
Maakond: Harjumaa
Muu asula: Randvere
Tööde algus: E, 28. november, 2022 (Soovituslik)
Tööde lõpp: K, 01. veebruar, 2023 (Soovituslik)
Ehitusmaterjalid: Töö tegija poolt
Soovin pakkumisi: Summa kogu projektile

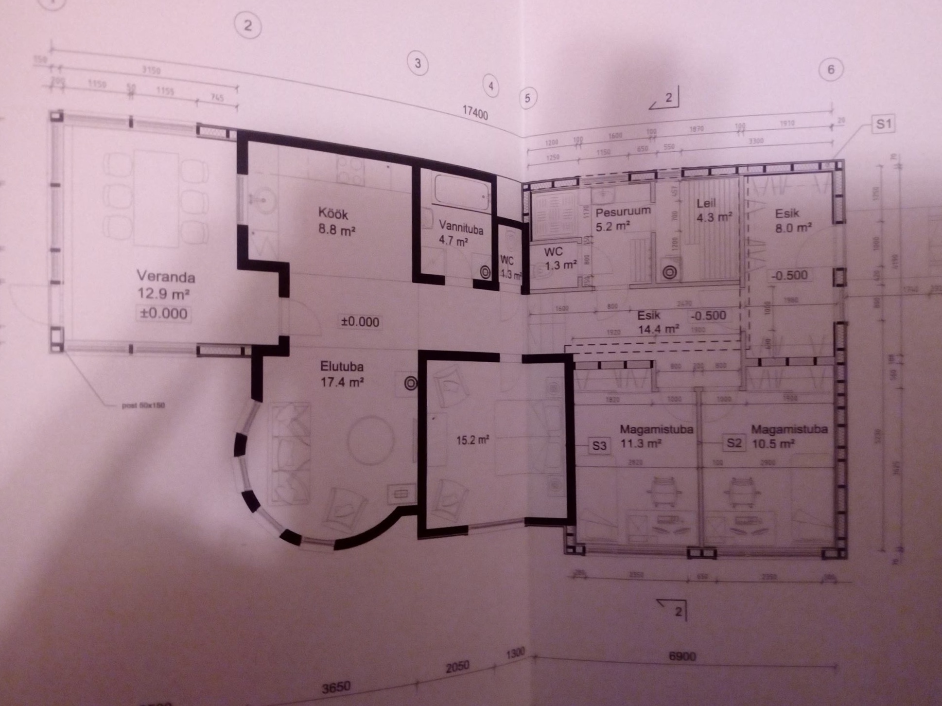
Töö sisu

Tere,

Oleks vaja teostada erinevaid siseviimistlustöid eramajas .
* Parkett paigaldada 50m2
* Parkett üles võtta ja uus paigaldada 50m2 .. osadelt seintelt laudis eemaldada ja kips paigaldada .. viimistleda ja värvida .
* 8m2 esikust põranda plaadid eemaldada ja uued paigaldada .. Seinad viimistleda . köök elutuba , tapeet eemaldada ja seinad viimistleda, värvida
* köök ja veranda vaheline sein osaliselt eemaldada
* laudis eemaldada veranda seintelt ja kips paigaldada, viimistleda/ värvida.
* Magamistuba 15.2m2 laudis eemaldada ja kips paigaldada , viimistleda ja värvida
* 2 väiksemat magamistuba tuleb üle värvida ja viimistleda , parkett paigaldada.
* Esik 14.4m2 seinad kips paigaldada ja viimistleda

* Parketi ja plaadid esikusse ostaksin ise

Maja suurus 115m2
Sooviks umbkaudset pakkumist töödele

Pildid, video ja failid

Hanke korraldaja: eraisik ID62707

Pakkumised

Pakkumisi kokku: 21

Ettevõte Summa Käibemaks Lisatud Vestlus
Kasutaja ikoon ID70928
Pakkuja profiil Väike nool paremale
9 600€ Ei ole KMKR Ei ole KMKR 28.11.2022 Vestlus (0)

Pakkumise kirjeldus:

Hind teie loetletud töödele on 9600€. Hind sisaldab tööd ja materjali. Põranda plaat ja parkett ei kuulu hinda. Käibemaksu ei lisandu.
Täpsema hinna saaks teha objekti üle vaatamisel. Oleme Viimsi firma ja objekti saaks vaadata teile sobival ajal. Hetkel Hange.ee kaudu viimsis 2 toalise korteri remont pooleli, tänu sellele on lihtne tulla teie ob ... Rohkem

Kasutaja ikoon ID71918
Pakkuja profiil Väike nool paremale
8 000€ Ei ole KMKR Ei ole KMKR 29.11.2022 Vestlus (0)
Kasutaja ikoon ID47629
Pakkuja profiil Väike nool paremale
16 000€ Sisaldab KM Sisaldab KM 29.11.2022 Vestlus (0)

Pakkumise kirjeldus:

Pakkumine vastavalt hanke kirjeldusele.
Maksmine lepingu alusel arvega ja etappide kaupa.

Lugupidamisega

Kasutaja ikoon ID67818
Pakkuja profiil Väike nool paremale
8 000€ Sisaldab KM Sisaldab KM 29.11.2022 Vestlus (0)
Kasutaja ikoon ID59454
Pakkuja profiil Väike nool paremale
12 900€ Ei ole KMKR Ei ole KMKR 29.11.2022 Vestlus (0)
Kasutaja ikoon ID58038
Pakkuja profiil Väike nool paremale
7 000€ KM lisandub KM lisandub 29.11.2022 Vestlus (0)
Kasutaja ikoon ID64451
Pakkuja profiil Väike nool paremale
7 680€ KM lisandub KM lisandub 29.11.2022 Vestlus (0)

Pakkumise kirjeldus:

Hind sisaldab pakkumises mainitud töid.Kindel soov on tulla objektiga tutvuma!

Parimat!

Kasutaja ikoon ID44917
Pakkuja profiil Väike nool paremale
10 000€ Ei ole KMKR Ei ole KMKR 30.11.2022 Vestlus (0)
Kasutaja ikoon ID56408
Pakkuja profiil Väike nool paremale
7 000€ Ei ole KMKR Ei ole KMKR 30.11.2022 Vestlus (0)

Pakkumise kirjeldus:

Tere,

Pakkumine Teie hankele.
Hind on umb kaudne.
Saame kokku leppida tunnihind.
Alustada saame kohe.

Lugupidamisega

Kasutaja ikoon ID71773
Pakkuja profiil Väike nool paremale
10 000€ Sisaldab KM Sisaldab KM 30.11.2022 Vestlus (0)
Kasutaja ikoon ID70448
Pakkuja profiil Väike nool paremale
9 500€ Ei ole KMKR Ei ole KMKR 30.11.2022 Vestlus (0)
Kasutaja ikoon ID52293
Pakkuja profiil Väike nool paremale
9 000€ Sisaldab KM Sisaldab KM 01.12.2022 Vestlus (0)
Kasutaja ikoon ID56337
Pakkuja profiil Väike nool paremale
8 000€ Ei ole KMKR Ei ole KMKR 02.12.2022 Vestlus (0)
Kasutaja ikoon ID54982
Pakkuja profiil Väike nool paremale
9 260€ Sisaldab KM Sisaldab KM 02.12.2022 Vestlus (0)

Pakkumise kirjeldus:

Umbkaudne pakkumine töörahale ja materjalidele.

Täpse pakkumise saab teha objektiga tutvudes.

Kasutaja ikoon ID71980
Pakkuja profiil Väike nool paremale
11 500€ Sisaldab KM Sisaldab KM 03.12.2022 Vestlus (0)

Pakkumise kirjeldus:

hind on umbes selline.

Kasutaja ikoon ID42628
Pakkuja profiil Väike nool paremale
14 400€ KM lisandub KM lisandub 05.12.2022 Vestlus (0)

Pakkumise kirjeldus:

Tere!

Pakkumine:
1. Parketi eemaldus, uue parketi paigaldus (sh alusvaip 2mm), põrandaliistude paigaldus. Liistu hind kuni 1,5eur/jm+km sisaldub hinnas
2. Laudise eemaldus seintelt, osaline seina lammutus
3. Tapeedi eemaldus, aluspinna ettevalmistus, pahteldus, kruntimine ja värvimine
4. 1-kordse tavakipsplaadi paigaldus ja viimistlus (pahteldus, kr ... Rohkem

Kasutaja ikoon ID70355
Pakkuja profiil Väike nool paremale
7 200€ Sisaldab KM Sisaldab KM 05.12.2022 Vestlus (0)

Pakkumise kirjeldus:

Tervitus!

Pakkumine vastavalt hanke sisule.
Pakkumine tehtud ainult( Töörahale) materjali valik ja materjali eelarvestamine toimub alles siis kui meid hanke võitjaks valitakse ja kohapeal oleme kooskõlastanud kõik punktid.
Materjalid maksab, tarnib objektile Tellija kui pole kokkulepitud teisiti.
Utiliseerimisega sammuti kooskõlastame kas tege ... Rohkem

Kasutaja ikoon ID71094
Pakkuja profiil Väike nool paremale
8 250€ Ei ole KMKR Ei ole KMKR 09.12.2022 Vestlus (0)

Pakkumise kirjeldus:

Tere, pakkumine sisaldab 21 päeva 3 väga tööka ja kogemustega ehitaja tööraha + transport töökohale. Saame pakkuda ka materjali transporti.
Materjali ostmisel saame pakkuda firma kaardiga soodustust, kuid materjal ei sisaldu hinnapakkumises.
Tööle saame hakata koheselt. Soovi korral saame teha arve, kuid siis lisandub hinnale käibemaks.
Koost ... Rohkem

Kasutaja ikoon ID72028
Pakkuja profiil Väike nool paremale
8 000€ Ei ole KMKR Ei ole KMKR 12.12.2022 Vestlus (0)

Pakkumise kirjeldus:

Tere. Oleme huvitatud sellest tööst ja töödega saaksime alustada koheselt.

Kasutaja ikoon ID65365
Pakkuja profiil Väike nool paremale
6 950€ Ikoon kell Ei ole KMKR Ei ole KMKR 12.12.2022 Vestlus (0)

Pakkumise kirjeldus:

Tere meie poolne pakkumie.Täpsema hinna saaks teha objekti üle vaatamisel.

Kasutaja ikoon ID71052
Pakkuja profiil Väike nool paremale
6 800€ Ei ole KMKR Ei ole KMKR 12.12.2022 Vestlus (0)

Pakkumise kirjeldus:

Pakkumine vastavalt hanke sisule.
Materjalid ostame, tarnime meie(Uus parkett hinnaga kuni 12€/m2).
Hindame kõrgelt kvaliteeti.
Pildid tehtud töödest.
Soovitajad.
Garantii.
Tööde teostus jaanuari algus-veebruar 2023a.
Meie kontaktid leiate hange.ee

Vaid parimat soovides.

Küsimused hanke korraldajale

Küsimus: private ID62715   29.11.2022 09:41
See on tunnitöö või siis pakkumised tehakse tööettappide kaupa. Tasuta eelarvestamine jääb ära. Samuti ka maksmine käib etapiviisiliselt. Materjalid ostetakse kliendi raha eest vajalikus koguses osadena. Materjalide eest maksab klient ette või toob ise. Nii käib asi! Aitäh.

Teavita reeglite rikkumisest

Korraldaja vastus:
Hanke korraldaja ei ole küsimusele veel vastanud

Küsimus: private ID66857   11.12.2022 21:23
Mis materjalid tei poolt ja mis ehitaja poolt.(parkett,mis sobib ja millist soovib suured hinna käärid.

Teavita reeglite rikkumisest

Korraldaja vastus:
Hanke korraldaja ei ole küsimusele veel vastanud

Lisa küsimus

Lisa küsimus

Minu pakkumine

Reeglid

Pakkumise kirjelduse väli on mõeldud pakkumise detailsemaks lahti kirjutamiseks. Pikema teksti mugavaks sisestamiseks klikkige kasti paremal ülaservas oleval ikoonil.
Pakkumist tehes on keelatud postitada enda kontaktandmeid (nimi, telefon, aadress jne). Me jälgime ja analüüsime pakkumisi, et vältida pettuseid ja reeglite rikkumisi.
Rikkumise puhul kasutajakonto blokeeritakse.

 

Teisi töid samas valdkonnas

Valdkonnas "Siseviimistlustööd" on 20 aktiivset tööd

Seinte pahteldus ja värvimine

Asukoht: Harjumaa, Türisalu
Aega jäänud: 2p 20h
Tehtud pakkumisi: 7

Korteri seinte ja lagede värvimine, osaline pahteldamine

Asukoht: Harjumaa, Tallinn
Aega jäänud: 20h 38 min
Tehtud pakkumisi: 5

Vanemad teated:

Vaata kõiki

Sellel veebilehel kasutatakse küpsiseid. Kasutamist jätkates nõustute küpsiste kasutamisega.

Sulge
 
Minu pakkumine

Reeglid

Pakkumise kirjelduse väli on mõeldud pakkumise detailsemaks lahti kirjutamiseks. Pikema teksti mugavaks sisestamiseks klikkige kasti paremal ülaservas oleval ikoonil.
Pakkumist tehes on keelatud postitada enda kontaktandmeid (nimi, telefon, aadress jne). Me jälgime ja analüüsime pakkumisi, et vältida pettuseid ja reeglite rikkumisi.
Rikkumise puhul kasutajakonto blokeeritakse.