+ Lisa oma töö      

Otsid ehitajat "Katusetööd" valdkonnast?

Parima pakkumise ja teostaja leidmiseks lisa oma töö.

Katuse ehitus

ID 77641

1207 vaatamist

Prindi

  • check Pakkumiste tegemine
    kuni 04.12.2022
  • check Võitja valik kuni
    11.12.2022
  • 3 Töö teostamine
    ja hinnang
Hanke lõpp: P, 4. detsember, 2022
Maakond: Harjumaa
Tööde algus: E, 02. jaanuar, 2023 (Soovituslik)
Tööde lõpp: T, 31. jaanuar, 2023 (Soovituslik)
Ehitusmaterjalid: Töö tellija poolt
Soovin pakkumisi: Summa kogu projektile

Töö sisu

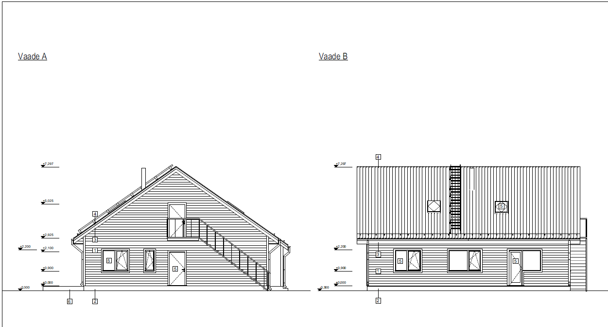
12x12 m majale vahelae talade paigaldus, sarikate paigaldus, toolvärk, vintskapp, kiletus, roovitus, kivi profiilipleki paigaldus

Pildid, video ja failid

Hanke korraldaja: eraisik ID71865

Pakkumised

Pakkumisi kokku: 10

Ettevõte Summa Käibemaks Lisatud Vestlus
Kasutaja ikoon ID70448
Pakkuja profiil Väike nool paremale
11 750€ Ei ole KMKR Ei ole KMKR 27.11.2022 Vestlus (0)

Pakkumise kirjeldus:

Meie pakkumine Teie kirjeldatud töödele.
Lugupidamisega
HN

Kasutaja ikoon ID63059
Pakkuja profiil Väike nool paremale
9 800€ Ei ole KMKR Ei ole KMKR 28.11.2022 Vestlus (0)

Pakkumise kirjeldus:

tervist,pakkumine tehtud vastavalt tellija soovile.

Kasutaja ikoon ID71773
Pakkuja profiil Väike nool paremale
9 200€ Sisaldab KM Sisaldab KM 28.11.2022 Vestlus (0)
Kasutaja ikoon ID71884
Pakkuja profiil Väike nool paremale
7 850€ KM lisandub KM lisandub 28.11.2022 Vestlus (0)
Kasutaja ikoon ID54982
Pakkuja profiil Väike nool paremale
9 856€ Sisaldab KM Sisaldab KM 02.12.2022 Vestlus (0)

Pakkumise kirjeldus:

Pakkumine sisaldab tööraha soovitud töödele.

Alustada saame Jaanuaris.

Küsimuste korral kindlasti kirjutada.

Kasutaja ikoon ID59528
Pakkuja profiil Väike nool paremale
10 000€ KM lisandub KM lisandub 03.12.2022 Vestlus (0)

Pakkumise kirjeldus:

Tere,

Pakkumine tehtud vastavalt Hankes kirjeldatud töödele
Töid teostab proffesionaalne meeskond, kōikidele meie poolt tehtud töödele garantii !
Ettevõttel olemas kindlustus, mis katab tehtud tööd!

Kui meie pakkumise vastu huvi, võtke meiega ühendust ja kirjutame oma hinnapakkumise lahti.
Meie profiili alt näete pilte ja klientide hinna ... Rohkem

Kasutaja ikoon ID52293
Pakkuja profiil Väike nool paremale
9 000€ Sisaldab KM Sisaldab KM 03.12.2022 Vestlus (0)
Kasutaja ikoon ID50594
Pakkuja profiil Väike nool paremale
12 000€ KM lisandub KM lisandub 04.12.2022 Vestlus (0)

Pakkumise kirjeldus:

Tere,

Hinnapakkumine koostatud vastavalt hanke kirjeldusele.
Võimalus tasuda ilma KM.

Lgp. Taivo

Kasutaja ikoon ID27299
Pakkuja profiil Väike nool paremale
10 450€ Ei ole KMKR Ei ole KMKR 04.12.2022 Vestlus (0)
Kasutaja ikoon ID65365
Pakkuja profiil Väike nool paremale
9 250€ Ikoon kell Ei ole KMKR Ei ole KMKR 04.12.2022 Vestlus (0)

Küsimused hanke korraldajale

Küsimus: private ID70588   21.11.2022 10:35
Tere,

Palun täpsustage piirkonda.

Lugupidamisega,

j. m.

Teavita reeglite rikkumisest

Korraldaja vastus: 21.11.2022 10:37

Harjumaa, Kose v, Ardu alevik

Teavita reeglite rikkumisest

Küsimus: private ID70588   21.11.2022 11:53
Tere,

Soojustamise teete siis ise ja seest poolt või, kuidas olete mõelnud?

Lugupidamisega,

j. m.

Teavita reeglite rikkumisest

Korraldaja vastus: 21.11.2022 11:55

Esmatähtis on katuse alla saada, soojustamine on järgmine ettapp.

Teavita reeglite rikkumisest

Küsimus: private ID71773   23.11.2022 13:23
Kuna plaanis tööga alustada?

Teavita reeglite rikkumisest

Korraldaja vastus: 23.11.2022 14:01

Töödega plaanis alustada, kui ehitajaga kokkuleppele saadud ning ehitaja esimesel võimalusel.

Teavita reeglite rikkumisest

Küsimus: private ID71773   23.11.2022 14:37
Ok. Teeme lähimal pakkumise. Alustada saame vajadusel kohe.

Teavita reeglite rikkumisest

Korraldaja vastus:
Hanke korraldaja ei ole küsimusele veel vastanud

Küsimus: private ID63059   28.11.2022 08:43
Tervist,kas katuseaknad paigaldate ise?
Need oleks vaja enne plekitust paika panna.

Teavita reeglite rikkumisest

Korraldaja vastus: 28.11.2022 10:14

Katuse akende paigaldus palun arvestada tööde/hinna sisse.

Teavita reeglite rikkumisest

Lisa küsimus

Lisa küsimus

Minu pakkumine

Reeglid

Pakkumise kirjelduse väli on mõeldud pakkumise detailsemaks lahti kirjutamiseks. Pikema teksti mugavaks sisestamiseks klikkige kasti paremal ülaservas oleval ikoonil.
Pakkumist tehes on keelatud postitada enda kontaktandmeid (nimi, telefon, aadress jne). Me jälgime ja analüüsime pakkumisi, et vältida pettuseid ja reeglite rikkumisi.
Rikkumise puhul kasutajakonto blokeeritakse.

 

Teisi töid samas valdkonnas

Valdkonnas "Katusetööd" on 9 aktiivset tööd

no-img Pilt puudub

Käidava katuse PVC 54m2

Asukoht: Harjumaa, Muraste
Aega jäänud: 4p 9h
Tehtud pakkumisi: 3

Garaaži katuse vahetamine

Asukoht: Harjumaa, Viimsi
Aega jäänud: 13p 9h
Tehtud pakkumisi: 2

Vanemad teated:

Vaata kõiki

Sellel veebilehel kasutatakse küpsiseid. Kasutamist jätkates nõustute küpsiste kasutamisega.

Sulge
 
Minu pakkumine

Reeglid

Pakkumise kirjelduse väli on mõeldud pakkumise detailsemaks lahti kirjutamiseks. Pikema teksti mugavaks sisestamiseks klikkige kasti paremal ülaservas oleval ikoonil.
Pakkumist tehes on keelatud postitada enda kontaktandmeid (nimi, telefon, aadress jne). Me jälgime ja analüüsime pakkumisi, et vältida pettuseid ja reeglite rikkumisi.
Rikkumise puhul kasutajakonto blokeeritakse.