+ Lisa oma töö      

Otsid ehitajat "Ventilatsioonitööd" valdkonnast?

Parima pakkumise ja teostaja leidmiseks lisa oma töö.

Hange on lõppenud!

Võitjaks osutus kasutaja ID 60355

eramu ventilatsioon

ID 77534

736 vaatamist

Prindi

  • check Pakkumiste tegemine
    kuni 23.11.2022
  • check Võitja valik kuni
    23.11.2022
  • 3 Töö teostamine
    ja hinnang
Hanke lõpp: K, 23. november, 2022
Maakond: Harjumaa
Tööde algus: K, 01. märts, 2023 (Soovituslik)
Tööde lõpp: R, 31. märts, 2023 (Soovituslik)
Ehitusmaterjalid: Töö tegija poolt
Soovin pakkumisi: Summa kogu projektile

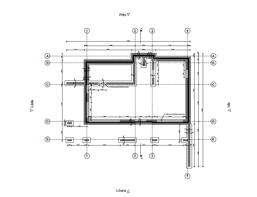
Töö sisu

ventilatsioonisüsteemi paigaldamine 2 korruselisele uuele eramule (plaanid lisatud). bauroc seinad ja paneelid, torustike avad tegemata, olemas tööstusvool.
teostamise aega on võimalik kokkuleppel nihutada.

Pildid, video ja failid

Hanke korraldaja: eraisik ID22230

Pakkumised

Pakkumisi kokku: 3

Ettevõte Summa Käibemaks Lisatud Vestlus
Kasutaja ikoon ID60355
Pakkuja profiil Väike nool paremale
6 518,1€ KM lisandub KM lisandub 15.11.2022 Vestlus (0)

Pakkumise kirjeldus:

Ventseade,+automaatika 2308,80
Kanaliosad, torud, põlved, 1026,20
Mürasummutajad 503,08
Lõppseadmed 437,48
Abimaterjal 229,10
Paigaldus 1443,59
isolatsioon 166,93
Transport 149,66
Mõõdistus 253,28

Kokku: 6 518,12
Käibemaks 20% 1 303,62
Kokku koos käibemaksuga: 7 821,74

Kasutaja ikoon ID71075
Pakkuja profiil Väike nool paremale
5 000€ KM lisandub KM lisandub 15.11.2022 Vestlus (2)

Pakkumise kirjeldus:

Torustiku ja seadmete paigaldus ning isoleerimine!

Kasutaja ikoon ID48517
Pakkuja profiil Väike nool paremale
5 700€ KM lisandub KM lisandub 15.11.2022 Vestlus (1)

Küsimused hanke korraldajale

Küsimus: private ID70460   14.11.2022 18:16
Agregaat, torud ja muud pudinad töö tegija poolt?

Teavita reeglite rikkumisest

Korraldaja vastus: 15.11.2022 10:56

jah, soovitavalt kõik vajaminev tegija poolt.

Teavita reeglite rikkumisest

Lisa küsimus

Lisa küsimus

Minu pakkumine

Reeglid

Pakkumise kirjelduse väli on mõeldud pakkumise detailsemaks lahti kirjutamiseks. Pikema teksti mugavaks sisestamiseks klikkige kasti paremal ülaservas oleval ikoonil.
Pakkumist tehes on keelatud postitada enda kontaktandmeid (nimi, telefon, aadress jne). Me jälgime ja analüüsime pakkumisi, et vältida pettuseid ja reeglite rikkumisi.
Rikkumise puhul kasutajakonto blokeeritakse.

 

Teisi töid samas valdkonnas

Valdkonnas "Ventilatsioonitööd" on 3 aktiivset tööd

Eramaja ventilatsioonitööd

Asukoht: Tartumaa, Soinaste
Aega jäänud: 6p 1h
Tehtud pakkumisi: 1

no-img Pilt puudub

Ventilatsiooni paigaldamine

Asukoht: Tartumaa, Tartu
Aega jäänud: 3p 1h
Tehtud pakkumisi: 0

Vanemad teated:

Vaata kõiki

Sellel veebilehel kasutatakse küpsiseid. Kasutamist jätkates nõustute küpsiste kasutamisega.

Sulge
 
Minu pakkumine

Reeglid

Pakkumise kirjelduse väli on mõeldud pakkumise detailsemaks lahti kirjutamiseks. Pikema teksti mugavaks sisestamiseks klikkige kasti paremal ülaservas oleval ikoonil.
Pakkumist tehes on keelatud postitada enda kontaktandmeid (nimi, telefon, aadress jne). Me jälgime ja analüüsime pakkumisi, et vältida pettuseid ja reeglite rikkumisi.
Rikkumise puhul kasutajakonto blokeeritakse.