+ Lisa oma töö      

Otsid ehitajat "Siseviimistlustööd" valdkonnast?

Parima pakkumise ja teostaja leidmiseks lisa oma töö.

Üksikelamu lõpuni ehitus

ID 77455

540 vaatamist

Prindi

  • check Pakkumiste tegemine
    kuni 10.11.2022
  • check Võitja valik kuni
    17.11.2022
  • 3 Töö teostamine
    ja hinnang
Hanke lõpp: N, 10. november, 2022
Maakond: Tartumaa
Muu asula: Nõo
Tööde algus: K, 30. november, 2022 (Soovituslik)
Tööde lõpp: T, 31. jaanuar, 2023 (Soovituslik)
Ehitusmaterjalid: Töö tegija poolt
Soovin pakkumisi: Summa kogu projektile

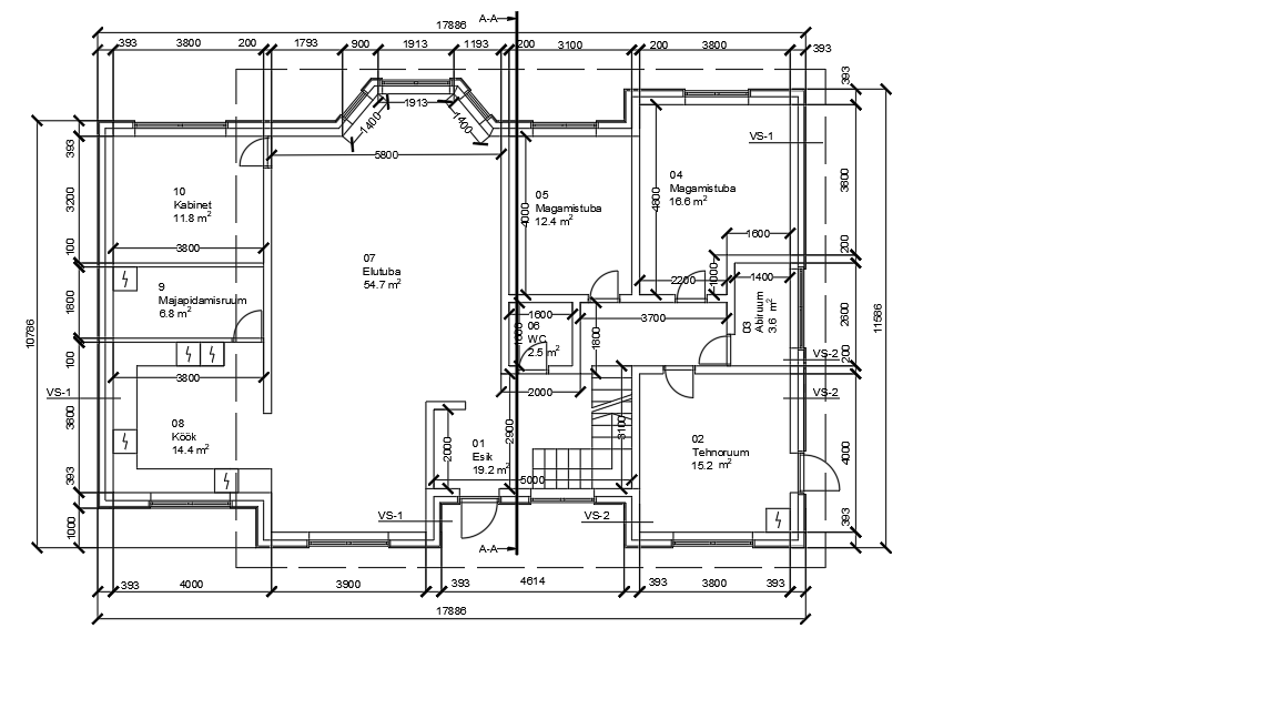
Töö sisu

Vaja lõpuni viimistleda eramu esimene korrus ning välisfasaaad.
Välisfassaadis on vaja lõpuni ehitada tuulekastid ning paigaldada sokliplaat.
Maja ümbermõõt on ~60 meetrit. Tuulekastilaudu on vaja paigaldada ~15m2.

I korrusel on vaja lõpuni viimistleda seinad, aknapõsed, põrandad ning laed.
Vaja on ehitada ~100m2 ripplage. Viimistlemist vajab kokku ~120m2 lage.
Parketti tuleb paigaldada ~115m2. Parkett ning alusmatt on juba olemas.
Plaatida on vaja ~6m2. Plaadid on olemas.
Seina pinda on kipsplaadi all ~135m2 ning kiviseina ~170m2. Kiviseina puhul sobib viimistluseks nii kipsplaat, kui ka krohvimine. Oleneb kumb odavam tuleb.
Lisaks on ripplae taha vaja paigaldada ventilatsioonitorustik, millega on juba alustatud.
Paigaldada 7 siseust.

Pildid, video ja failid

Hanke korraldaja: eraisik ID71746

Pakkumised

Pakkumisi kokku: 0

Küsimused hanke korraldajale

Küsimus: private ID70223   09.11.2022 21:53
Tere, mis sokli kõrgus on? Kas materjalidest on olemas ainult parkett ja ülejäänud materjalid tööde teostaja poolt?

Teavita reeglite rikkumisest

Korraldaja vastus: 09.11.2022 22:27

Tere,

Sokli kõrgus maapinnast on ~30cm. Varieerub 10cm ulatuses maja ümber.
Materjalidest on veel olemas tuulekasti lõpetamiseks vajalikud lauad, immutatud prussid sokliplaadi alla panemiseks.
Lisaks veel ~10 1,2x2,4m kipsplaati.

Teavita reeglite rikkumisest

Lisa küsimus

Lisa küsimus

Minu pakkumine

Reeglid

Pakkumise kirjelduse väli on mõeldud pakkumise detailsemaks lahti kirjutamiseks. Pikema teksti mugavaks sisestamiseks klikkige kasti paremal ülaservas oleval ikoonil.
Pakkumist tehes on keelatud postitada enda kontaktandmeid (nimi, telefon, aadress jne). Me jälgime ja analüüsime pakkumisi, et vältida pettuseid ja reeglite rikkumisi.
Rikkumise puhul kasutajakonto blokeeritakse.

 

Teisi töid samas valdkonnas

Valdkonnas "Siseviimistlustööd" on 20 aktiivset tööd

Seinte pahteldus ja värvimine

Asukoht: Harjumaa, Türisalu
Aega jäänud: 2p 20h
Tehtud pakkumisi: 7

Korteri seinte ja lagede värvimine, osaline pahteldamine

Asukoht: Harjumaa, Tallinn
Aega jäänud: 20h 34 min
Tehtud pakkumisi: 5

Vanemad teated:

Vaata kõiki

Sellel veebilehel kasutatakse küpsiseid. Kasutamist jätkates nõustute küpsiste kasutamisega.

Sulge
 
Minu pakkumine

Reeglid

Pakkumise kirjelduse väli on mõeldud pakkumise detailsemaks lahti kirjutamiseks. Pikema teksti mugavaks sisestamiseks klikkige kasti paremal ülaservas oleval ikoonil.
Pakkumist tehes on keelatud postitada enda kontaktandmeid (nimi, telefon, aadress jne). Me jälgime ja analüüsime pakkumisi, et vältida pettuseid ja reeglite rikkumisi.
Rikkumise puhul kasutajakonto blokeeritakse.