+ Lisa oma töö      

Otsid ehitajat "Üldehitus" valdkonnast?

Parima pakkumise ja teostaja leidmiseks lisa oma töö.

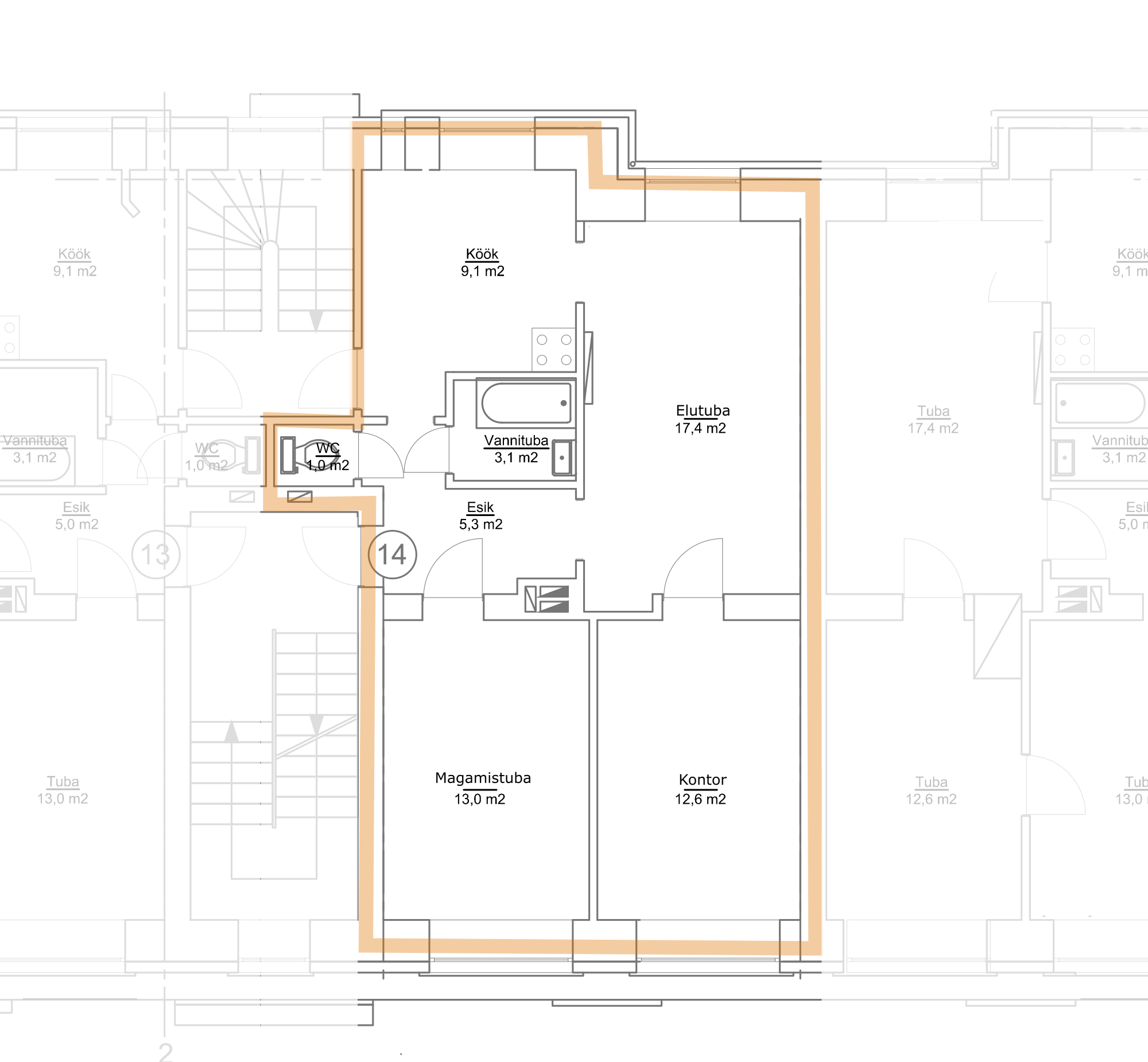
Korteri remont (48 m2)

ID 77349

1071 vaatamist

Prindi

  • check Pakkumiste tegemine
    kuni 17.11.2022
  • check Võitja valik kuni
    24.11.2022
  • 3 Töö teostamine
    ja hinnang
Hanke lõpp: N, 17. november, 2022
Maakond: Tartumaa
Linn: Tartu
Tööde algus: N, 01. detsember, 2022 (Soovituslik)
Tööde lõpp: K, 01. märts, 2023
Ehitusmaterjalid: Töö tellija poolt
Soovin pakkumisi: Summa kogu projektile

Töö sisu

Remondi- ja viimistlustööd korteri kõigis tubades peale magamistoa. Tööd on kirjeldatud tubade kaupa allpool. Lammutustööde puhul ootame ka utiliseerimist.
Palume hinnangulist projekti kogumaksumust – kuigi arusaadavalt võib hind tööde käigus ilmnevate üllatuste tõttu muutuda. Seetõttu PALUME ESITADA KA TÖÖTUNNI HINNA.


ESIK
Seinakapi lammutus. Ukseava kinniehitamine. Laminaatparketi eemaldus, uute põrandaplaatide paigaldus (4 m2). Vana tapeedi eemaldus, asemele uus tapeet + värv (seinapinda 16 m2). Lae värvimine (4 m2). Põrandaliistud jm lõppviimistlus.

WC JA VANNITUBA
Vannitoas otsaseina kipskarkassi lammutus ja utiliseerimine (3 m2). Vannitoa ukse demonteerimine ja ukseava lammutamine laeni välja. Vanade põranda- ja seinaplaatide (4 + 17 m2) eemaldamine. Dušinurga ehitus (lihtne klaasist vaheseina ja põrandakaldega). Põranda plaatimine (5 m2). Seinte plaatimine ja värvimine (seinapinda ümberehituse järel kokku 29 m2), lae värvimine (5 m2). Santehnika paigaldus. Uue ukse paigaldamine teise asukohta. Muu lõppviimistlus.

KÖÖK
Köögimööbli ja tehnika demonteerimine. Köögi ja elutoa vahelise kipsiga kinni ehitatud ukseava lahti lõhkumine, ava veidi suuremaks lammutamine. Kipsplaadiga allatoodud vahelae eemaldamine ja algse kumerate nurkadega lae taastamine, viimistlemine (9 m2). Laminaatparketi eemaldus, uue parketi paigaldus (9 m2). Vana tapeedi eemaldus, seinte viimistlus, värvimine, plaatimine (seinapinda kokku 25 m2). Uue köögimööbli ja tehnika paigaldus. Põrandaliistud jm lõppviimistlus.

ELUTUBA
Kipsplaadiga allatoodud vahelae eemaldamine ja algse kumerate nurkadega lae taastamine (17 m2). Laminaatparketi eemaldus, uue parketi paigaldus (17 m2). Vana tapeedi eemaldus, asemele uus tapeet + värv (36 m2). Põrandaliistud jm lõppviimistlus.

KONTOR
Laminaatparketi eemaldus, uue parketi paigaldus (12 m2). Vana tapeedi eemaldus, asemele uus tapeet + värv (33 m2). Lae värvimine (12 m2). Põrandaliistud jm lõppviimistlus.

MUU
Uste ja uksepiitade puhastamine vanast värvist (4 tk).


TEADMISEKS
ELEKTRITÖÖD: Remonditööde alguses on vaja korteris välja vahetada ka elektrijuhtmestik (sh koostada projekt). Elektritöid palun mitte käesolevasse hinnapakkumisse juurde arvestada - nende teemal suhtleme hiljem eraldi.

Ehitustööde ajal korteris ei elata ning ruumid on vabastatud mööblist jm sisustusest.

Korter asub kortermaja neljandal korrusel ja seda saab tulla kohapeale vaatama.

Pildid, video ja failid

Hanke korraldaja: eraisik ID49068

Pakkumised

Pakkumisi kokku: 8

Ettevõte Summa Käibemaks Lisatud Vestlus
Kasutaja ikoon ID68724
Pakkuja profiil Väike nool paremale
600€ Ei ole KMKR Ei ole KMKR 04.11.2022 Vestlus (0)
Kasutaja ikoon ID62715
Pakkuja profiil Väike nool paremale
600€ Ei ole KMKR Ei ole KMKR 10.11.2022 Vestlus (4)

Pakkumise kirjeldus:

Tunnihind 20€.

Kasutaja ikoon ID67735
Pakkuja profiil Väike nool paremale
14 000€ KM lisandub KM lisandub 14.11.2022 Vestlus (0)

Pakkumise kirjeldus:

Pakkumine on tehtud kogu hanke sisule. Hind ei sisalda materjale ja nende transporti. Töö võimalik algus detsember 2022.

Kasutaja ikoon ID65028
Pakkuja profiil Väike nool paremale
10 800€ KM lisandub KM lisandub 14.11.2022 Vestlus (0)

Pakkumise kirjeldus:

20 €/h

Kasutaja ikoon ID70448
Pakkuja profiil Väike nool paremale
6 500€ Ei ole KMKR Ei ole KMKR 15.11.2022 Vestlus (0)

Pakkumise kirjeldus:

Meie pakkumine Teie kirjeldatud töödele.
Lugupidamisega
HN

Kasutaja ikoon ID43501
Pakkuja profiil Väike nool paremale
6 500€ KM lisandub KM lisandub 16.11.2022 Vestlus (0)

Pakkumise kirjeldus:

Pakkumine palutud töödele ning tunnihind 18 eur/h.

Kasutaja ikoon ID69621
Pakkuja profiil Väike nool paremale
6 000€ Sisaldab KM Sisaldab KM 17.11.2022 Vestlus (0)

Pakkumise kirjeldus:

Pakkumine soovitud töödele ja tunnihind on 16e/h

Kasutaja ikoon ID49185
Pakkuja profiil Väike nool paremale
8 000€ Sisaldab KM Sisaldab KM 17.11.2022 Vestlus (0)

Pakkumise kirjeldus:

Tere. Tunnihind 16.- mehele. Leping, garantii. Lgp. Viljar

Küsimused hanke korraldajale

Küsimus: private ID19121   16.11.2022 11:21
Siin on õige ajatööd kasutada. Siis on ka lihtsam muudatusi ja muid ettetulevaid probleeme lahendada.
Materjalide hange ja kohaletoomine jooksvate kokkulepete alusel. (ehitajale on kindlasti mõni asi soodsam).
Arvan, et läbirääkimise käigus saaks ka hinnas kokkuleppele.

Teavita reeglite rikkumisest

Korraldaja vastus:
Hanke korraldaja ei ole küsimusele veel vastanud

Küsimus: private ID53490   16.11.2022 12:48
Tere!

Täpsema pakkumise tegemiseks oleks vaja, objekt üle vaadata. Tunni hind 17.-

Teavita reeglite rikkumisest

Korraldaja vastus:
Hanke korraldaja ei ole küsimusele veel vastanud

Lisa küsimus

Lisa küsimus

Minu pakkumine

Reeglid

Pakkumise kirjelduse väli on mõeldud pakkumise detailsemaks lahti kirjutamiseks. Pikema teksti mugavaks sisestamiseks klikkige kasti paremal ülaservas oleval ikoonil.
Pakkumist tehes on keelatud postitada enda kontaktandmeid (nimi, telefon, aadress jne). Me jälgime ja analüüsime pakkumisi, et vältida pettuseid ja reeglite rikkumisi.
Rikkumise puhul kasutajakonto blokeeritakse.

 

Teisi töid samas valdkonnas

Valdkonnas "Üldehitus" on 27 aktiivset tööd

Terassi õlitamine, 13,7 ruutu

Asukoht: Harjumaa, Saue
Aega jäänud: 5p 16h
Tehtud pakkumisi: 4

Eramaja ehitus

Asukoht: Harjumaa, Suurupi
Aega jäänud: 4p 16h
Tehtud pakkumisi: 4

Vanemad teated:

Vaata kõiki

Sellel veebilehel kasutatakse küpsiseid. Kasutamist jätkates nõustute küpsiste kasutamisega.

Sulge
 
Minu pakkumine

Reeglid

Pakkumise kirjelduse väli on mõeldud pakkumise detailsemaks lahti kirjutamiseks. Pikema teksti mugavaks sisestamiseks klikkige kasti paremal ülaservas oleval ikoonil.
Pakkumist tehes on keelatud postitada enda kontaktandmeid (nimi, telefon, aadress jne). Me jälgime ja analüüsime pakkumisi, et vältida pettuseid ja reeglite rikkumisi.
Rikkumise puhul kasutajakonto blokeeritakse.