+ Lisa oma töö      

Otsid ehitajat "Üldehitus" valdkonnast?

Parima pakkumise ja teostaja leidmiseks lisa oma töö.

Maja ehitus

ID 77004

754 vaatamist

Prindi

  • check Pakkumiste tegemine
    kuni 18.10.2022
  • check Võitja valik kuni
    25.10.2022
  • 3 Töö teostamine
    ja hinnang
Hanke lõpp: T, 18. oktoober, 2022
Maakond: Tartumaa
Muu asula: Ülenurme
Tööde algus: K, 01. märts, 2023 (Soovituslik)
Tööde lõpp: R, 01. detsember, 2023 (Soovituslik)
Ehitusmaterjalid: Töö tegija poolt
Soovin pakkumisi: Summa kogu projektile

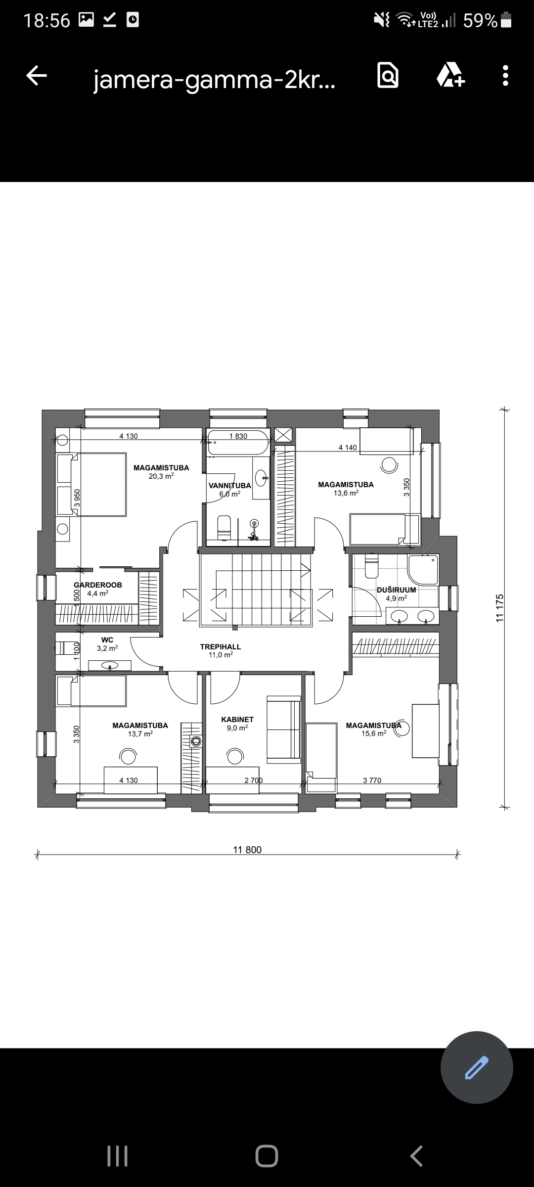
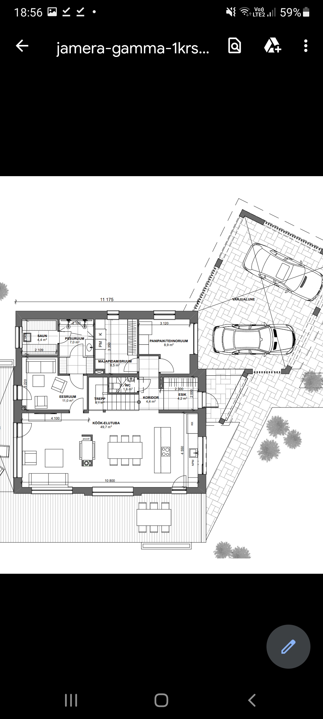
Töö sisu

Tere!

Otsin ehitus firmat. Kes teostaks müüride ladumise. Fermide ning katuse paigalduse. Maja soojustuse ning hiljem ka kogu hoone viinistluse.

Ühesõnaga kõik ehitus tööd va eriosad.

Küte, vent, vesi/kanal, jahutus, elekter ning vundamendi tegija on olemas.

Projekti mille järgi hinnapakkumist teha lisan failina.

Pildid, video ja failid

Hanke korraldaja: eraisik ID65748

Pakkumised

Pakkumisi kokku: 0

Küsimused hanke korraldajale

Küsimus: private ID33769   16.10.2022 09:13
Paluks seletuskirja ka.

Teavita reeglite rikkumisest

Korraldaja vastus: 16.10.2022 10:03

Täpsed projektid ning seletuskirjad valmivad järgmine nädal.

Teavita reeglite rikkumisest

Küsimus: private ID33769   16.10.2022 09:31
Kui juba siis lõige ja vaated ka.

Teavita reeglite rikkumisest

Korraldaja vastus: 16.10.2022 10:03

Lisasin lõiked ka. Täpsed projektid ning seletuskirjad valmivad järgmine nädal.

Teavita reeglite rikkumisest

Küsimus: private ID33769   16.10.2022 10:28
Tegu siis jämera paketti majaga? Bauroc 500-l?

Teavita reeglite rikkumisest

Korraldaja vastus: 16.10.2022 10:29

Tere!

Jah jämera maja. Ostan neil projektid.

Teavita reeglite rikkumisest

Küsimus: private ID33769   16.10.2022 13:00
Selge. Teeme praegu jämera projekti teisel pool linna mütal, et tuttav teema. Ootame siis ülejäänud projekti osad ka ära.

Teavita reeglite rikkumisest

Korraldaja vastus: 16.10.2022 13:18

Mis täna umbes keskmine m2 hind on ehitamisel? Kui eriosad välja jätta?

Teavita reeglite rikkumisest

Küsimus: private ID33769   16.10.2022 13:56
Eks oleneb konkreetsest projektist, aga suurusjärku 1300-1400 eur/m2

Teavita reeglite rikkumisest

Korraldaja vastus:
Hanke korraldaja ei ole küsimusele veel vastanud

Küsimus: private ID33769   16.10.2022 13:58
Täislahendus koos eriosadega , aiad, platsid jne 1700-1800 kanti.

Teavita reeglite rikkumisest

Korraldaja vastus: 18.10.2022 09:11

Aga ainult konstruktiivne ning viimistlus osa?

Teavita reeglite rikkumisest

Küsimus: private ID33769   18.10.2022 13:25
Selleks vaja ülejäänud projekti, siis Saab midagi välja mõelda.

Teavita reeglite rikkumisest

Korraldaja vastus:
Hanke korraldaja ei ole küsimusele veel vastanud

Lisa küsimus

Lisa küsimus

Minu pakkumine

Reeglid

Pakkumise kirjelduse väli on mõeldud pakkumise detailsemaks lahti kirjutamiseks. Pikema teksti mugavaks sisestamiseks klikkige kasti paremal ülaservas oleval ikoonil.
Pakkumist tehes on keelatud postitada enda kontaktandmeid (nimi, telefon, aadress jne). Me jälgime ja analüüsime pakkumisi, et vältida pettuseid ja reeglite rikkumisi.
Rikkumise puhul kasutajakonto blokeeritakse.

 

Teisi töid samas valdkonnas

Valdkonnas "Üldehitus" on 31 aktiivset tööd

Maja värvimine

Asukoht: Harjumaa, Saue
Aega jäänud: 2p
Tehtud pakkumisi: 6

Vanemad teated:

Vaata kõiki

Sellel veebilehel kasutatakse küpsiseid. Kasutamist jätkates nõustute küpsiste kasutamisega.

Sulge
 
Minu pakkumine

Reeglid

Pakkumise kirjelduse väli on mõeldud pakkumise detailsemaks lahti kirjutamiseks. Pikema teksti mugavaks sisestamiseks klikkige kasti paremal ülaservas oleval ikoonil.
Pakkumist tehes on keelatud postitada enda kontaktandmeid (nimi, telefon, aadress jne). Me jälgime ja analüüsime pakkumisi, et vältida pettuseid ja reeglite rikkumisi.
Rikkumise puhul kasutajakonto blokeeritakse.