+ Lisa oma töö      

Otsid ehitajat "Vundamenditööd" valdkonnast?

Parima pakkumise ja teostaja leidmiseks lisa oma töö.

Katusealuse vundamendinrajamine

ID 76946

527 vaatamist

Prindi

  • check Pakkumiste tegemine
    kuni 26.10.2022
  • check Võitja valik kuni
    02.11.2022
  • 3 Töö teostamine
    ja hinnang
Hanke lõpp: K, 26. oktoober, 2022
Maakond: Ida-Virumaa
Linn: Jõhvi
Tööde algus: E, 24. oktoober, 2022 (Soovituslik)
Tööde lõpp: K, 30. november, 2022 (Soovituslik)
Ehitusmaterjalid: Töö tegija poolt
Soovin pakkumisi: Summa kogu projektile

Töö sisu

Tere.

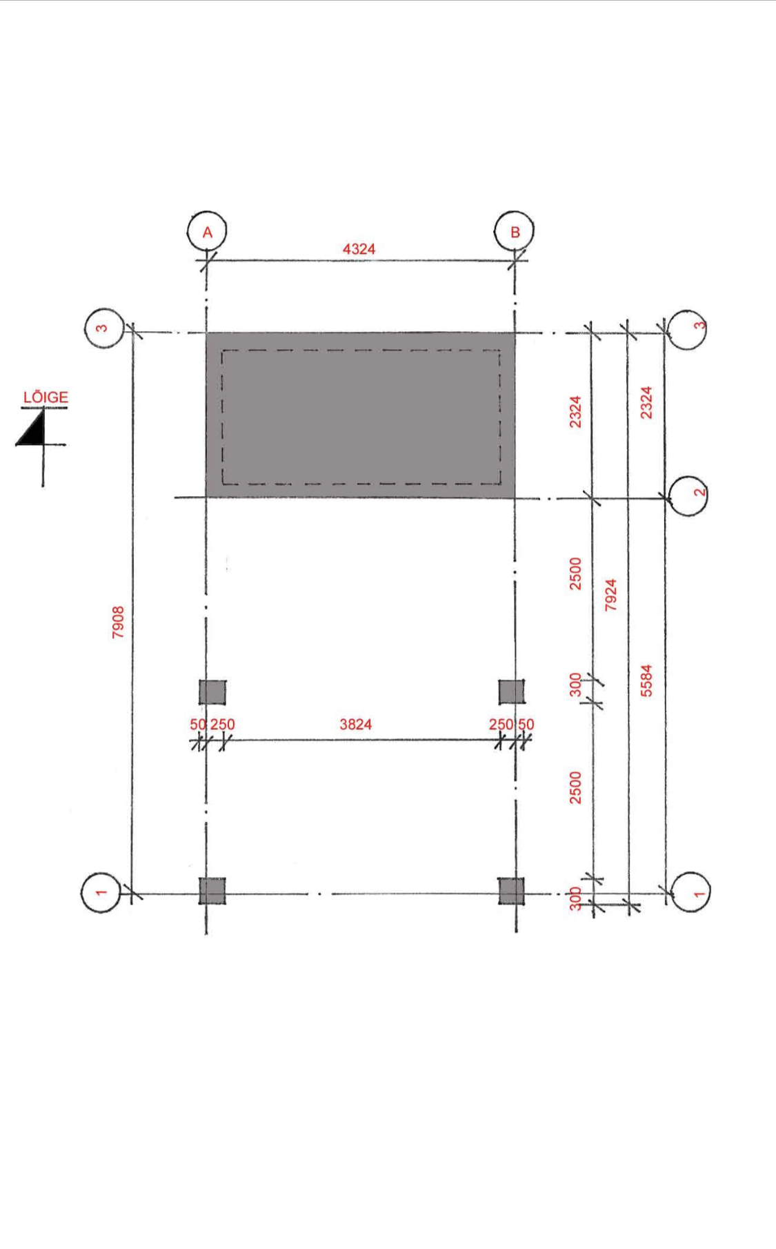
Sooviks leida ehitajat katusealuse vundamendi rajamiseks.

Projekteeritavad abihoone alusmüürid rajada monoliitsest raudbetoonist tihendatud killustikalusel (20cm) plaatvundamendina. Ümber vundamendi teostada tagasitäide. Projekteeritava varikatuse alusmüürid 30x30x120cm r/b postvundamentidel. Põhikorruse põrand valada 8cm betoonplaadina 200mm tihendatud killustikalusele. Põranda alla asetada kile pinnase niiskuse isoleerimiseks.
Seoses alusmüüride rajamisega ülalpool külmumispiiri (-1,2m), on vajalik vundamentide täiendav soojustamine külmakergete vältimiseks. See teostada 10cm vahtpolüsteroolist plaatidega 1m ulatuses ümber hoone vundamendi välisperimeetrit.

Pildid, video ja failid

Hanke korraldaja: eraisik ID57838

Pakkumised

Pakkumisi kokku: 2

Ettevõte Summa Käibemaks Lisatud Vestlus
Kasutaja ikoon ID71538
Pakkuja profiil Väike nool paremale
5 800€ KM lisandub KM lisandub 18.10.2022 Vestlus (3)
Kasutaja ikoon ID66566
Pakkuja profiil Väike nool paremale
5 290€ Sisaldab KM Sisaldab KM 26.10.2022 Vestlus (2)

Küsimused hanke korraldajale

Hanke korraldajale ei ole veel küsimusi esitatud.

Lisa küsimus

Lisa küsimus

Minu pakkumine

Reeglid

Pakkumise kirjelduse väli on mõeldud pakkumise detailsemaks lahti kirjutamiseks. Pikema teksti mugavaks sisestamiseks klikkige kasti paremal ülaservas oleval ikoonil.
Pakkumist tehes on keelatud postitada enda kontaktandmeid (nimi, telefon, aadress jne). Me jälgime ja analüüsime pakkumisi, et vältida pettuseid ja reeglite rikkumisi.
Rikkumise puhul kasutajakonto blokeeritakse.

 

Vanemad teated:

Vaata kõiki

Sellel veebilehel kasutatakse küpsiseid. Kasutamist jätkates nõustute küpsiste kasutamisega.

Sulge
 
Minu pakkumine

Reeglid

Pakkumise kirjelduse väli on mõeldud pakkumise detailsemaks lahti kirjutamiseks. Pikema teksti mugavaks sisestamiseks klikkige kasti paremal ülaservas oleval ikoonil.
Pakkumist tehes on keelatud postitada enda kontaktandmeid (nimi, telefon, aadress jne). Me jälgime ja analüüsime pakkumisi, et vältida pettuseid ja reeglite rikkumisi.
Rikkumise puhul kasutajakonto blokeeritakse.