+ Lisa oma töö      

Otsid ehitajat "Üldehitus" valdkonnast?

Parima pakkumise ja teostaja leidmiseks lisa oma töö.

Vundamenditööd

ID 76790

369 vaatamist

Prindi

  • check Pakkumiste tegemine
    kuni 08.10.2022
  • check Võitja valik kuni
    15.10.2022
  • 3 Töö teostamine
    ja hinnang
Hanke lõpp: L, 8. oktoober, 2022
Maakond: Harjumaa
Muu asula: Kiili
Tööde algus: E, 10. oktoober, 2022 (Soovituslik)
Tööde lõpp: E, 21. november, 2022 (Soovituslik)
Ehitusmaterjalid: Töö tellija poolt
Soovin pakkumisi: Tüki- või ühikuhinda

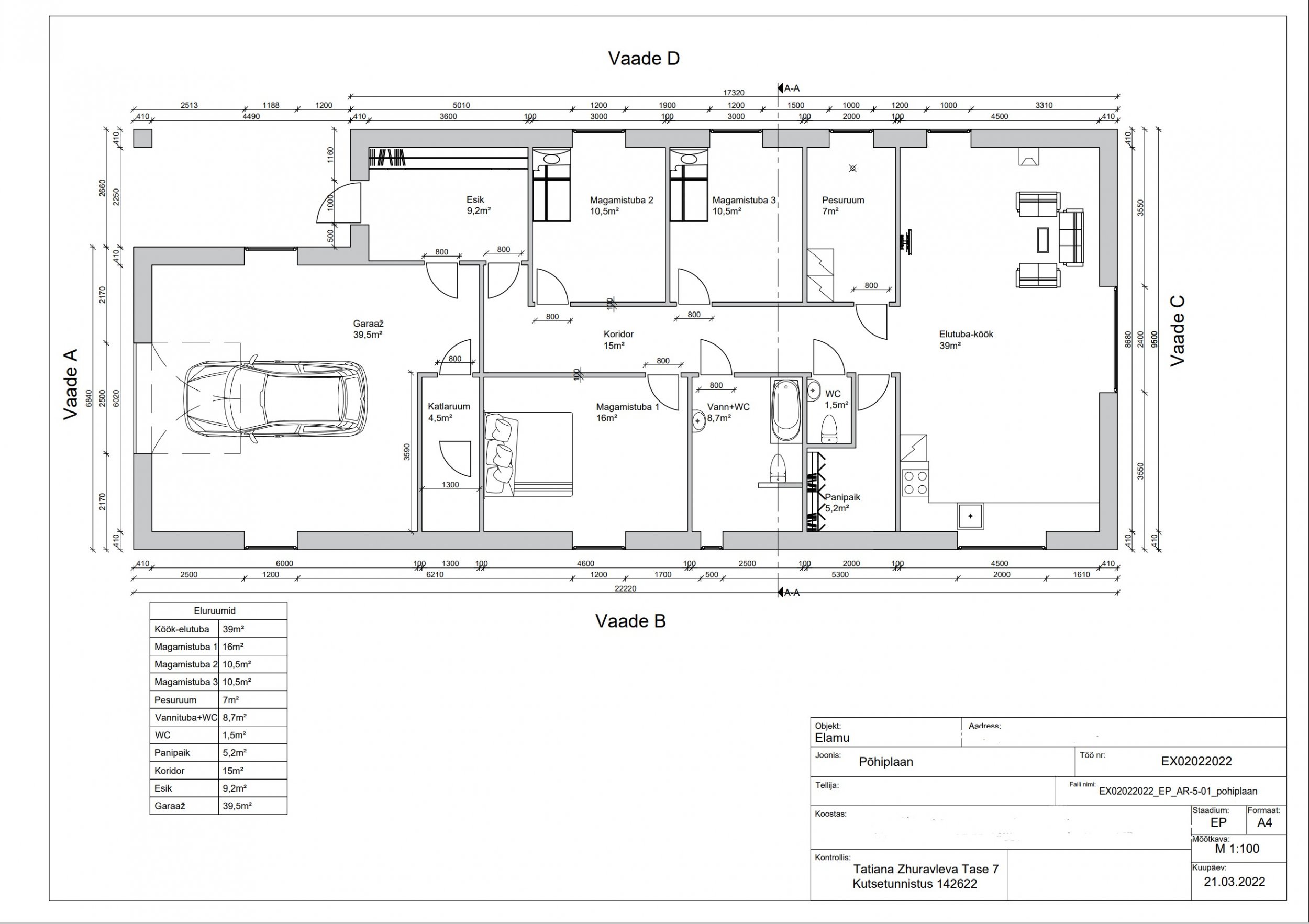
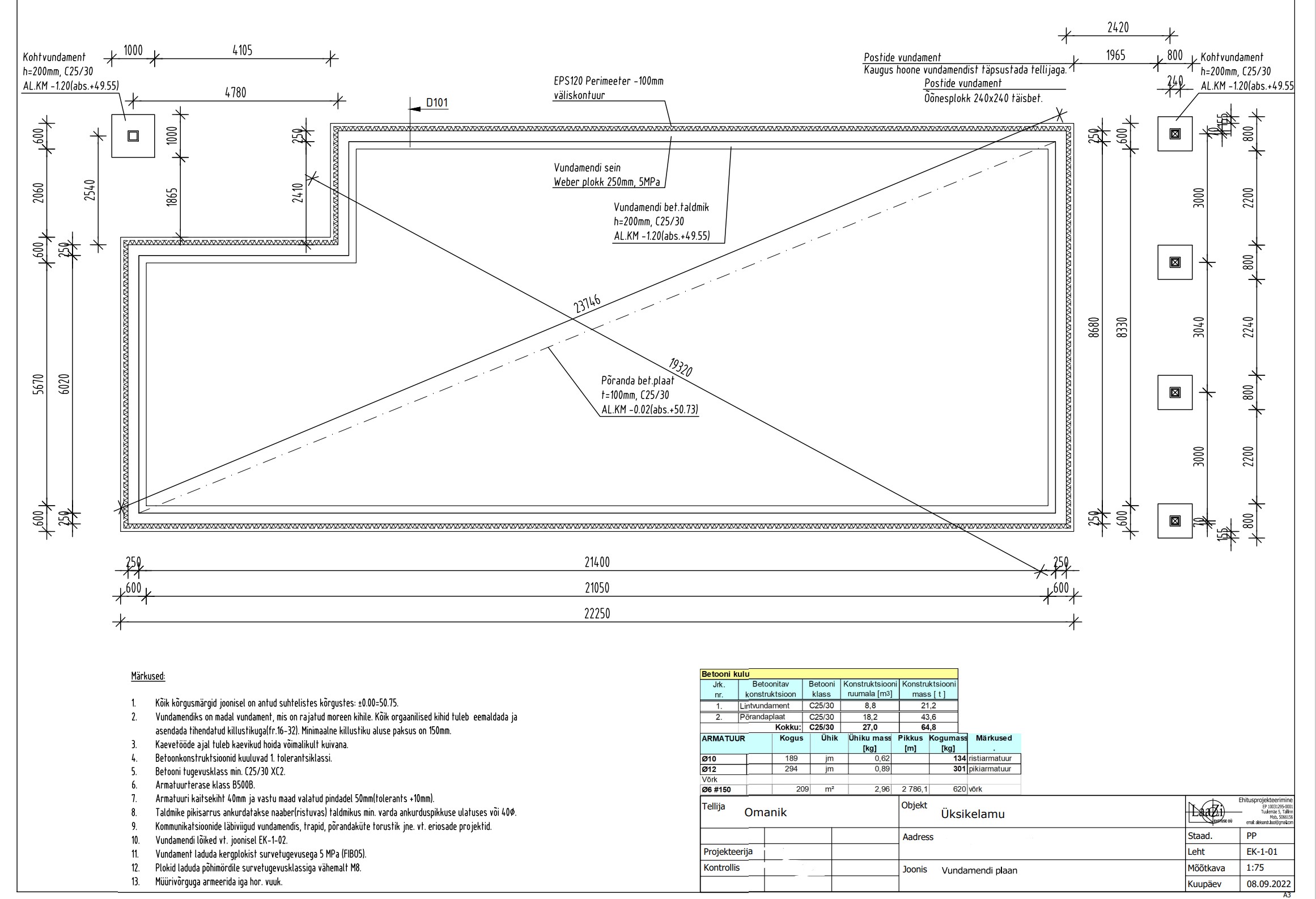
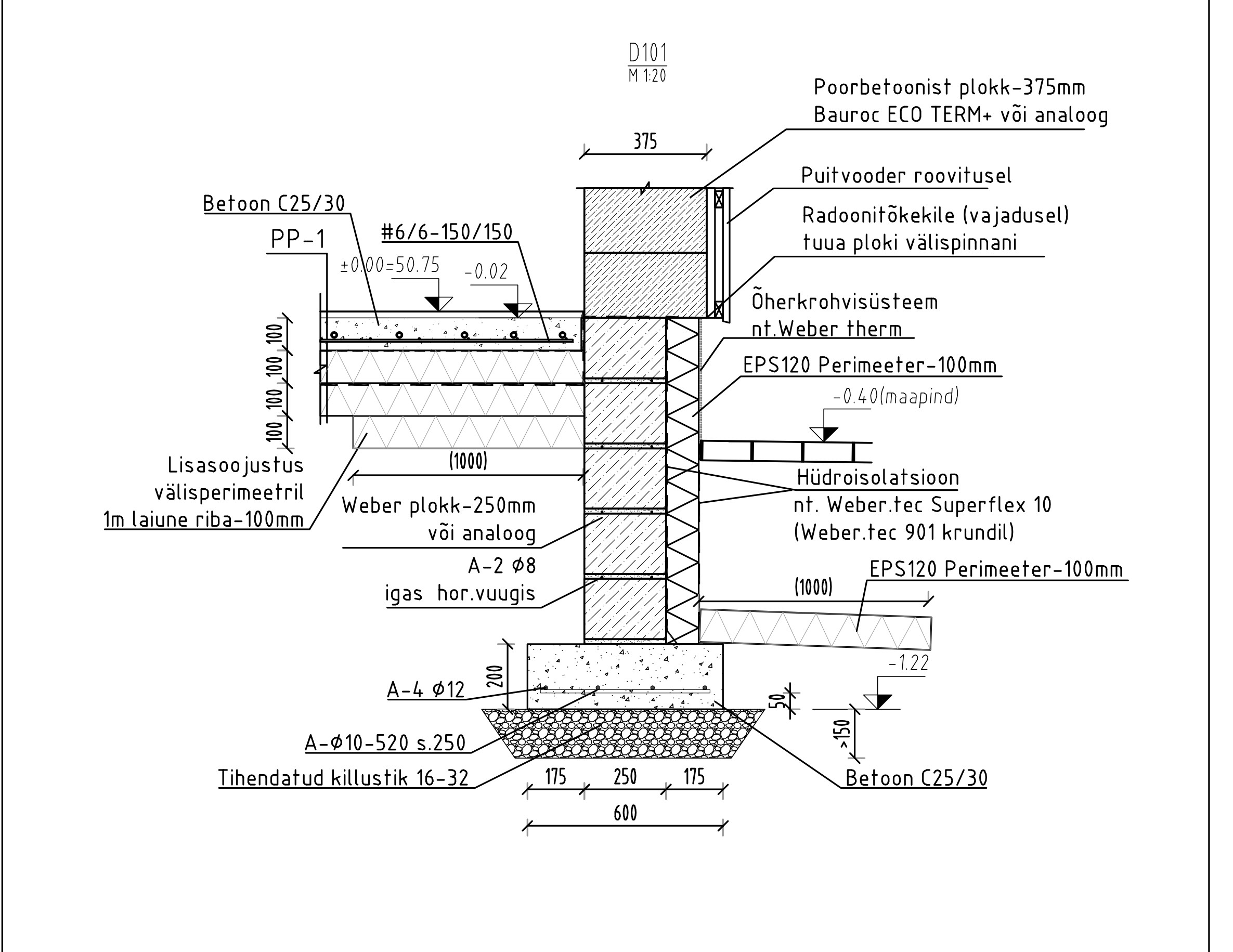
Töö sisu

On vaja teostada järgmised vundamenditööd.

1. Täita liivaga lintvundamendi ning korralikut tihendada vibraplaadiga. ( tuleb kasutada upitaja teenust, sees vundamendile pääseb hetkel ainult eespoolt.
2. Paigaldada EPS põrandaplaadid , kokku ca378m2
3. Paigaldada vee- ja kanalisatsiooni torud +põrandakütte torud ( plaan lisatud)
3. Panna võrkarmatuuri ca 209m2 ja
4. Valada betooni plaat ca 18m3

Minupoolt on siis kogu material .
Teiepoolt tööristad ja tehnika organiseerimine (rendi võin kinni maksma)

Võite pakkuda etappide kaupa ka.

Asub Kiilis.

Pildid, video ja failid

Hanke korraldaja: eraisik ID36875

Pakkumised

Pakkumisi kokku: 3

Ettevõte Summa Käibemaks Lisatud Vestlus
Kasutaja ikoon ID65365
Pakkuja profiil Väike nool paremale
14 158€ Ei ole KMKR Ei ole KMKR 06.10.2022 Vestlus (0)
Kasutaja ikoon ID50594
Pakkuja profiil Väike nool paremale
20 000€ KM lisandub KM lisandub 07.10.2022 Vestlus (0)

Pakkumise kirjeldus:

Tere,

Hinnapakkumine koostatud vastavalt hanke kirjeldusele.

Lgp. Taivo

Kasutaja ikoon ID71052
Pakkuja profiil Väike nool paremale
10 000€ Ei ole KMKR Ei ole KMKR 08.10.2022 Vestlus (0)

Pakkumise kirjeldus:

Pakkumine vastavalt hanke korraldaja kirjeldustele.
Kogu materjal, vajaminev rasketehnika, materjali transport ja ehitusprahi utilisatsioon hanke korraldaja poolt.
Meie poolt ainult tööd.

Meie kontaktid leiate hange.ee.


Vaid parimat soovides.

Küsimused hanke korraldajale

Hanke korraldajale ei ole veel küsimusi esitatud.

Lisa küsimus

Lisa küsimus

Minu pakkumine

Reeglid

Pakkumise kirjelduse väli on mõeldud pakkumise detailsemaks lahti kirjutamiseks. Pikema teksti mugavaks sisestamiseks klikkige kasti paremal ülaservas oleval ikoonil.
Pakkumist tehes on keelatud postitada enda kontaktandmeid (nimi, telefon, aadress jne). Me jälgime ja analüüsime pakkumisi, et vältida pettuseid ja reeglite rikkumisi.
Rikkumise puhul kasutajakonto blokeeritakse.

 

Teisi töid samas valdkonnas

Valdkonnas "Üldehitus" on 30 aktiivset tööd

Maja värvimine

Asukoht: Harjumaa, Saue
Aega jäänud: 2p 6h
Tehtud pakkumisi: 5

Terassi õlitamine, 13,7 ruutu

Asukoht: Harjumaa, Saue
Aega jäänud: 5p 6h
Tehtud pakkumisi: 5

Vanemad teated:

Vaata kõiki

Sellel veebilehel kasutatakse küpsiseid. Kasutamist jätkates nõustute küpsiste kasutamisega.

Sulge
 
Minu pakkumine

Reeglid

Pakkumise kirjelduse väli on mõeldud pakkumise detailsemaks lahti kirjutamiseks. Pikema teksti mugavaks sisestamiseks klikkige kasti paremal ülaservas oleval ikoonil.
Pakkumist tehes on keelatud postitada enda kontaktandmeid (nimi, telefon, aadress jne). Me jälgime ja analüüsime pakkumisi, et vältida pettuseid ja reeglite rikkumisi.
Rikkumise puhul kasutajakonto blokeeritakse.