+ Lisa oma töö      

Otsid ehitajat "Fassaaditööd" valdkonnast?

Parima pakkumise ja teostaja leidmiseks lisa oma töö.

Hange on lõppenud!

Võitjaks osutus kasutaja ID 50979

Korraldaja hinnang tehtud tööle

4.0
30.01.2023
Töökiirus: 12345
Kvaliteet: 12345
Hind: 12345

Töö sai tehtud! - Toivo K.

Fassaadi remont

ID 76598

1030 vaatamist

Prindi

  • check Pakkumiste tegemine
    kuni 12.10.2022
  • check Võitja valik kuni
    19.10.2022
  • 3 Töö teostamine
    ja hinnang
Hanke lõpp: K, 12. oktoober, 2022
Maakond: Harjumaa
Linn: Tallinn
Tööde algus: R, 30. september, 2022 (Soovituslik)
Tööde lõpp: R, 07. oktoober, 2022 (Soovituslik)
Ehitusmaterjalid: Töö tegija poolt
Soovin pakkumisi: Summa kogu projektile

Töö sisu

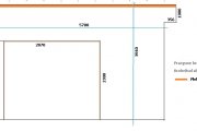
Fasaadi (14 m2) lahtise krohvi eemaldamine (võimalik, et kogu krohvi), krohvimine võrkarmatuurile (nagu kõrvalhoonel näha) ja viimistlemine/värvimine. Eemaldatud krohvi utiliseerimine - kuni 0,3 m3. Parapeti ja ukseservaplaekkid tuleb korralikult eemaldada, sirgestada ja tagasi panna. Silmas pidada, et suurt ukseava ei saa sulgeda, kuna selle kaudu toimib aegajalt garaazi sisse ja väljasõit..

Pildid, video ja failid

Hanke korraldaja: ettevõte ID4349

Pakkumised

Pakkumisi kokku: 4

Ettevõte Summa Käibemaks Lisatud Vestlus
Kasutaja ikoon ID71154
Pakkuja profiil Väike nool paremale
3 500€ Ei ole KMKR Ei ole KMKR 29.09.2022 Vestlus (0)

Pakkumise kirjeldus:

Alustada saame kohe .
20a+ kogemust.

Kasutaja ikoon ID65125
Pakkuja profiil Väike nool paremale
3 200€ KM lisandub KM lisandub 02.10.2022 Vestlus (0)

Pakkumise kirjeldus:

Sisaldab tööd materjali ja tellingut
Terv keijo

Kasutaja ikoon ID71052
Pakkuja profiil Väike nool paremale
2 500€ Sisaldab KM Sisaldab KM 12.10.2022 Vestlus (0)

Pakkumise kirjeldus:

Pakkumine vastavalt hanke sisule.
Meie utiliseerime enda lammutusprahi.
Tööde teostus oktoober-november keskpaik 2022a.
Meie kontaktid leiate hange.ee

Vaid parimat soovides.

Kasutaja ikoon ID50979
Pakkuja profiil Väike nool paremale
3 000€ Ei ole KMKR Ei ole KMKR 12.10.2022 Vestlus (4)

Pakkumise kirjeldus:

Tere.Pakkumine Teie soovide ja kirjelduse järgi.Ettemaksu ei soovi,km.ei lisandu.Töö saab teostatud selle kuu jooksul,kui ilmad lubavad.Lahtise krohvi eemaldus ja utiliseerimine,kruntimine,armeerimine võrguga,krunt,dek.krohv 1,5mm.teraga Ceresit CT174,vajadusel parapetipleki demontaaz-montaaz.Parimat Margus

Küsimused hanke korraldajale

Küsimus: private ID65125   28.09.2022 22:30
Tere,kas soovite veel see aasta fassaadi teostada?

Teavita reeglite rikkumisest

Korraldaja vastus: 02.10.2022 22:43

Kui ilmad lubavad, siis küll.

Teavita reeglite rikkumisest

Lisa küsimus

Lisa küsimus

Minu pakkumine

Reeglid

Pakkumise kirjelduse väli on mõeldud pakkumise detailsemaks lahti kirjutamiseks. Pikema teksti mugavaks sisestamiseks klikkige kasti paremal ülaservas oleval ikoonil.
Pakkumist tehes on keelatud postitada enda kontaktandmeid (nimi, telefon, aadress jne). Me jälgime ja analüüsime pakkumisi, et vältida pettuseid ja reeglite rikkumisi.
Rikkumise puhul kasutajakonto blokeeritakse.

 

Teisi töid samas valdkonnas

Valdkonnas "Fassaaditööd" on 12 aktiivset tööd

Akende ja viilude parandus ja värvimine

Asukoht: Valgamaa, Valga
Aega jäänud: 22h 21 min
Tehtud pakkumisi: 3

Eramaja vintskapide laudise paigaldus

Asukoht: Pärnumaa, Pärnu-Jaagupi
Aega jäänud: 9p 22h
Tehtud pakkumisi: 2

Vanemad teated:

Vaata kõiki

Sellel veebilehel kasutatakse küpsiseid. Kasutamist jätkates nõustute küpsiste kasutamisega.

Sulge
 
Minu pakkumine

Reeglid

Pakkumise kirjelduse väli on mõeldud pakkumise detailsemaks lahti kirjutamiseks. Pikema teksti mugavaks sisestamiseks klikkige kasti paremal ülaservas oleval ikoonil.
Pakkumist tehes on keelatud postitada enda kontaktandmeid (nimi, telefon, aadress jne). Me jälgime ja analüüsime pakkumisi, et vältida pettuseid ja reeglite rikkumisi.
Rikkumise puhul kasutajakonto blokeeritakse.