+ Lisa oma töö      

Otsid ehitajat "Siseviimistlustööd" valdkonnast?

Parima pakkumise ja teostaja leidmiseks lisa oma töö.

Rakveres 3-toalise 51m2 korteri kapremont

ID 76476

1038 vaatamist

Prindi

  • check Pakkumiste tegemine
    kuni 21.11.2022
  • check Võitja valik kuni
    28.11.2022
  • 3 Töö teostamine
    ja hinnang
Hanke lõpp: E, 21. november, 2022
Maakond: Lääne-Virumaa
Linn: Rakvere
Tööde algus: T, 01. november, 2022 (Soovituslik)
Tööde lõpp: L, 31. detsember, 2022 (Soovituslik)
Ehitusmaterjalid: Töö tellija poolt
Soovin pakkumisi: Summa kogu projektile

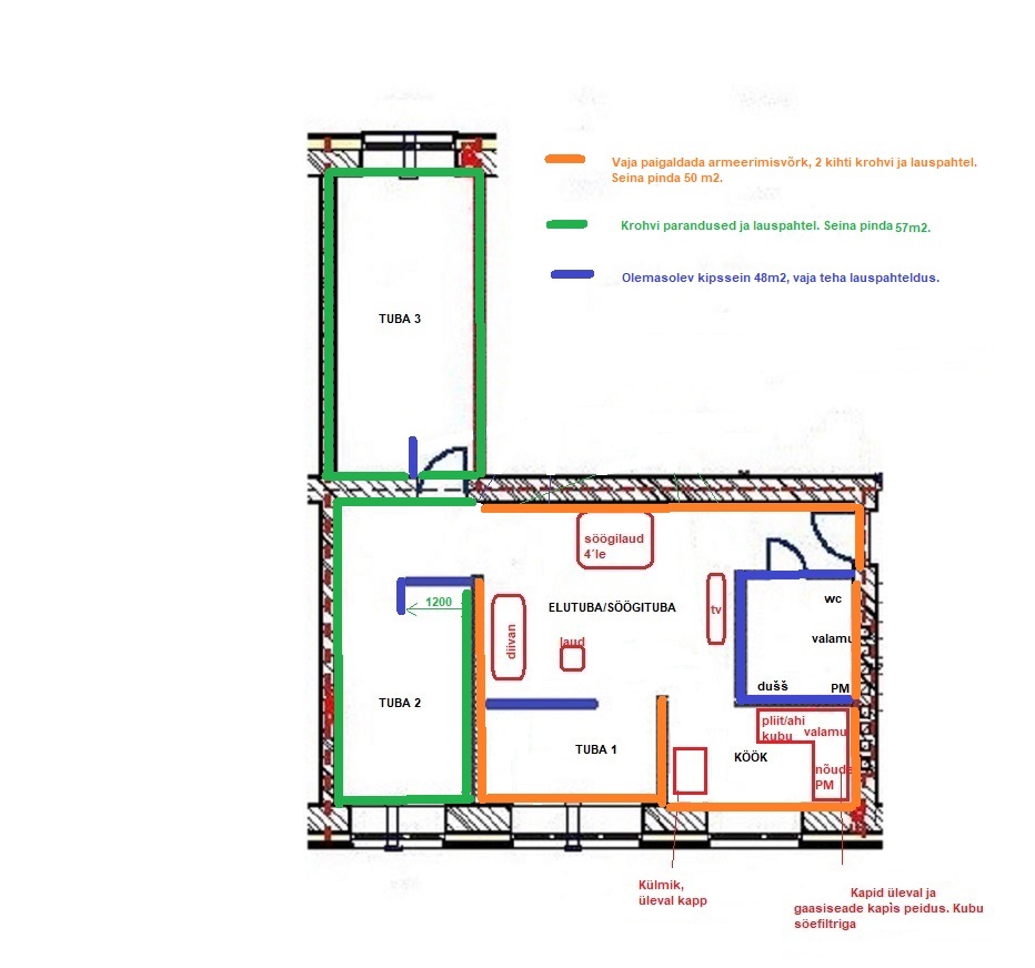
Töö sisu

1. Seinte krohvimine, lauspahteldus ja värvimine (krunt + 2 kihti värvi).
*Armeerimisvõrk, 2 kohti krohvi, lauspahtel ja värvimine (seina pinda 50m2).
*Krohvi parandused, lauspahtel ja värvimine (seina pinda 57m2).
*Kipsseina liidete ja lauspahteldus ja värvimine (seina pinda 48m2).

2. Lagedes pahtliparandused ja värvimine (krunt + 2 kihti varvi).

3. Dušširuumi ehitamine (põranda pinda 3,5m2).
* Vee- ja kanalitorude ning duššitrapi paigaldus,
*Põranda valu + el põrandaküttemati paigaldus. *Kipsplaatide seina paigaldus.
*Põranda ja seinade plaatimine ja ettevalmistavad tööd (hüdro jms).
*Klaasist duššiseina paigaldus.
*Santehnika (wc pott, duššilift ja segisti, valamu, pesumasin) paigaldus.
*Ripplae karkassi ehitus ja metallist ripplae paigaldus.
*Dušširuumi lõppviimistlus (silikoonimine, vuukimine, puhastamine).

4. Korteri välisukse vahetus ja 1 magamistoa ning dušširuumi ukse paigaldus.

5. Laminaatparketi paigaldus 2 magamistuba, elutuba/esik ja köök, kokku ca 48m2. põrandaliistude paigaldus.

6. Köögimööbli paigaldus, köögi santehnika paigaldus (nõudepesumasin, kubu, pliit/ahi ja valamu). Kahe magamistoa otsaseina garderoobikapi liuguste paigaldus.

7. Tekkinud ehitusprahi äravedu ja ehitusjärgne koristus.

Pildid, video ja failid

Hanke korraldaja: ettevõte ID71192

Pakkumised

Pakkumisi kokku: 12

Ettevõte Summa Käibemaks Lisatud Vestlus
Kasutaja ikoon ID70403
Pakkuja profiil Väike nool paremale
14 000€ Sisaldab KM Sisaldab KM 11.10.2022 Vestlus (4)
Kasutaja ikoon ID65125
Pakkuja profiil Väike nool paremale
13 000€ Sisaldab KM Sisaldab KM 13.10.2022 Vestlus (0)

Pakkumise kirjeldus:

Tere hind tehtud tööle
Lugupidamisega Keijo ja Taavi.

Kasutaja ikoon ID70424
Pakkuja profiil Väike nool paremale
25 000€ Sisaldab KM Sisaldab KM 23.10.2022 Vestlus (0)
Kasutaja ikoon ID67067
Pakkuja profiil Väike nool paremale
12 900€ Ei ole KMKR Ei ole KMKR 26.10.2022 Vestlus (0)

Pakkumise kirjeldus:

Tere,

Pakkumine antud töödele. Hind ei sisalda materjale.
Alustamise aeg kokkuleppel. Kui tekib küsimusi, küsige.
Ettemaks eelnevate kulude katteks.

lp. Aivo

Kasutaja ikoon ID53894
Pakkuja profiil Väike nool paremale
14 900€ Ei ole KMKR Ei ole KMKR 26.10.2022 Vestlus (0)
Kasutaja ikoon ID71682
Pakkuja profiil Väike nool paremale
13 000€ Sisaldab KM Sisaldab KM 06.11.2022 Vestlus (0)

Pakkumise kirjeldus:

Tere,

Pakkumine on tehtud vastavalt Teie kirjeldatud töödele
Töid teostab proffesionaalne meeskond, tehtud töödele on garantii!

Kui teid huvitab meie pakkumine võtke meiega ühendust ja kirjutame oma hinnapakkumise lahti.

Lugupidamisega,
Valentin

Kasutaja ikoon ID64435
Pakkuja profiil Väike nool paremale
5 900€ Ei ole KMKR Ei ole KMKR 07.11.2022 Vestlus (0)

Pakkumise kirjeldus:

Tere teen pakkumise hetkel ainult töödele mis jääb väljaspoole vannituba.

Kasutaja ikoon ID69073
Pakkuja profiil Väike nool paremale
12 000€ Sisaldab KM Sisaldab KM 09.11.2022 Vestlus (0)

Pakkumise kirjeldus:

Ettemaksu soo., kuna tuleb osta vajaminevad materjalid ja need ka kohale tuua. Hinnapakkumise koostamisel arvestatud teie tööde nimekirja ja järjestust.

1-1,5 kuud kulub antud korteri valmimiseks

Kasutaja ikoon ID71773
Pakkuja profiil Väike nool paremale
14 500€ Sisaldab KM Sisaldab KM 11.11.2022 Vestlus (0)
Kasutaja ikoon ID70355
Pakkuja profiil Väike nool paremale
20 000€ KM lisandub KM lisandub 14.11.2022 Vestlus (0)
Kasutaja ikoon ID70448
Pakkuja profiil Väike nool paremale
14 000€ Ei ole KMKR Ei ole KMKR 15.11.2022 Vestlus (0)

Pakkumise kirjeldus:

Meie pakkumine Teie kirjeldatud töödele.
Lugupidamisega
HN

Kasutaja ikoon ID56408
Pakkuja profiil Väike nool paremale
13 000€ Ei ole KMKR Ei ole KMKR 21.11.2022 Vestlus (0)

Pakkumise kirjeldus:

Tere,

Pakkumine Teie hankele

Lugupidamisega

Küsimused hanke korraldajale

Küsimus: private ID70355   13.10.2022 21:58
Tere

Mitmes korrus?
Dušširuumi santehnika ja köögimööbel on kellepoolt?
Kas plaadi on väljavalitud?

LgpA

Teavita reeglite rikkumisest

Korraldaja vastus: 18.10.2022 16:03

Tervitused,

Santehnika ja köögimööbel pole veel välja valitud. Kuid tõenäoliselt tuleb santehnika ehituspoest ja köögimööbel IKEAst.

Keraamilised plaadid on suure tõenäosusega põrandale 10x10cm ja seina ca 20x30cmHead soovides,
Kairo

Teavita reeglite rikkumisest

Küsimus: private ID70355   12.11.2022 00:10
Tere

Mitmendal korrusel korter asub?
Kas olete kaalunud uue põranda ehitust?Põranda liistude paigaldades jääb liist ebatasaselt ,vahed jäävad mis hakkab silma , kuna põrand pole loodis ja vanade laagide peale ehitatud. Põrand nagiseb igatepidi see hakkab häirima.

Teavita reeglite rikkumisest

Korraldaja vastus: 12.11.2022 10:42

Tere,

Korter asub 4ndal korrusel. Uus põrandaid ei pane. Nagina püüame likvideerida lastes kruvid läbi põrandalaudade laakidesse/prussidesse.


Head soovides,

Teavita reeglite rikkumisest

Lisa küsimus

Lisa küsimus

Minu pakkumine

Reeglid

Pakkumise kirjelduse väli on mõeldud pakkumise detailsemaks lahti kirjutamiseks. Pikema teksti mugavaks sisestamiseks klikkige kasti paremal ülaservas oleval ikoonil.
Pakkumist tehes on keelatud postitada enda kontaktandmeid (nimi, telefon, aadress jne). Me jälgime ja analüüsime pakkumisi, et vältida pettuseid ja reeglite rikkumisi.
Rikkumise puhul kasutajakonto blokeeritakse.

 

Teisi töid samas valdkonnas

Valdkonnas "Siseviimistlustööd" on 26 aktiivset tööd

Korteri maalritööd

Asukoht: Harjumaa, Tallinn
Aega jäänud: 2p 22h
Tehtud pakkumisi: 5

Köögiremont korteris: maalritööd, laminaadi paigaldus ja elektritööd

Asukoht: Tartumaa, Tartu
Aega jäänud: 22h 58 min
Tehtud pakkumisi: 4

Vanemad teated:

Vaata kõiki

Sellel veebilehel kasutatakse küpsiseid. Kasutamist jätkates nõustute küpsiste kasutamisega.

Sulge
 
Minu pakkumine

Reeglid

Pakkumise kirjelduse väli on mõeldud pakkumise detailsemaks lahti kirjutamiseks. Pikema teksti mugavaks sisestamiseks klikkige kasti paremal ülaservas oleval ikoonil.
Pakkumist tehes on keelatud postitada enda kontaktandmeid (nimi, telefon, aadress jne). Me jälgime ja analüüsime pakkumisi, et vältida pettuseid ja reeglite rikkumisi.
Rikkumise puhul kasutajakonto blokeeritakse.