+ Lisa oma töö      

Otsid ehitajat "Üldehitus" valdkonnast?

Parima pakkumise ja teostaja leidmiseks lisa oma töö.

Korteri vaheseina lammutus, 25m2 põrandatööd, isolatsioon

ID 76134

474 vaatamist

Prindi

  • check Pakkumiste tegemine
    kuni 18.09.2022
  • check Võitja valik kuni
    25.09.2022
  • 3 Töö teostamine
    ja hinnang
Hanke lõpp: P, 18. september, 2022
Maakond: Harjumaa
Linn: Tallinn
Tööde algus: L, 01. oktoober, 2022 (Soovituslik)
Tööde lõpp: K, 30. november, 2022 (Soovituslik)
Ehitusmaterjalid: Töö tellija poolt
Soovin pakkumisi: Summa kogu projektile

Töö sisu

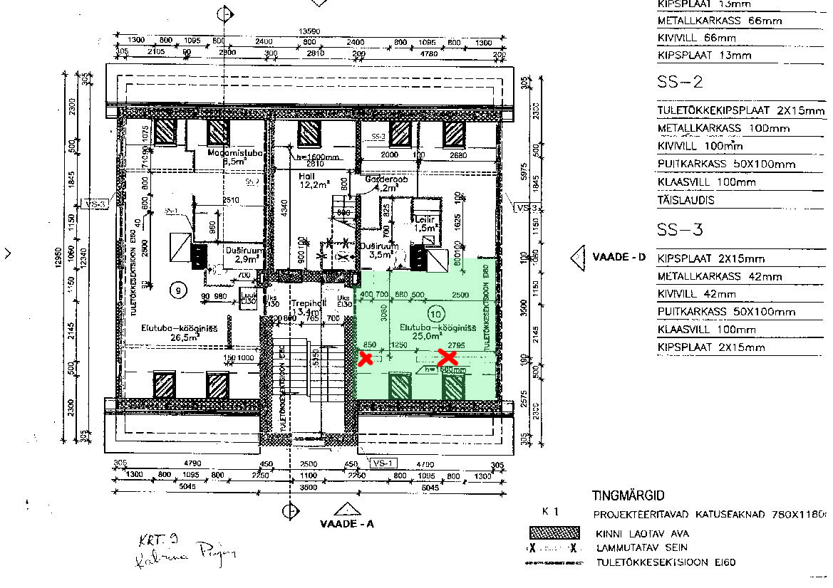
Tallinnas, 30-ndatel ehitatud kivitrepikohaga puitmajas, kolmanda korruse korteris vaja teostada järgmised tööd:

1. Vaheseina lammutus: 25m2 põrandapinnaga tuba on hetkel vaheseinaga jaotatud kaheks. Oleks vaja lammutada vahesein (projekti järgi ei ole kandev sein, vt lisatud pilti) ja seejärel allesjäänud seinade/lae pinnad uuesti siledaks viimistleda (tegemist katusealuse nurgaga), vt ka lisatud fotodelt pilte vaheseinast mõlemalt poolt.

2. Põranda heliisolatsioon.
Samas toas on taastatud originaal laudpõrand, kuid heliisolatsioon alumise naabriga on pea olematu (kuulda on ka tavaline kõne). Sooviks põrandalauad eemalda, talade vahe täita heliisolatsiooni materjaliga (nt kivivill) + talade peale samuti kiht heliisolatsiooni sammumüra vähendamiseks + põranda liistude alune vahe täita heliisolatsiooniga.
Kui ehitajal on omapoolseid ettepanekuid materjalide kasutamise osas või vahelae heliisolatsiooni lahenduse osas, siis kõik ettepanekud on teretulnud. Eelistan tegijat, kellel on kogemusi sarnaste probleemide lahendamisel.

3. Põrandalaudade paigaldus ja viimistlus - olemasolevad põrandalauad tagasi paigaldada, võimalusel taaskasutada olemasolevaid laudu nii palju kui võimalik, puuduvad jupid asendada uutega.

4. Korteris on ka üks teine tuba, millel on välisseinas vaja soojusisolatsiooni parandada. Tegemist katusealuse nurgaga, soojustatava väisseina pindala on 250 cm x 70 cm. Tuleks eemaldada seestpoolt kipsplaat, paigaldaa soojustus, seejärel kipsplaat uuesti tagasi ja viimistleda. On kahtlus, et antud seina on varasemalt soojustatud ehitusprahiga vms, mis eriti sooja ei pea.

Palun märkige pakkumises ka orienteeruvalt varaseim võimalik tööde teostamise aeg.

Hinnapakkumine tehke palun ainult töö maksumusele, materjalide kulu kannab tellija (eraisik).

Pildid, video ja failid

Hanke korraldaja: eraisik ID69584

Pakkumised

Pakkumisi kokku: 4

Ettevõte Summa Käibemaks Lisatud Vestlus
Kasutaja ikoon ID71052
Pakkuja profiil Väike nool paremale
3 300€ Ei ole KMKR Ei ole KMKR 14.09.2022 Vestlus (0)

Pakkumise kirjeldus:

Pakkumine sisaldab kõnealuseid seinade demontaazi ja montaazitöid, põranda 25m2 ja välisseina isolatsioonitöid ja välisseina ning lae viimistlustööd.

Materjalid Tellija poolt

Parimat soovides.

Kasutaja ikoon ID70448
Pakkuja profiil Väike nool paremale
3 000€ Ei ole KMKR Ei ole KMKR 14.09.2022 Vestlus (0)

Pakkumise kirjeldus:

Meie pakkumine Teie kirjeldatud töödele.
Lugupidamisega
HN

Kasutaja ikoon ID50594
Pakkuja profiil Väike nool paremale
5 000€ KM lisandub KM lisandub 18.09.2022 Vestlus (0)

Pakkumise kirjeldus:

Tere,

Hinnapakkumine koostatud vastavalt hanke kirjeldusele.
Võimalus tasuda ilma KM.

Lgp. Taivo

Kasutaja ikoon ID70516
Pakkuja profiil Väike nool paremale
2 900€ Sisaldab KM Sisaldab KM 18.09.2022 Vestlus (0)

Pakkumise kirjeldus:

Tere,

Pakkumine vastavalt hanke kirjeldusele (sisaldab ka jäätmete utiliseerimist). Alustada saaks alates 3. oktoobrist.

Küsimuste korral võtke julgelt ühendust!

Küsimused hanke korraldajale

Hanke korraldajale ei ole veel küsimusi esitatud.

Lisa küsimus

Lisa küsimus

Minu pakkumine

Reeglid

Pakkumise kirjelduse väli on mõeldud pakkumise detailsemaks lahti kirjutamiseks. Pikema teksti mugavaks sisestamiseks klikkige kasti paremal ülaservas oleval ikoonil.
Pakkumist tehes on keelatud postitada enda kontaktandmeid (nimi, telefon, aadress jne). Me jälgime ja analüüsime pakkumisi, et vältida pettuseid ja reeglite rikkumisi.
Rikkumise puhul kasutajakonto blokeeritakse.

 

Teisi töid samas valdkonnas

Valdkonnas "Üldehitus" on 28 aktiivset tööd

Maja värvimine

Asukoht: Harjumaa, Saue
Aega jäänud: 2p 8h
Tehtud pakkumisi: 5

Terassi õlitamine, 13,7 ruutu

Asukoht: Harjumaa, Saue
Aega jäänud: 5p 8h
Tehtud pakkumisi: 5

Vanemad teated:

Vaata kõiki

Sellel veebilehel kasutatakse küpsiseid. Kasutamist jätkates nõustute küpsiste kasutamisega.

Sulge
 
Minu pakkumine

Reeglid

Pakkumise kirjelduse väli on mõeldud pakkumise detailsemaks lahti kirjutamiseks. Pikema teksti mugavaks sisestamiseks klikkige kasti paremal ülaservas oleval ikoonil.
Pakkumist tehes on keelatud postitada enda kontaktandmeid (nimi, telefon, aadress jne). Me jälgime ja analüüsime pakkumisi, et vältida pettuseid ja reeglite rikkumisi.
Rikkumise puhul kasutajakonto blokeeritakse.