+ Lisa oma töö      

Otsid ehitajat "Põrandatööd" valdkonnast?

Parima pakkumise ja teostaja leidmiseks lisa oma töö.

Parketi paigaldus

ID 75888

638 vaatamist

Prindi

  • check Pakkumiste tegemine
    kuni 16.09.2022
  • check Võitja valik kuni
    23.09.2022
  • 3 Töö teostamine
    ja hinnang
Hanke lõpp: R, 16. september, 2022
Maakond: Harjumaa
Linn: Tallinn
Tööde algus: N, 01. detsember, 2022 (Soovituslik)
Tööde lõpp: L, 31. detsember, 2022 (Soovituslik)
Ehitusmaterjalid: Töö tegija poolt
Soovin pakkumisi: Summa kogu projektile

Töö sisu

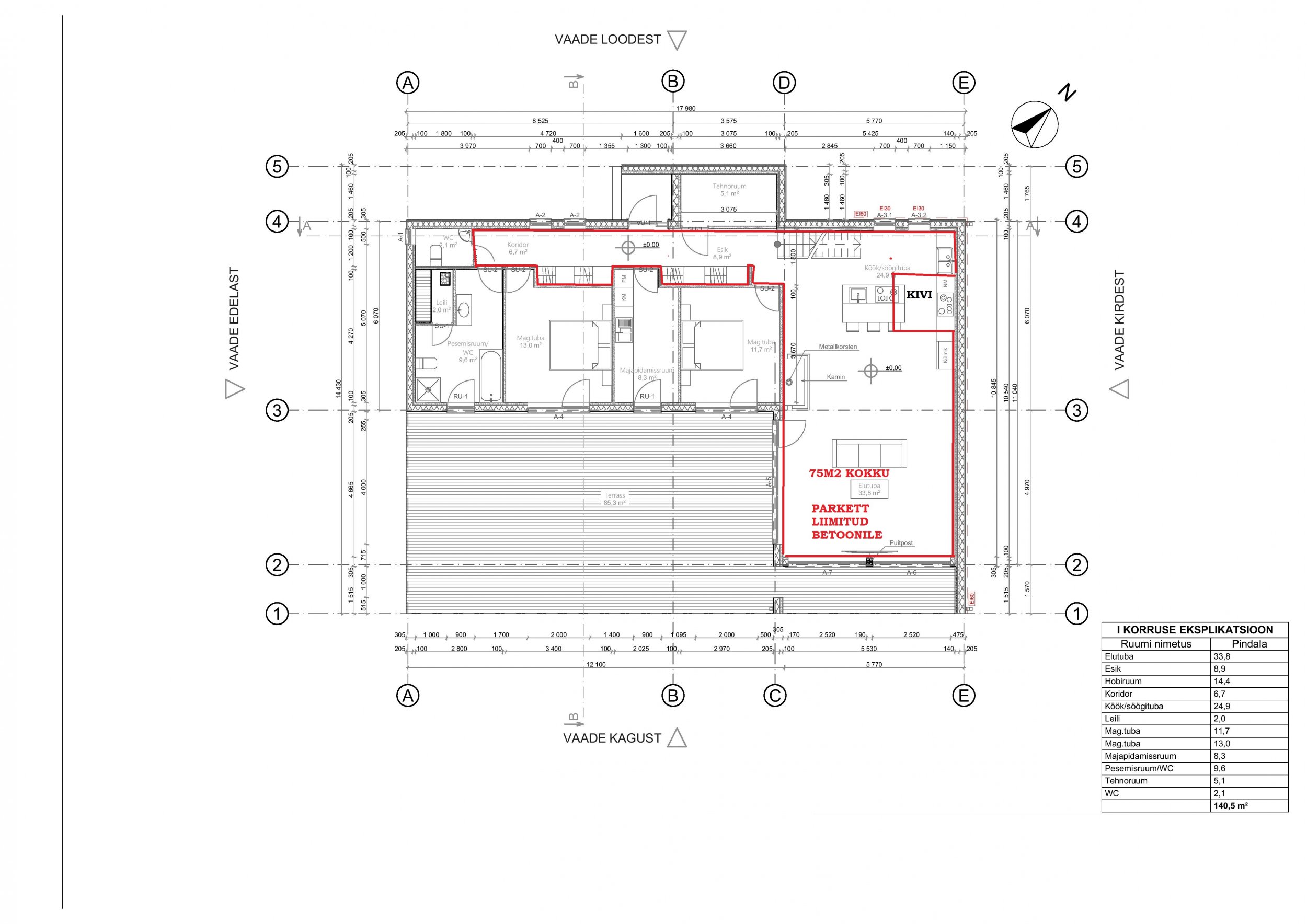
Tamme parketi paigaldamine. Liimimine otse betoonile.
Parkett on meil olemas. Mõõdud on 19*200cm pikad. Tehase õlitatud.
Vajalik paigaldaja poolt liim.

Eeldatav paigaldus millalgi detsembris.

Pildid, video ja failid

Hanke korraldaja: eraisik ID40152

Pakkumised

Pakkumisi kokku: 3

Ettevõte Summa Käibemaks Lisatud Vestlus
Kasutaja ikoon ID59969
Pakkuja profiil Väike nool paremale
1 500€ Sisaldab KM Sisaldab KM 03.09.2022 Vestlus (0)

Pakkumise kirjeldus:

Hind sisaldab parketi paigaldust 72m2 koos liimiga. Töö kiire ja korralik. Tegelen sellega igapäevaselt!

Kasutaja ikoon ID40056
Pakkuja profiil Väike nool paremale
1 500€ Sisaldab KM Sisaldab KM 12.09.2022 Vestlus (0)

Pakkumise kirjeldus:

Pakkumises eeldatud et pind on sile. Detsember sobib väga hästi.

Lp

Kasutaja ikoon ID31957
Pakkuja profiil Väike nool paremale
1 500€ KM lisandub KM lisandub 16.09.2022 Vestlus (0)

Pakkumise kirjeldus:

Tere,

Pakkumise sisaldab 75 m2parkeri paigaldust liimituna. Liimiks Sikabond 54.
Kui pôrand vajab lisa-vôi eeltöid, siis need lisanduvad vastavalt kokkuleppele.

Edu hankel,
Lugupidamisega

Küsimused hanke korraldajale

Küsimus: private ID50106   02.09.2022 18:38
Tere,

Milline aluspind(kui suur kõikumine 2m lati kohta)?
Kuidas maja ees parkimisega?

Tänud

Teavita reeglite rikkumisest

Korraldaja vastus: 04.09.2022 09:16

Tere! Aluspind peaks olema sirge. Hoovis saab tasuta parkida, mahub ka kaubik.

Teavita reeglite rikkumisest

Küsimus: private ID66826   10.09.2022 17:12
Tere,
Antud hankele on keeruline hinda pakkuda kui pinnad ülevaatamata. Kui sobib, pakun teile parketi paigalduse hinna, aga kui objekti üle vaadates selgub, et vaja lihvida või tasandada, siis see tuleb lisaks, või teete ise
Parimat

Teavita reeglite rikkumisest

Korraldaja vastus: 11.09.2022 10:06

Tere! Arusaadav. Palun pakkumist eeldusel, et pind on sile. Kui selgub kahapeal, et on vaja tasandada selle arvestame eraldi.

Teavita reeglite rikkumisest

Küsimus: private ID66826   11.09.2022 11:35
Tere,
Palun lisage ka link ,et milline parkett täpselt.

Teavita reeglite rikkumisest

Korraldaja vastus: 12.09.2022 07:18

Tere!

https://www.rmstuudio.ee/tooted/parkett/sw-tamm-rustic-cd-harjatud-olitatud-1

Teavita reeglite rikkumisest

Lisa küsimus

Lisa küsimus

Minu pakkumine

Reeglid

Pakkumise kirjelduse väli on mõeldud pakkumise detailsemaks lahti kirjutamiseks. Pikema teksti mugavaks sisestamiseks klikkige kasti paremal ülaservas oleval ikoonil.
Pakkumist tehes on keelatud postitada enda kontaktandmeid (nimi, telefon, aadress jne). Me jälgime ja analüüsime pakkumisi, et vältida pettuseid ja reeglite rikkumisi.
Rikkumise puhul kasutajakonto blokeeritakse.

 

Teisi töid samas valdkonnas

Valdkonnas "Põrandatööd" on 2 aktiivset tööd

Talumaja põrandate valamine/ehitus koos küttetorustiku paigaldusega

Asukoht: Raplamaa, Purila
Aega jäänud: 16p 17h
Tehtud pakkumisi: 2

Põrandakütte paigaldus ja põrandavalu (kips või betoon)

Asukoht: Saaremaa, Muhu vald
Aega jäänud: 17h 55 min
Tehtud pakkumisi: 1

Vanemad teated:

Vaata kõiki

Sellel veebilehel kasutatakse küpsiseid. Kasutamist jätkates nõustute küpsiste kasutamisega.

Sulge
 
Minu pakkumine

Reeglid

Pakkumise kirjelduse väli on mõeldud pakkumise detailsemaks lahti kirjutamiseks. Pikema teksti mugavaks sisestamiseks klikkige kasti paremal ülaservas oleval ikoonil.
Pakkumist tehes on keelatud postitada enda kontaktandmeid (nimi, telefon, aadress jne). Me jälgime ja analüüsime pakkumisi, et vältida pettuseid ja reeglite rikkumisi.
Rikkumise puhul kasutajakonto blokeeritakse.