+ Lisa oma töö      

Otsid ehitajat "Vundamenditööd" valdkonnast?

Parima pakkumise ja teostaja leidmiseks lisa oma töö.

Plaatvundamendi ehitus

ID 75863

3296 vaatamist

Prindi

  • check Pakkumiste tegemine
    kuni 01.10.2022
  • check Võitja valik kuni
    08.10.2022
  • 3 Töö teostamine
    ja hinnang
Hanke lõpp: L, 1. oktoober, 2022
Maakond: Harjumaa
Muu asula: Alliku
Tööde algus: E, 12. september, 2022 (Soovituslik)
Tööde lõpp: E, 31. oktoober, 2022 (Soovituslik)
Ehitusmaterjalid: Töö tegija poolt
Soovin pakkumisi: Summa kogu projektile

Töö sisu

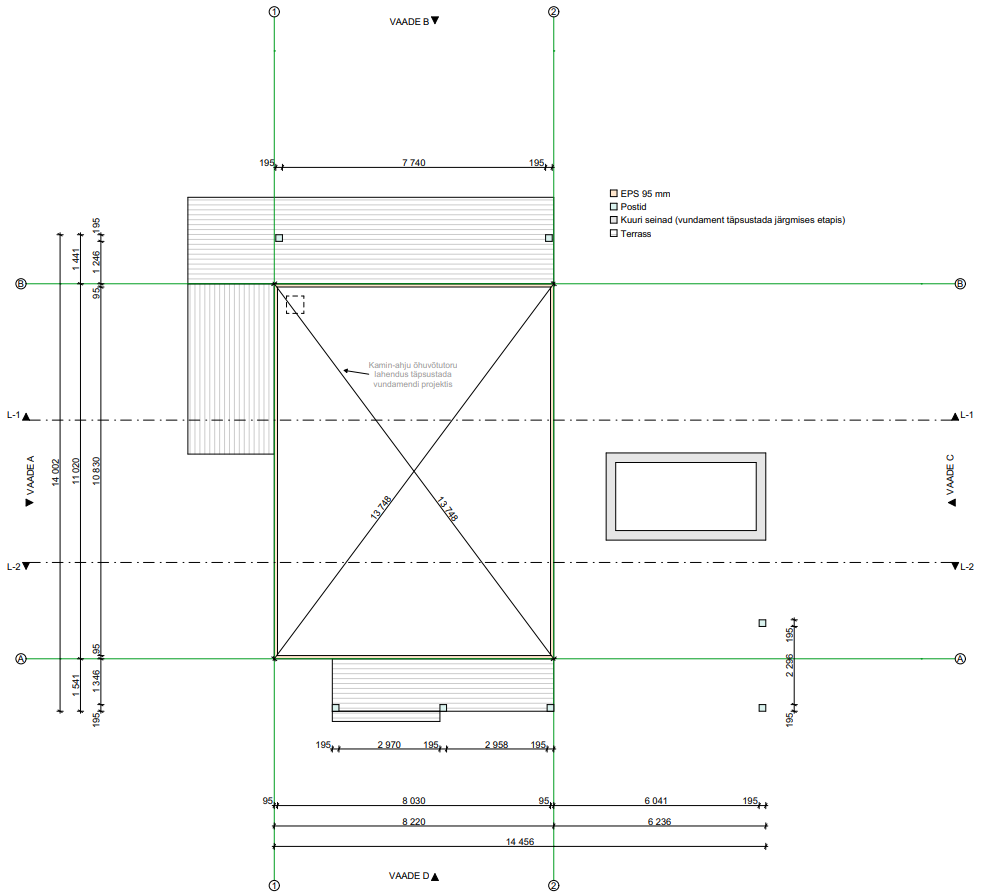
Ca 90m2 plaatvundamendi rajamine 1,5-kordsele puitmajale.
Vajumiste ühtlustamiseks on ette nähtud toekas, monoliitne armeeritud raudbetoonplaat. Põranda all on soojustus EPS100, 2x100 mm, perimeetril EPS100 1x100 mm 1200 mm laiuselt. Betoonvalu 100 mm koos põrandaküttetorudega. Välisperimeetrile 1m laiuselt paigaldada EPS 120, 100mm.
Vundamendile projekt olemas. Pinnaseuuringut teostatud pole. Lähimatel naabritel oli ca 30-40 cm mullakihti, mille all tugev paepinnas.

Pildid, video ja failid

Hanke korraldaja: eraisik ID70897

Pakkumised

Pakkumisi kokku: 2

Ettevõte Summa Käibemaks Lisatud Vestlus
Kasutaja ikoon ID49773
Pakkuja profiil Väike nool paremale
24 960€ Sisaldab KM Sisaldab KM 25.09.2022 Vestlus (0)

Pakkumise kirjeldus:

Tere,

Drenaazi hinda ei pannud kuigi ristlõikes nägin, et peaks olema.Kui see ikkagi tuleb, siis andke märku, teen muudatuse sisse.
Okt. kolmandast nädalast oleks meil võimalik töödega alustada.

Kasutaja ikoon ID53536
Pakkuja profiil Väike nool paremale
21 600€ KM lisandub KM lisandub 01.10.2022 Vestlus (0)

Pakkumise kirjeldus:

Tere
Hind sisaldab nii töö raha kui ka kirjasolevate materjalide kulu normi. Teostame töid kiiresti ja korralikult, sobivuse korral pakume kuni võtmed kätte lahendusi.
Maksmine toimub etappide alusel, materjali arved kuuluvad tasumisele ennem objektile jõudmist.
Edasisele koostööle ootama jäädes.
Parimat
K.

Küsimused hanke korraldajale

Küsimus: private ID70966   07.09.2022 17:07
Kas vundamendi aluse väljakaeve ja liivalus tagasitäide tehtud?
Kas drenaazi torustik ka vaja panna?
Täpsemalt mis olukord objektil on ja mis mahus töid tuleb teostada?
Lisaks siis vaja asendiplaani olemasoleva pinnasekõrguse ja kaeve mahtude määramisele abiks?
Mõistlik on kohapeal üle vaadata ja täpselt paika panna mis vaja teha on . Kuna oleks tellija objektil?

Teavita reeglite rikkumisest

Korraldaja vastus: 07.09.2022 21:24

Objektil ei ole ehitustegevust alustatud. Ootan pakkumist vundamendile nn nullist (s.t koos eeltöödega) ning sellises mahus, mis võimaldab järgmise sammuna vundamendile maja karkassi püstitada. Lisasin pildi asendiplaanist, kus on pinnasekõrgused märgitud (tumesinisega - D1 - drenaaž; heledama sinisega - V1 - veetorustik; helesinisega - SK - sadevesi).
Objektil igapäevaselt kedagi ei ole. Kohapeale läheks vaatama hanke võitnud ettevõtjaga.

Teavita reeglite rikkumisest

Lisa küsimus

Lisa küsimus

Minu pakkumine

Reeglid

Pakkumise kirjelduse väli on mõeldud pakkumise detailsemaks lahti kirjutamiseks. Pikema teksti mugavaks sisestamiseks klikkige kasti paremal ülaservas oleval ikoonil.
Pakkumist tehes on keelatud postitada enda kontaktandmeid (nimi, telefon, aadress jne). Me jälgime ja analüüsime pakkumisi, et vältida pettuseid ja reeglite rikkumisi.
Rikkumise puhul kasutajakonto blokeeritakse.

 

Vanemad teated:

Vaata kõiki

Sellel veebilehel kasutatakse küpsiseid. Kasutamist jätkates nõustute küpsiste kasutamisega.

Sulge
 
Minu pakkumine

Reeglid

Pakkumise kirjelduse väli on mõeldud pakkumise detailsemaks lahti kirjutamiseks. Pikema teksti mugavaks sisestamiseks klikkige kasti paremal ülaservas oleval ikoonil.
Pakkumist tehes on keelatud postitada enda kontaktandmeid (nimi, telefon, aadress jne). Me jälgime ja analüüsime pakkumisi, et vältida pettuseid ja reeglite rikkumisi.
Rikkumise puhul kasutajakonto blokeeritakse.