+ Lisa oma töö      

Otsid ehitajat "Vundamenditööd" valdkonnast?

Parima pakkumise ja teostaja leidmiseks lisa oma töö.

vundamendi paigaldamine, Anija vald, Harjumaa

ID 75823

424 vaatamist

Prindi

  • check Pakkumiste tegemine
    kuni 14.09.2022
  • check Võitja valik kuni
    21.09.2022
  • 3 Töö teostamine
    ja hinnang
Hanke lõpp: K, 14. september, 2022
Maakond: Harjumaa
Muu asula: Lilli
Tööde algus: N, 08. september, 2022 (Soovituslik)
Tööde lõpp: T, 15. november, 2022 (Soovituslik)
Ehitusmaterjalid: Töö tegija poolt
Soovin pakkumisi: Summa kogu projektile

Töö sisu

Tere

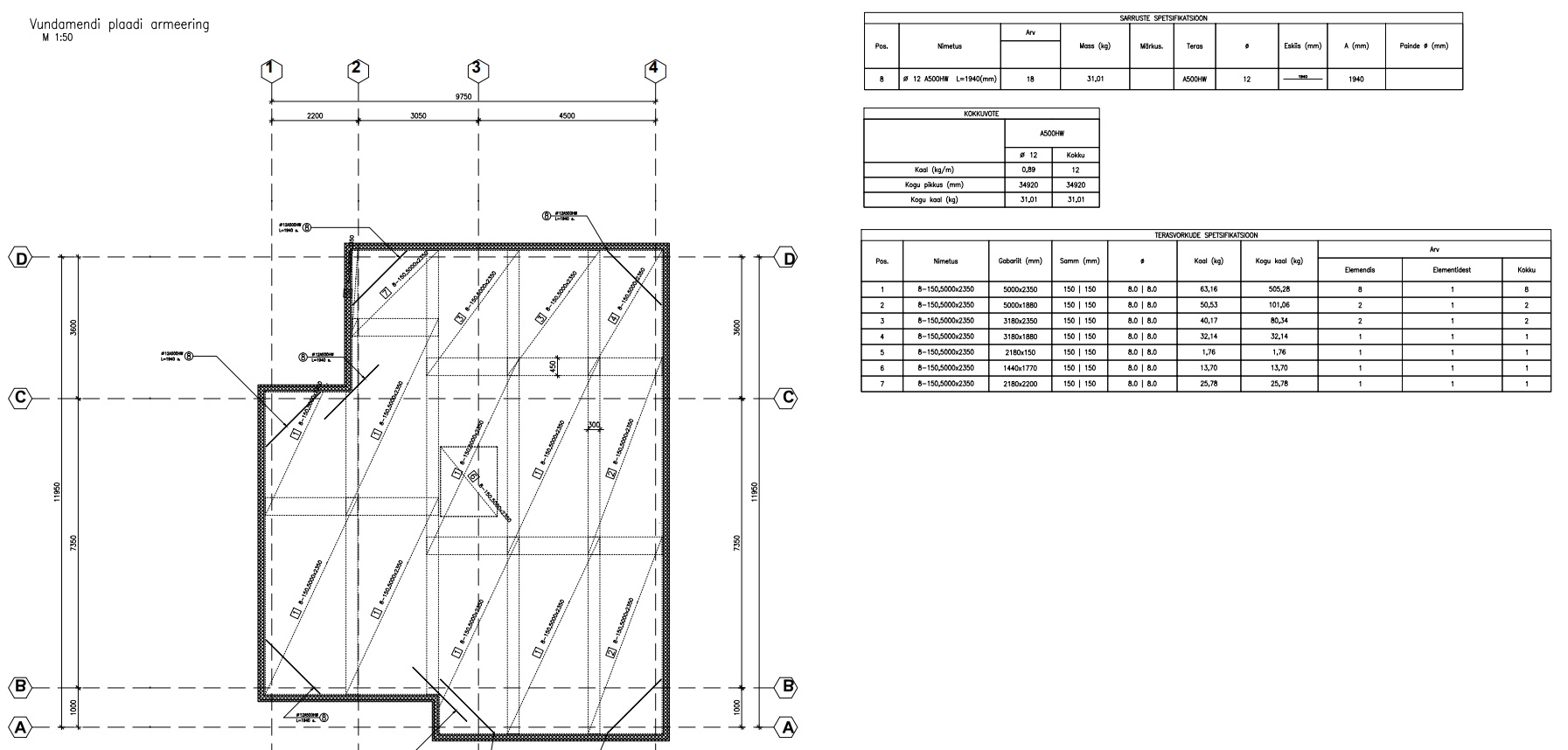
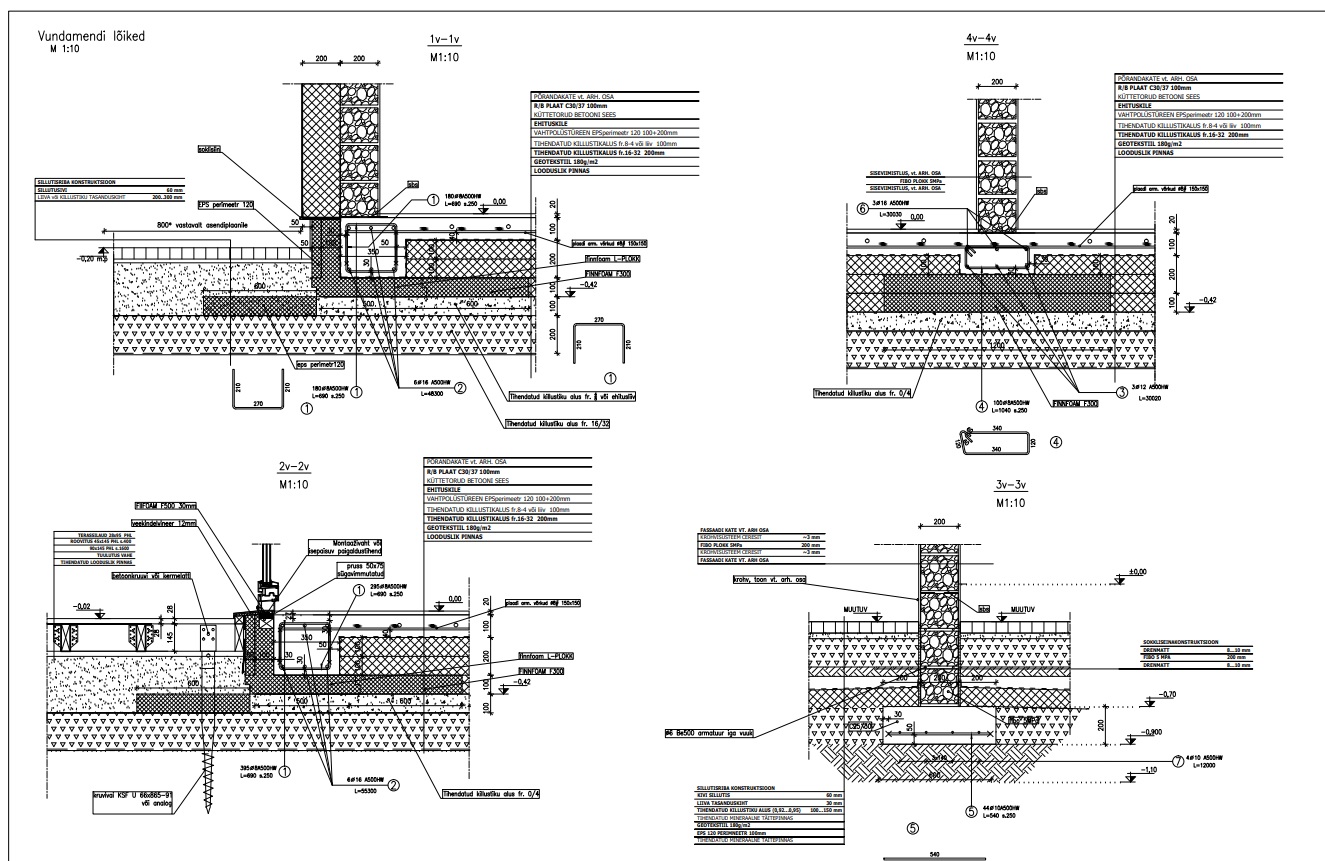
Sooviks paigaldada tuleva maja plaatvundementi koos põrandakütte, vee ja kanalisatsiooni torustikuga.
Kõik tööd ja materjalid tegija poolt (v.a.godesisti töö).
Ehitusluba olemas, näidis manuses, vajadusel küsi lisa.
Sees kulgeb ka üks ventilatsiooni toru mis viib kamina kasti juurde - seda leidub eriosade joonistes.
Tähtaeg on oktoobri lõpp, mida varem seda parem.

Pildid, video ja failid

Hanke korraldaja: eraisik ID57064

Pakkumised

Pakkumisi kokku: 1

Ettevõte Summa Käibemaks Lisatud Vestlus
Kasutaja ikoon ID62201
Pakkuja profiil Väike nool paremale
33 000€ KM lisandub KM lisandub 14.09.2022 Vestlus (0)

Pakkumise kirjeldus:

Hind sisaldab kõiki hankes küsitud töid ja materjale. Ettemaks on kokkuleppeline (materjalide eest). Tööde algus kokkuleppeline. Täpsustavaid küsimusi saate küsida meilt võitja valiku perioodi ajal.

Küsimused hanke korraldajale

Küsimus: private ID71052   14.09.2022 09:51
Tere.
Plaanidelt on raske täpset suurust näha, kas vundamendi välisperimeeter on ca 125m2?

Lugupidamisega.

Teavita reeglite rikkumisest

Korraldaja vastus:
Hanke korraldaja ei ole küsimusele veel vastanud

Lisa küsimus

Lisa küsimus

Minu pakkumine

Reeglid

Pakkumise kirjelduse väli on mõeldud pakkumise detailsemaks lahti kirjutamiseks. Pikema teksti mugavaks sisestamiseks klikkige kasti paremal ülaservas oleval ikoonil.
Pakkumist tehes on keelatud postitada enda kontaktandmeid (nimi, telefon, aadress jne). Me jälgime ja analüüsime pakkumisi, et vältida pettuseid ja reeglite rikkumisi.
Rikkumise puhul kasutajakonto blokeeritakse.

 

Vanemad teated:

Vaata kõiki

Sellel veebilehel kasutatakse küpsiseid. Kasutamist jätkates nõustute küpsiste kasutamisega.

Sulge
 
Minu pakkumine

Reeglid

Pakkumise kirjelduse väli on mõeldud pakkumise detailsemaks lahti kirjutamiseks. Pikema teksti mugavaks sisestamiseks klikkige kasti paremal ülaservas oleval ikoonil.
Pakkumist tehes on keelatud postitada enda kontaktandmeid (nimi, telefon, aadress jne). Me jälgime ja analüüsime pakkumisi, et vältida pettuseid ja reeglite rikkumisi.
Rikkumise puhul kasutajakonto blokeeritakse.