+ Lisa oma töö      

Otsid ehitajat "Katusetööd" valdkonnast?

Parima pakkumise ja teostaja leidmiseks lisa oma töö.

Eramu 2. korruse laiendus - Müüritööd + katuse ehitus

ID 75819

446 vaatamist

Prindi

  • check Pakkumiste tegemine
    kuni 07.09.2022
  • check Võitja valik kuni
    14.09.2022
  • 3 Töö teostamine
    ja hinnang
Hanke lõpp: K, 7. september, 2022
Maakond: Harjumaa
Muu asula: Luige
Tööde algus: E, 19. september, 2022 (Soovituslik)
Tööde lõpp: E, 17. oktoober, 2022 (Soovituslik)
Ehitusmaterjalid: Töö tellija poolt
Soovin pakkumisi: Tüki- või ühikuhinda

Töö sisu

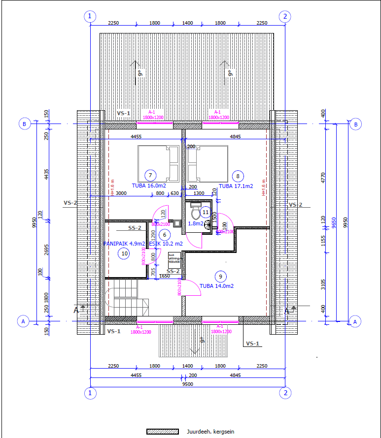
Olemasoleva katuse lahtivõtmine, FIBO 200mm ladumine 75m2, sealhulgas 4 tk. FIBO sillust 2400mm. Katuse ehitus 150m2 (75 + 75m2) kahepoolne viilkatus, kaldega 35 kraadi - sarikad + pennid 50x200mm sammuga 600mm, hingav aluskate, distantsliist, roovitus, katuseplekk (kiviprofiil), servaplekid 28 jm., harjaplekid 11 jm., korstnaplekid, katuseredel 6m, katusesild 1m, lumetõkketoru 11m. Materjalid tulevad tellija poolt. Pakkumist sooviks töörahale. Töödega võimalik alustada 1-2 nädala jooksul peale hanke lõppu. Vihmaveerennid ja tuulekastid võetakse lahti tellija poolt. Ehitusjäätmete äravedu tellija poolt. Vajalik tööde aktid ehituspäeviku tarbeks. Varikatused ei kuulu hankesse.

Pildid, video ja failid

Hanke korraldaja: ettevõte ID66858

Pakkumised

Pakkumisi kokku: 0

Küsimused hanke korraldajale

Hanke korraldajale ei ole veel küsimusi esitatud.

Lisa küsimus

Lisa küsimus

Minu pakkumine

Reeglid

Pakkumise kirjelduse väli on mõeldud pakkumise detailsemaks lahti kirjutamiseks. Pikema teksti mugavaks sisestamiseks klikkige kasti paremal ülaservas oleval ikoonil.
Pakkumist tehes on keelatud postitada enda kontaktandmeid (nimi, telefon, aadress jne). Me jälgime ja analüüsime pakkumisi, et vältida pettuseid ja reeglite rikkumisi.
Rikkumise puhul kasutajakonto blokeeritakse.

 

Teisi töid samas valdkonnas

Valdkonnas "Katusetööd" on 9 aktiivset tööd

no-img Pilt puudub

Käidava katuse PVC 54m2

Asukoht: Harjumaa, Muraste
Aega jäänud: 4p 7h
Tehtud pakkumisi: 3

Suvila

Asukoht: Pärnumaa, Eametsa
Aega jäänud: 7h 41 min
Tehtud pakkumisi: 2

Vanemad teated:

Vaata kõiki

Sellel veebilehel kasutatakse küpsiseid. Kasutamist jätkates nõustute küpsiste kasutamisega.

Sulge
 
Minu pakkumine

Reeglid

Pakkumise kirjelduse väli on mõeldud pakkumise detailsemaks lahti kirjutamiseks. Pikema teksti mugavaks sisestamiseks klikkige kasti paremal ülaservas oleval ikoonil.
Pakkumist tehes on keelatud postitada enda kontaktandmeid (nimi, telefon, aadress jne). Me jälgime ja analüüsime pakkumisi, et vältida pettuseid ja reeglite rikkumisi.
Rikkumise puhul kasutajakonto blokeeritakse.