+ Lisa oma töö      

Otsid ehitajat "Ventilatsioonitööd" valdkonnast?

Parima pakkumise ja teostaja leidmiseks lisa oma töö.

Hange on lõppenud!

Võitjaks osutus kasutaja ID 53315

Korraldaja hinnang tehtud tööle

5.0
03.11.2022
Töökiirus: 12345
Kvaliteet: 12345
Hind: 12345

Eramaja ventilatsioonisüsteemi ehitus

ID 75673

724 vaatamist

Prindi

  • check Pakkumiste tegemine
    kuni 31.08.2022
  • check Võitja valik kuni
    31.08.2022
  • 3 Töö teostamine
    ja hinnang
Hanke lõpp: K, 31. august, 2022
Maakond: Läänemaa
Muu asula: Liivi
Tööde algus: E, 12. september, 2022 (Soovituslik)
Tööde lõpp: E, 26. september, 2022 (Soovituslik)
Ehitusmaterjalid: Töö tegija poolt
Soovin pakkumisi: Summa kogu projektile

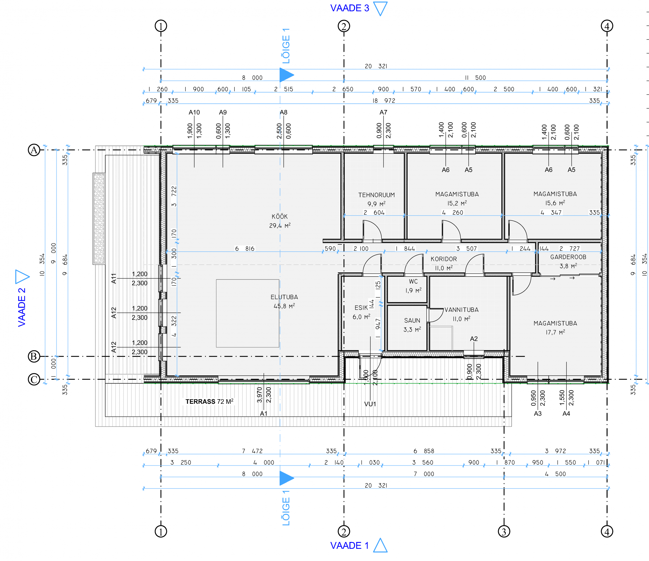
Töö sisu

Ehitatavasse eramajja on vaja projekteerida ja paigaldada soojavahetiga sundventilatsioonisüsteem. Ühekorruselisel majal saab ventilatsioonitorusid paigaldada laepealsel, mis hiljem kaetakse puistevillaga.

Ventilatsiooniagregaat jääb tehnoruumi, vajalik oleks teha ka õhu sissevõtuks ja väljapuhkeks läbiviigud välisseinas.

Eelistaksin varianti, kus igas toas on nii sissepuhe kui ka väljatõmme, et ventilatsioon toimiks ka siis kui tubade uksed on suletud. Tubade kõrgus on 2,7m välja arvatud KÖÖK ja ELUTUBA, mis on üks suur ruum viilkatuse all, mille hari on seestpoolt 5m kõrgusel põrandapinnast.

Ventilatsioonisüsteemi võimsus võiks olla lihtsalt reguleeritav, et pikemalt tühjaks jäävas majas saaks võimsust alandada.

Maja paikneb Läänemaal.

Pildid, video ja failid

Hanke korraldaja: eraisik ID66477

Pakkumised

Pakkumisi kokku: 2

Ettevõte Summa Käibemaks Lisatud Vestlus
Kasutaja ikoon ID63115
Pakkuja profiil Väike nool paremale
450€ Ei ole KMKR Ei ole KMKR 29.08.2022 Vestlus (0)

Pakkumise kirjeldus:

Tere

Hinnapakkumine sisaldab ventilatsioonisüsteemi põhiprojekti.
Ettemaksu ei soovi ja käibemaksu ei lisandu.
Ventilatsiooni pakkumine sisaldab õhuhulkade arvutamist, ventilatsiooni süsteemi projekteerimist, ventilatsiooni seadme valimist, magistraalide jooniseid, põhiseadmete mahuloetelu ja seletuskirja. (vastavalt EVS:906 2018).
Projekteerimi ... Rohkem

Kasutaja ikoon ID53315
Pakkuja profiil Väike nool paremale
6 200€ Ei ole KMKR Ei ole KMKR 29.08.2022 Vestlus (0)

Pakkumise kirjeldus:

Sisaldab materjale (torustik, plafoonid jne), torustiku vedamist nii sisse kui väljapuhe, aukude puurimist, ventilatsiooniseadet 500 m3/h tunnis max (10 eri kiirust, wi-fi teel juhitav)

Küsimused hanke korraldajale

Hanke korraldajale ei ole veel küsimusi esitatud.

Lisa küsimus

Lisa küsimus

Minu pakkumine

Reeglid

Pakkumise kirjelduse väli on mõeldud pakkumise detailsemaks lahti kirjutamiseks. Pikema teksti mugavaks sisestamiseks klikkige kasti paremal ülaservas oleval ikoonil.
Pakkumist tehes on keelatud postitada enda kontaktandmeid (nimi, telefon, aadress jne). Me jälgime ja analüüsime pakkumisi, et vältida pettuseid ja reeglite rikkumisi.
Rikkumise puhul kasutajakonto blokeeritakse.

 

Teisi töid samas valdkonnas

Valdkonnas "Ventilatsioonitööd" on 3 aktiivset tööd

no-img Pilt puudub

Torusisese tagasilöögiklapi paigaldus maja välisseina poolsesse otsa

Asukoht: Harjumaa, Tallinn
Aega jäänud: 2p 18h
Tehtud pakkumisi: 1

Ventilatsioonitööd

Asukoht: Pärnumaa, Pärnu
Aega jäänud: 29p 18h
Tehtud pakkumisi: 0

Vanemad teated:

Vaata kõiki

Sellel veebilehel kasutatakse küpsiseid. Kasutamist jätkates nõustute küpsiste kasutamisega.

Sulge
 
Minu pakkumine

Reeglid

Pakkumise kirjelduse väli on mõeldud pakkumise detailsemaks lahti kirjutamiseks. Pikema teksti mugavaks sisestamiseks klikkige kasti paremal ülaservas oleval ikoonil.
Pakkumist tehes on keelatud postitada enda kontaktandmeid (nimi, telefon, aadress jne). Me jälgime ja analüüsime pakkumisi, et vältida pettuseid ja reeglite rikkumisi.
Rikkumise puhul kasutajakonto blokeeritakse.