+ Lisa oma töö      

Otsid ehitajat "Maalritööd" valdkonnast?

Parima pakkumise ja teostaja leidmiseks lisa oma töö.

Hange on lõppenud!

Võitjaks osutus kasutaja ID 37252

Korraldaja hinnang tehtud tööle

5.0
30.09.2022
Töökiirus: 12345
Kvaliteet: 12345
Hind: 12345

Siseseinte värvimine ja pahteldamine Kristiines

ID 75356

998 vaatamist

Prindi

  • check Pakkumiste tegemine
    kuni 19.08.2022
  • check Võitja valik kuni
    19.08.2022
  • 3 Töö teostamine
    ja hinnang
Hanke lõpp: R, 19. august, 2022
Maakond: Harjumaa
Linn: Tallinn
Tööde algus: E, 22. august, 2022 (Soovituslik)
Tööde lõpp: P, 04. september, 2022
Ehitusmaterjalid: Töö tegija poolt
Soovin pakkumisi: Summa kogu projektile

Töö sisu

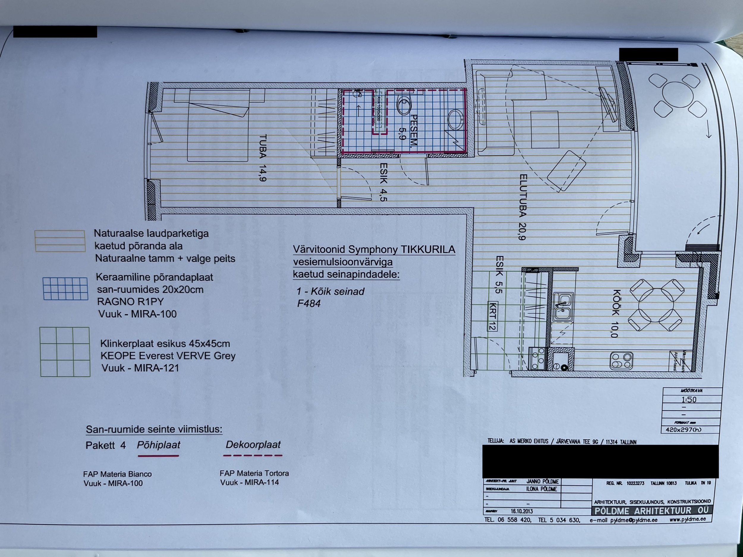
Tarvis teostada korteri seinte ülevärvimine ja mõningate kahjustada saanud nurkade pahteldamine.

Kõik seinad värvida üle TIKKURILA Symphony F484 värviga.

Värvitava ala kogupind ~95m2.

Töövahendid, värvid ja muud tarvikud palun soetada töö teostaja poolt ja arvestada pakkumise kogukulusse.

Pildid, video ja failid

Hanke korraldaja: eraisik ID70662

Pakkumised

Pakkumisi kokku: 8

Ettevõte Summa Käibemaks Lisatud Vestlus
Kasutaja ikoon ID68201
Pakkuja profiil Väike nool paremale
2 900€ Sisaldab KM Sisaldab KM 17.08.2022 Vestlus (0)

Pakkumise kirjeldus:

Tööde eeldatav teostamise aeg on 5 päeva. Võimalik alustada 22.08

Kasutaja ikoon ID70688
Pakkuja profiil Väike nool paremale
2 750€ Sisaldab KM Sisaldab KM 17.08.2022 Vestlus (0)

Pakkumise kirjeldus:

Töö kogenud maalri poolt.

Kasutaja ikoon ID66969
Pakkuja profiil Väike nool paremale
2 500€ Sisaldab KM Sisaldab KM 17.08.2022 Vestlus (0)

Pakkumise kirjeldus:

pakkumine sisaldab pahtli parandusi,kruntimist ja 2x värvimist,alustada saaksin koheselt,töö kestvus nädal .

Kasutaja ikoon ID51140
Pakkuja profiil Väike nool paremale
1 800€ Ei ole KMKR Ei ole KMKR 17.08.2022 Vestlus (0)

Pakkumise kirjeldus:

Pakkumises värv, pahtel ja kattematerjalid, lisaks muud tarvikud töö teostamiseks.

Kasutaja ikoon ID37252
Pakkuja profiil Väike nool paremale
1 120€ Ei ole KMKR Ei ole KMKR 17.08.2022 Vestlus (0)

Pakkumise kirjeldus:

Pakkumine pahtliparanduste ja seinte värvimisele koos materjalidega.
Andres

Kasutaja ikoon ID56500
Pakkuja profiil Väike nool paremale
1 300€ Ei ole KMKR Ei ole KMKR 18.08.2022 Vestlus (0)
Kasutaja ikoon ID70588
Pakkuja profiil Väike nool paremale
2 000€ KM lisandub KM lisandub 18.08.2022 Vestlus (0)

Pakkumise kirjeldus:

Lugupidamisega,

Kasutaja ikoon ID58311
Pakkuja profiil Väike nool paremale
730€ Ei ole KMKR Ei ole KMKR 19.08.2022 Vestlus (0)

Pakkumise kirjeldus:

Pakkumine sisaldab kõiki vajaminevaid vahendeid töö teostamiseks
Tööde teostus aeg võiks jääda vahemikku 23.08-30.08.22

Küsimused hanke korraldajale

Hanke korraldajale ei ole veel küsimusi esitatud.

Lisa küsimus

Lisa küsimus

Minu pakkumine

Reeglid

Pakkumise kirjelduse väli on mõeldud pakkumise detailsemaks lahti kirjutamiseks. Pikema teksti mugavaks sisestamiseks klikkige kasti paremal ülaservas oleval ikoonil.
Pakkumist tehes on keelatud postitada enda kontaktandmeid (nimi, telefon, aadress jne). Me jälgime ja analüüsime pakkumisi, et vältida pettuseid ja reeglite rikkumisi.
Rikkumise puhul kasutajakonto blokeeritakse.

 

Vanemad teated:

Vaata kõiki

Sellel veebilehel kasutatakse küpsiseid. Kasutamist jätkates nõustute küpsiste kasutamisega.

Sulge
 
Minu pakkumine

Reeglid

Pakkumise kirjelduse väli on mõeldud pakkumise detailsemaks lahti kirjutamiseks. Pikema teksti mugavaks sisestamiseks klikkige kasti paremal ülaservas oleval ikoonil.
Pakkumist tehes on keelatud postitada enda kontaktandmeid (nimi, telefon, aadress jne). Me jälgime ja analüüsime pakkumisi, et vältida pettuseid ja reeglite rikkumisi.
Rikkumise puhul kasutajakonto blokeeritakse.