+ Lisa oma töö      

Otsid ehitajat "Vundamenditööd" valdkonnast?

Parima pakkumise ja teostaja leidmiseks lisa oma töö.

Lintvundamendi ehitus Hiiumaal

ID 75210

525 vaatamist

Prindi

  • check Pakkumiste tegemine
    kuni 09.09.2022
  • check Võitja valik kuni
    16.09.2022
  • 3 Töö teostamine
    ja hinnang
Hanke lõpp: R, 9. september, 2022
Maakond: Hiiumaa
Muu asula: Kõrgessaare
Tööde algus: N, 01. september, 2022 (Soovituslik)
Tööde lõpp: L, 31. detsember, 2022 (Soovituslik)
Ehitusmaterjalid: Töö tegija poolt
Soovin pakkumisi: Summa kogu projektile

Töö sisu

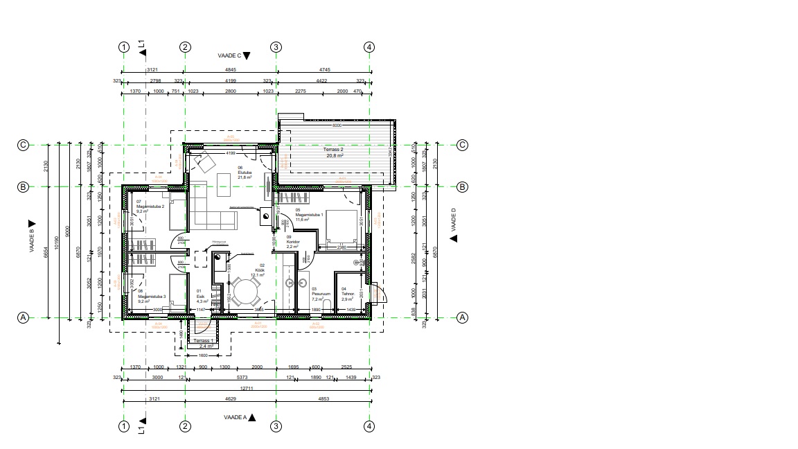
Sooviks saada pakkumist elumaja (ehitisalune pind 99,6m2 ) lintvundamendi ehitusele Hiiumaal.

Pildid, video ja failid

Hanke korraldaja: eraisik ID70592

Pakkumised

Pakkumisi kokku: 2

Ettevõte Summa Käibemaks Lisatud Vestlus
Kasutaja ikoon ID70424
Pakkuja profiil Väike nool paremale
22 000€ KM lisandub KM lisandub 24.08.2022 Vestlus (0)
Kasutaja ikoon ID70966
Pakkuja profiil Väike nool paremale
21 500€ KM lisandub KM lisandub 09.09.2022 Vestlus (0)

Küsimused hanke korraldajale

Küsimus: private ID70966   07.09.2022 17:18
Täpsemalt mis olukord objektil on ? Mis mahus töid vaja teha?
Kas lintvundamenti ehitus tähendab valmis alusele saalungi ehitust ja betoonivalu ?
Või on vaja teha pinnasetöödest põrandaplaadini?

Teavita reeglite rikkumisest

Korraldaja vastus:
Hanke korraldaja ei ole küsimusele veel vastanud

Lisa küsimus

Lisa küsimus

Minu pakkumine

Reeglid

Pakkumise kirjelduse väli on mõeldud pakkumise detailsemaks lahti kirjutamiseks. Pikema teksti mugavaks sisestamiseks klikkige kasti paremal ülaservas oleval ikoonil.
Pakkumist tehes on keelatud postitada enda kontaktandmeid (nimi, telefon, aadress jne). Me jälgime ja analüüsime pakkumisi, et vältida pettuseid ja reeglite rikkumisi.
Rikkumise puhul kasutajakonto blokeeritakse.

 

Vanemad teated:

Vaata kõiki

Sellel veebilehel kasutatakse küpsiseid. Kasutamist jätkates nõustute küpsiste kasutamisega.

Sulge
 
Minu pakkumine

Reeglid

Pakkumise kirjelduse väli on mõeldud pakkumise detailsemaks lahti kirjutamiseks. Pikema teksti mugavaks sisestamiseks klikkige kasti paremal ülaservas oleval ikoonil.
Pakkumist tehes on keelatud postitada enda kontaktandmeid (nimi, telefon, aadress jne). Me jälgime ja analüüsime pakkumisi, et vältida pettuseid ja reeglite rikkumisi.
Rikkumise puhul kasutajakonto blokeeritakse.