+ Lisa oma töö      

Otsid ehitajat "Ventilatsioonitööd" valdkonnast?

Parima pakkumise ja teostaja leidmiseks lisa oma töö.

Korteri ventilatsiooni paigaldus

ID 74950

577 vaatamist

Prindi

  • check Pakkumiste tegemine
    kuni 16.08.2022
  • check Võitja valik kuni
    23.08.2022
  • 3 Töö teostamine
    ja hinnang
Hanke lõpp: T, 16. august, 2022
Maakond: Harjumaa
Muu asula: Raasiku
Tööde algus: R, 12. august, 2022 (Soovituslik)
Tööde lõpp: N, 15. september, 2022 (Soovituslik)
Ehitusmaterjalid: Töö tellija poolt
Soovin pakkumisi: Summa kogu projektile

Töö sisu

Tarvis on paigaldada :
- soojustagastusega ventilatsiooniseadmed elutuppa, magamistuppa ning kööki (3tk kokku) ning ühendada need elektrivõrku;
- ventilaator (1tk) vannituppa.

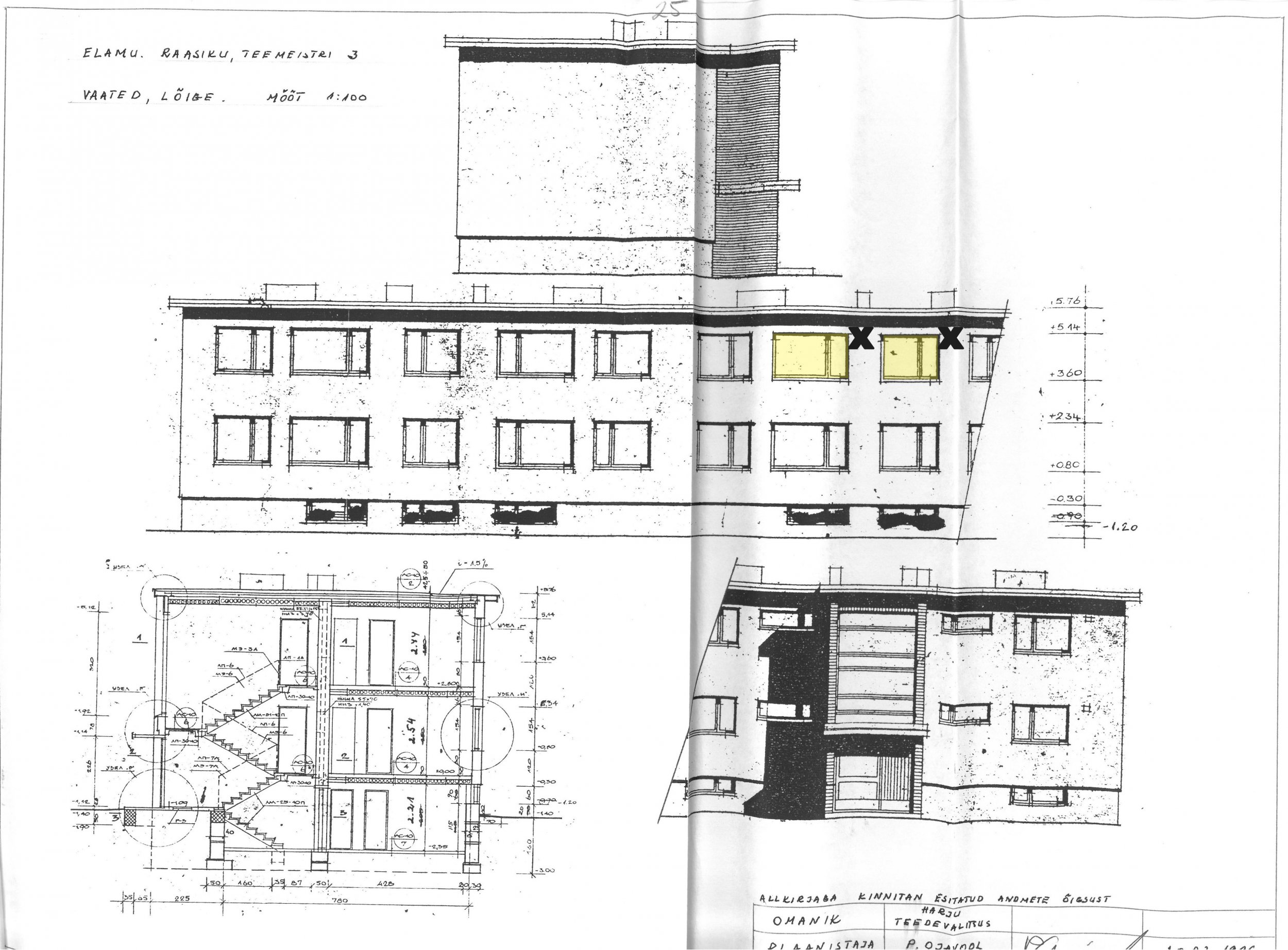
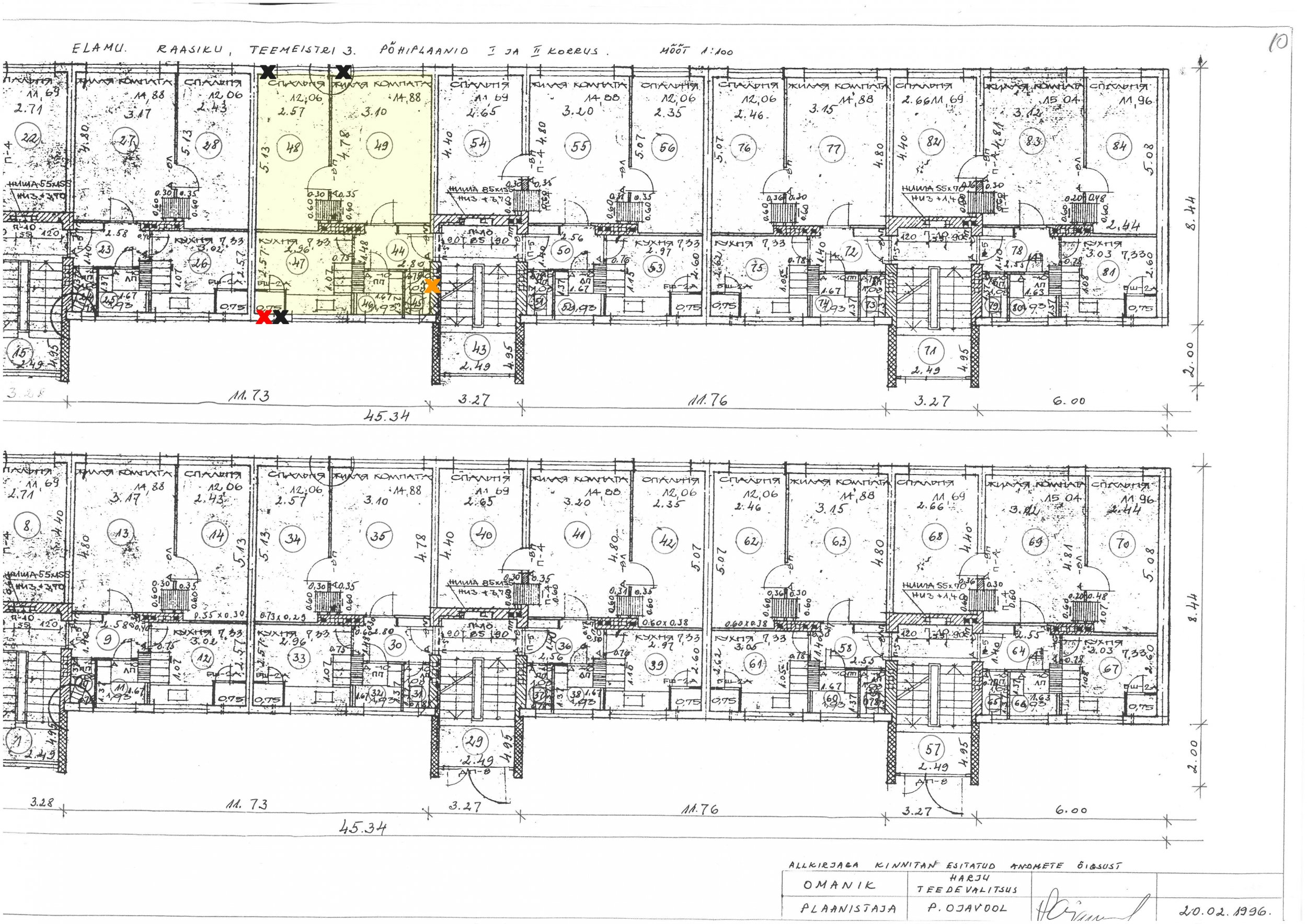
Maja on 1972. aastal ehitatud kahekorruseline paneelmaja. Korter asub 2. korrusel ning peaks arvestama sellega, et vent. avad ise ka asuvad kõrgemal. Arvestage siis selle tööga kaasneva tõstuki vms kulu sinna sisse. Seinte materjalideks on tuhaplokk, väljast krohv ning seest kipsplaat/krohv. Seinte paksus on varieeruv - kogupaksus on 32 kuni 35 cm ning kindlasti suureneb, kuna paari aasta pärast on plaanitud maja välisvooderdus ning soojustamine. Vannitoa vent. ava suundub vent. korstnasse.

Pakkumine peaks sisaldama endas ka konsultatsiooni töö teostuse osas: nt missuguseid ventilatsiooniseadmeid oleks parim kasutada ning kuidas elektrivõrku ühendada.

Tööriistad on töö tegija poolt. Ventilatsiooniseadmed ja restid ostame pärast konsulteerimist ning nende eest tasun ise.

Lisan ka pilte ja jooniseid. Transpordikulu arvestage pakkumise sisse.

Asukoht: Raasiku, Harjumaa. Tallinna linnapiirist Lasnamäelt 23 km (20 min autoga).

Infoks seda, et vene keelt ma kahjuks ei kõnele, seega peab eesti keele/inglise keelega hakkama saama.

Pildid, video ja failid

Hanke korraldaja: eraisik ID58113

Pakkumised

Pakkumisi kokku: 0

Küsimused hanke korraldajale

Küsimus: private ID65125   06.08.2022 19:01
Tere vent vajab ka elektrit,seega on ka elektri tööd siis?

Teavita reeglite rikkumisest

Korraldaja vastus: 07.08.2022 10:59

Tere! Ideaalne oleks tõesti, et saaksime paigalduse koos elektritöödega.

Teavita reeglite rikkumisest

Küsimus: private ID65125   08.08.2022 15:43
Kui kiire teil selle tööga on?

Teavita reeglite rikkumisest

Korraldaja vastus: 08.08.2022 15:50

Otseselt kiire pole, aga septembris võiks ära paigaldada.

Teavita reeglite rikkumisest

Lisa küsimus

Lisa küsimus

Minu pakkumine

Reeglid

Pakkumise kirjelduse väli on mõeldud pakkumise detailsemaks lahti kirjutamiseks. Pikema teksti mugavaks sisestamiseks klikkige kasti paremal ülaservas oleval ikoonil.
Pakkumist tehes on keelatud postitada enda kontaktandmeid (nimi, telefon, aadress jne). Me jälgime ja analüüsime pakkumisi, et vältida pettuseid ja reeglite rikkumisi.
Rikkumise puhul kasutajakonto blokeeritakse.

 

Teisi töid samas valdkonnas

Valdkonnas "Ventilatsioonitööd" on 3 aktiivset tööd

Eramaja ventilatsioonitööd

Asukoht: Tartumaa, Soinaste
Aega jäänud: 6p 1h
Tehtud pakkumisi: 1

no-img Pilt puudub

Ventilatsiooni paigaldamine

Asukoht: Tartumaa, Tartu
Aega jäänud: 3p 1h
Tehtud pakkumisi: 0

Vanemad teated:

Vaata kõiki

Sellel veebilehel kasutatakse küpsiseid. Kasutamist jätkates nõustute küpsiste kasutamisega.

Sulge
 
Minu pakkumine

Reeglid

Pakkumise kirjelduse väli on mõeldud pakkumise detailsemaks lahti kirjutamiseks. Pikema teksti mugavaks sisestamiseks klikkige kasti paremal ülaservas oleval ikoonil.
Pakkumist tehes on keelatud postitada enda kontaktandmeid (nimi, telefon, aadress jne). Me jälgime ja analüüsime pakkumisi, et vältida pettuseid ja reeglite rikkumisi.
Rikkumise puhul kasutajakonto blokeeritakse.