+ Lisa oma töö      

Otsid ehitajat "Katusetööd" valdkonnast?

Parima pakkumise ja teostaja leidmiseks lisa oma töö.

Katuse ehitus (Saue)

ID 74716

589 vaatamist

Prindi

  • check Pakkumiste tegemine
    kuni 04.08.2022
  • check Võitja valik kuni
    11.08.2022
  • 3 Töö teostamine
    ja hinnang
Hanke lõpp: N, 4. august, 2022
Maakond: Harjumaa
Linn: Saue
Tööde algus: E, 08. august, 2022 (Soovituslik)
Tööde lõpp: E, 31. oktoober, 2022 (Soovituslik)
Ehitusmaterjalid: Töö tellija poolt
Soovin pakkumisi: Summa kogu projektile

Töö sisu

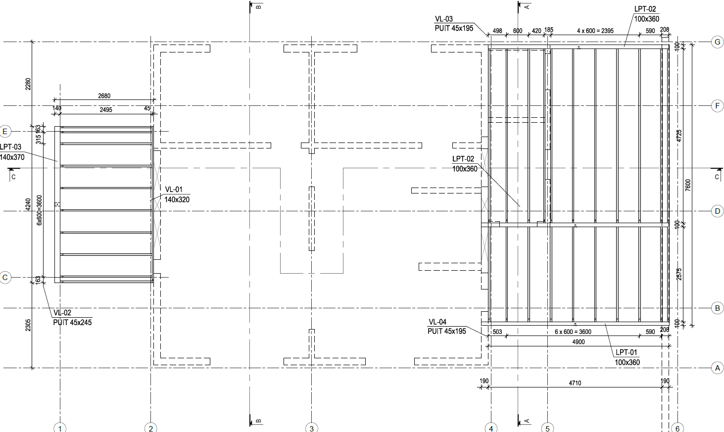
Soov ehitada eramule katus ja vintskapid. Viilkatus 45 kraadi ja katusematerjaliks eterniit.
Katusepinda ca 140m2

Sarika materjalid on olemas, aga on vaja veel lõigata õigesse mõõtu.

Projektis on ette nähtud eterniit classic, ehk siis plaadid: 1130×1250 (eterniit ostetud veel pole)

Hanke eesmärk on saada hoone katuse alla. Ei sisalda lamekatuste ehitust verandale ja eesruumile.

Puitmaterjal ja talad on olemas.
Juhul, kui koostöö sujub, siis pakkuda ka edasised tööd (lamekatus, soojustamine, fassaad)

Pildid, video ja failid

Hanke korraldaja: eraisik ID45117

Pakkumised

Pakkumisi kokku: 2

Ettevõte Summa Käibemaks Lisatud Vestlus
Kasutaja ikoon ID40056
Pakkuja profiil Väike nool paremale
8 400€ KM lisandub KM lisandub 01.08.2022 Vestlus (0)

Pakkumise kirjeldus:

Käibemaks hinnas arvestades et makstakse sularahas.

Kasutaja ikoon ID50594
Pakkuja profiil Väike nool paremale
17 000€ KM lisandub KM lisandub 02.08.2022 Vestlus (0)

Pakkumise kirjeldus:

Tere,

Hinnapakkumine koostatud vastavalt hanke kirjeldusele.

Lgp. Taivo

Küsimused hanke korraldajale

Hanke korraldajale ei ole veel küsimusi esitatud.

Lisa küsimus

Lisa küsimus

Minu pakkumine

Reeglid

Pakkumise kirjelduse väli on mõeldud pakkumise detailsemaks lahti kirjutamiseks. Pikema teksti mugavaks sisestamiseks klikkige kasti paremal ülaservas oleval ikoonil.
Pakkumist tehes on keelatud postitada enda kontaktandmeid (nimi, telefon, aadress jne). Me jälgime ja analüüsime pakkumisi, et vältida pettuseid ja reeglite rikkumisi.
Rikkumise puhul kasutajakonto blokeeritakse.

 

Teisi töid samas valdkonnas

Valdkonnas "Katusetööd" on 9 aktiivset tööd

no-img Pilt puudub

Käidava katuse PVC 54m2

Asukoht: Harjumaa, Muraste
Aega jäänud: 4p 11h
Tehtud pakkumisi: 3

Garaaži katuse vahetamine

Asukoht: Harjumaa, Viimsi
Aega jäänud: 13p 11h
Tehtud pakkumisi: 2

Vanemad teated:

Vaata kõiki

Sellel veebilehel kasutatakse küpsiseid. Kasutamist jätkates nõustute küpsiste kasutamisega.

Sulge
 
Minu pakkumine

Reeglid

Pakkumise kirjelduse väli on mõeldud pakkumise detailsemaks lahti kirjutamiseks. Pikema teksti mugavaks sisestamiseks klikkige kasti paremal ülaservas oleval ikoonil.
Pakkumist tehes on keelatud postitada enda kontaktandmeid (nimi, telefon, aadress jne). Me jälgime ja analüüsime pakkumisi, et vältida pettuseid ja reeglite rikkumisi.
Rikkumise puhul kasutajakonto blokeeritakse.