+ Lisa oma töö      

Otsid ehitajat "Siseviimistlustööd" valdkonnast?

Parima pakkumise ja teostaja leidmiseks lisa oma töö.

Köögi ettevalmistamine uueks mööbiks

ID 74698

564 vaatamist

Prindi

  • check Pakkumiste tegemine
    kuni 05.08.2022
  • check Võitja valik kuni
    12.08.2022
  • 3 Töö teostamine
    ja hinnang
Hanke lõpp: R, 5. august, 2022
Maakond: Harjumaa
Linn: Tallinn
Tööde algus: E, 05. september, 2022 (Soovituslik)
Tööde lõpp: R, 09. september, 2022 (Soovituslik)
Ehitusmaterjalid: Töö tegija poolt
Soovin pakkumisi: Summa kogu projektile

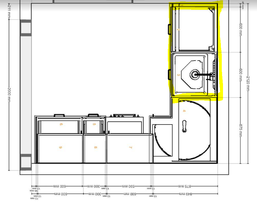
Töö sisu

1. Vana köögi lammutamine ja utiliseerimine (v.a. külmik ja pliit);
2. Tänase valamu all on põrandakahjustus, mille ulatus selgub kohapeal/mööbli eemaldades - parandamine;
3. 2 köögiseina pahteldamine ja värvimine (2464x2120 ja 2464x2340mm);
4. 3 pistikupesa liigutamine köögis, 3 pistikupesa parandamine korteris;
4. veetorude ja äravoolu ettevalmistus uueks valamuks ja nõudepesumasinaks, mis asetsevad tänasest asukohast kaugemal (Vt uus projekt).

Pildid, video ja failid

Hanke korraldaja: eraisik ID70328

Pakkumised

Pakkumisi kokku: 1

Ettevõte Summa Käibemaks Lisatud Vestlus
Kasutaja ikoon ID50979
Pakkuja profiil Väike nool paremale
2 500€ Ei ole KMKR Ei ole KMKR 04.08.2022 Vestlus (0)

Küsimused hanke korraldajale

Küsimus: private ID50979   30.07.2022 21:25
Põrandatöid siis ei arvesta esialgu?

Teavita reeglite rikkumisest

Korraldaja vastus: 31.07.2022 09:27

Jah, sobib.

Teavita reeglite rikkumisest

Lisa küsimus

Lisa küsimus

Minu pakkumine

Reeglid

Pakkumise kirjelduse väli on mõeldud pakkumise detailsemaks lahti kirjutamiseks. Pikema teksti mugavaks sisestamiseks klikkige kasti paremal ülaservas oleval ikoonil.
Pakkumist tehes on keelatud postitada enda kontaktandmeid (nimi, telefon, aadress jne). Me jälgime ja analüüsime pakkumisi, et vältida pettuseid ja reeglite rikkumisi.
Rikkumise puhul kasutajakonto blokeeritakse.

 

Teisi töid samas valdkonnas

Valdkonnas "Siseviimistlustööd" on 20 aktiivset tööd

Seinte pahteldus ja värvimine

Asukoht: Harjumaa, Türisalu
Aega jäänud: 2p 20h
Tehtud pakkumisi: 7

Korteri seinte ja lagede värvimine, osaline pahteldamine

Asukoht: Harjumaa, Tallinn
Aega jäänud: 20h 35 min
Tehtud pakkumisi: 5

Vanemad teated:

Vaata kõiki

Sellel veebilehel kasutatakse küpsiseid. Kasutamist jätkates nõustute küpsiste kasutamisega.

Sulge
 
Minu pakkumine

Reeglid

Pakkumise kirjelduse väli on mõeldud pakkumise detailsemaks lahti kirjutamiseks. Pikema teksti mugavaks sisestamiseks klikkige kasti paremal ülaservas oleval ikoonil.
Pakkumist tehes on keelatud postitada enda kontaktandmeid (nimi, telefon, aadress jne). Me jälgime ja analüüsime pakkumisi, et vältida pettuseid ja reeglite rikkumisi.
Rikkumise puhul kasutajakonto blokeeritakse.