+ Lisa oma töö      

Otsid ehitajat "Vundamenditööd" valdkonnast?

Parima pakkumise ja teostaja leidmiseks lisa oma töö.

Plaatvundament Aespas

ID 74641

850 vaatamist

Prindi

  • check Pakkumiste tegemine
    kuni 08.08.2022
  • check Võitja valik kuni
    15.08.2022
  • 3 Töö teostamine
    ja hinnang
Hanke lõpp: E, 8. august, 2022
Maakond: Raplamaa
Muu asula: Aespa
Tööde algus: N, 01. september, 2022 (Soovituslik)
Tööde lõpp: R, 30. september, 2022 (Soovituslik)
Ehitusmaterjalid: Töö tellija poolt
Soovin pakkumisi: Summa kogu projektile

Töö sisu

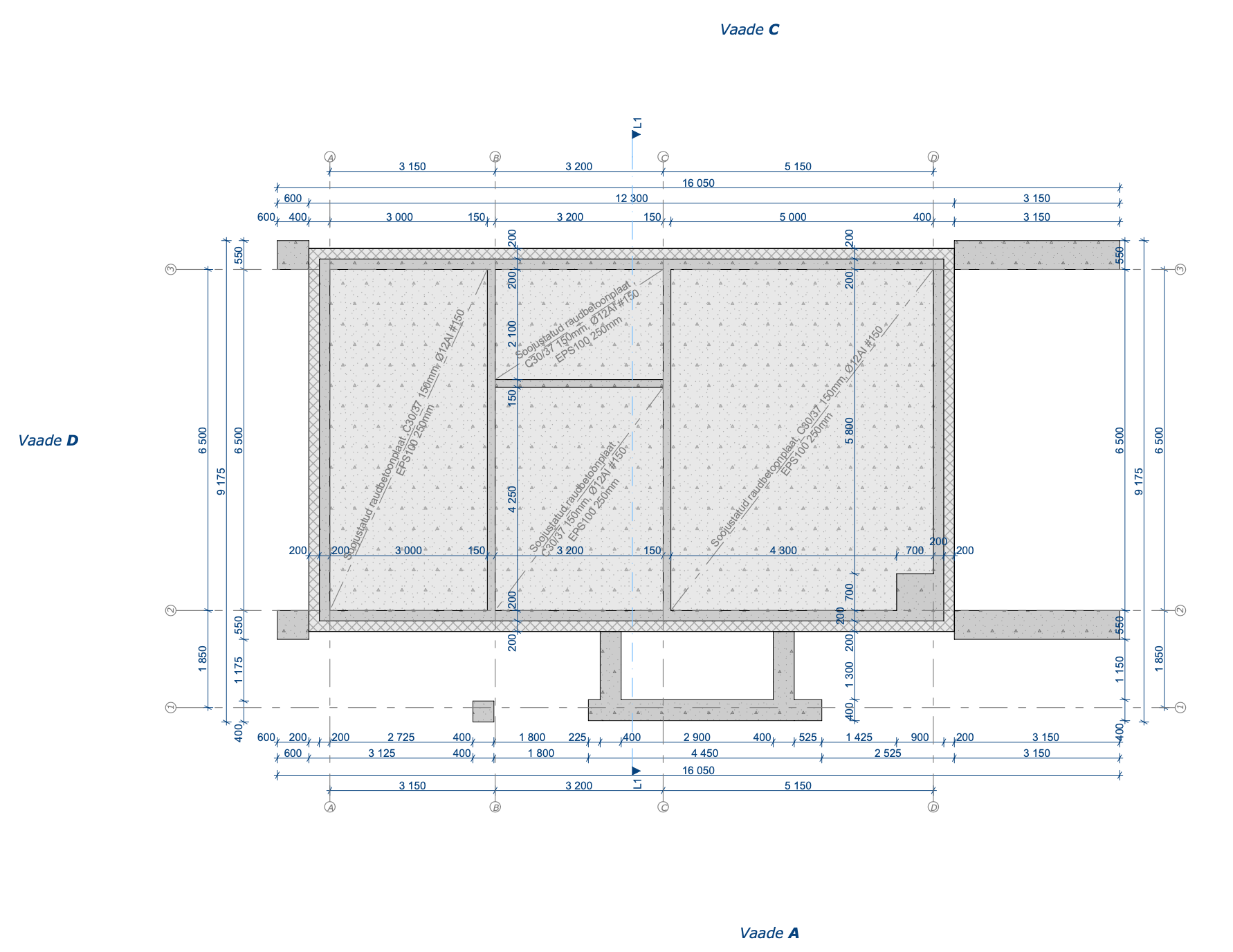
Soovin pakkumist 2-kordsele kivimaja plaatvundamendile (83 m2), koos põrandakütte torustikuga.

Pildid, video ja failid

Hanke korraldaja: eraisik ID70303

Pakkumised

Pakkumisi kokku: 2

Ettevõte Summa Käibemaks Lisatud Vestlus
Kasutaja ikoon ID53401
Pakkuja profiil Väike nool paremale
11 800€ Ikoon kell Sisaldab KM Sisaldab KM 29.07.2022 Vestlus (0)

Pakkumise kirjeldus:

Tere.
Meie pakkumine sisaldab:
1. Pinnasetööd.
2. Vundamendi aluse vee ja kanalisatsiooni süsteemi ehitus.
3. L plokkide paigaldus.
4. Põranda aluse soojustusplaadi paigaldus.
5. Kile paigaldus
6. Süviste armeerimine + armatuurvõrgu paigaldus.
7. Küttetoru paigaldus ja survestamine
8. Betoneerimine ja kopterdamine

Hetkeseisul saaksime töà ... Rohkem

Kasutaja ikoon ID62201
Pakkuja profiil Väike nool paremale
22 825€ KM lisandub KM lisandub 08.08.2022 Vestlus (0)

Pakkumise kirjeldus:

Hinnapakkumine sisaldab kõiki vajaminevaid materjale ja töid (ka põrandakütet). Ettemaks on materjalide eest ja akteerimine etappide kaupa. Meie meeskonnal on üle 20 aastane betoonitööde kogemus.

Küsimused hanke korraldajale

Küsimus: private ID53401   25.07.2022 18:20
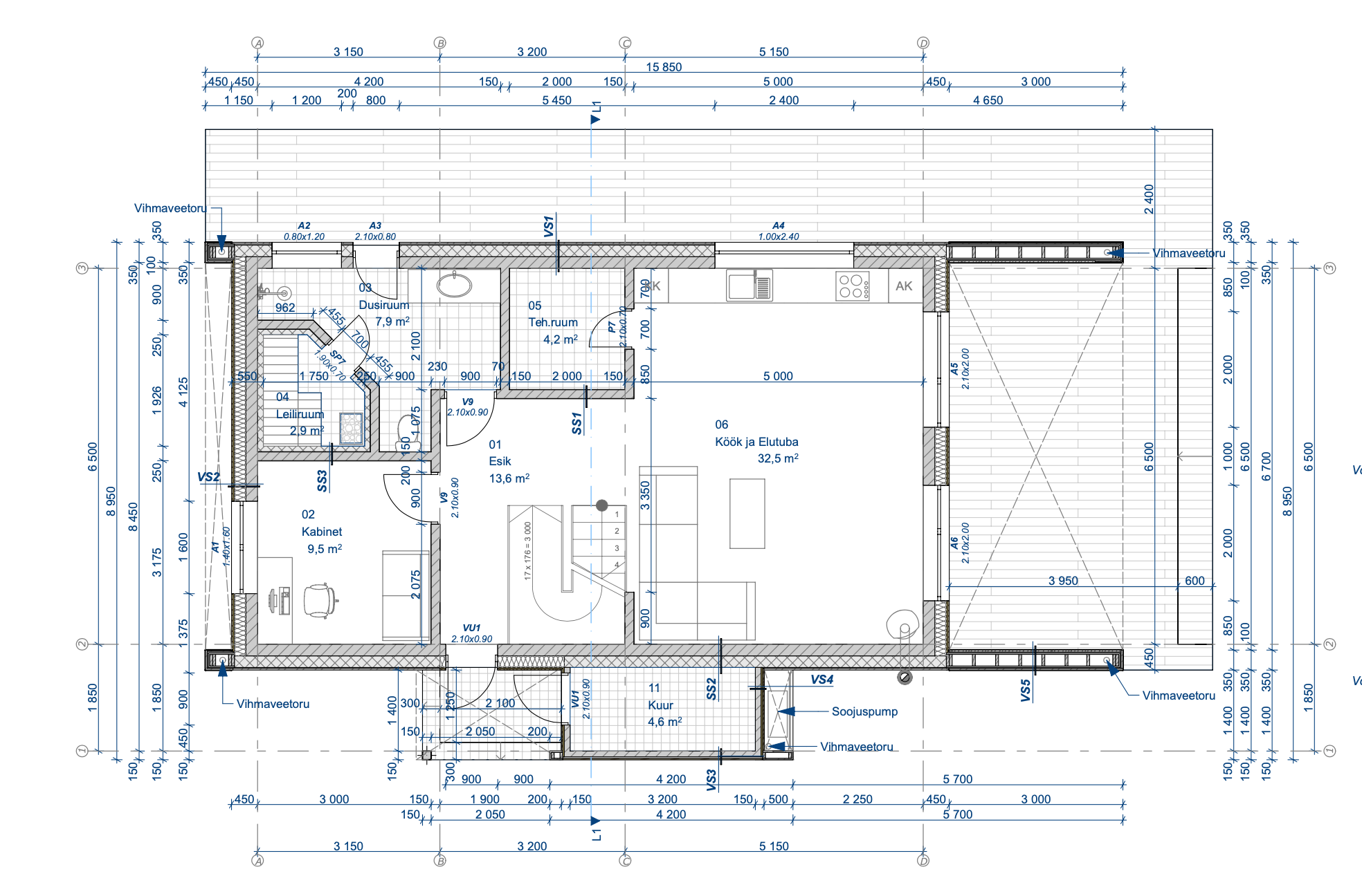
Tere. Kas saaksite palun lisada hoone lõike.
Lugupidamisega

Teavita reeglite rikkumisest

Korraldaja vastus: 25.07.2022 23:36

Tere.
Lisasin.

Teavita reeglite rikkumisest

Lisa küsimus

Lisa küsimus

Minu pakkumine

€

Reeglid

Pakkumise kirjelduse väli on mõeldud pakkumise detailsemaks lahti kirjutamiseks. Pikema teksti mugavaks sisestamiseks klikkige kasti paremal ülaservas oleval ikoonil.
Pakkumist tehes on keelatud postitada enda kontaktandmeid (nimi, telefon, aadress jne). Me jälgime ja analüüsime pakkumisi, et vältida pettuseid ja reeglite rikkumisi.
Rikkumise puhul kasutajakonto blokeeritakse.

 

Vanemad teated:

Vaata kõiki

Sellel veebilehel kasutatakse küpsiseid. Kasutamist jätkates nõustute küpsiste kasutamisega.

Sulge
 
Minu pakkumine
€

Reeglid

Pakkumise kirjelduse väli on mõeldud pakkumise detailsemaks lahti kirjutamiseks. Pikema teksti mugavaks sisestamiseks klikkige kasti paremal ülaservas oleval ikoonil.
Pakkumist tehes on keelatud postitada enda kontaktandmeid (nimi, telefon, aadress jne). Me jälgime ja analüüsime pakkumisi, et vältida pettuseid ja reeglite rikkumisi.
Rikkumise puhul kasutajakonto blokeeritakse.