+ Lisa oma töö      

Otsid ehitajat "Siseviimistlustööd" valdkonnast?

Parima pakkumise ja teostaja leidmiseks lisa oma töö.

Ühetoalise korteri ehitus ja viimistlustööd Kristiines

ID 74575

530 vaatamist

Prindi

  • check Pakkumiste tegemine
    kuni 13.08.2022
  • check Võitja valik kuni
    20.08.2022
  • 3 Töö teostamine
    ja hinnang
Hanke lõpp: L, 13. august, 2022
Maakond: Harjumaa
Linn: Tallinn
Tööde algus: E, 08. august, 2022 (Soovituslik)
Tööde lõpp: K, 31. august, 2022 (Soovituslik)
Ehitusmaterjalid: Töö tegija poolt
Soovin pakkumisi: Summa kogu projektile

Töö sisu

Ehitus ja viimistlustööd
Soovime võtmed kätte lahendust.
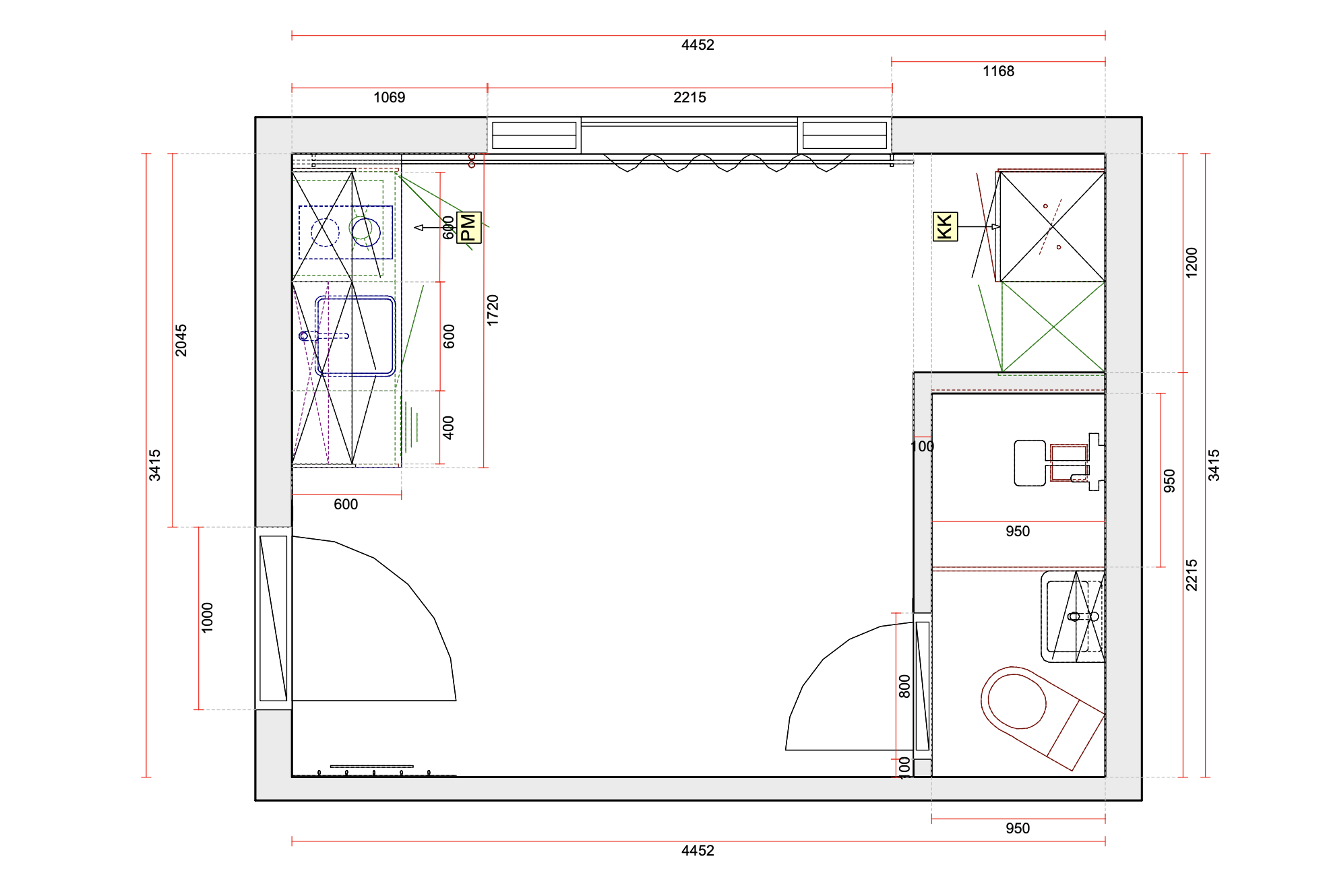
1962 aastal valminud silikaat-välisviimistlusega puitkarkass majas pesuruumiga toa ehitus.
Tühi karp, asub esimesel korrusel. Seintest on alles ainult vana konstruktsiooni talad ja väline laudis, eemaldatud saepuru ja sisemine laudis.
Paigaldatud on uus aken ja kanalisatsioonitorud.

Ruumi mõõdud:
3,75x4,85m;
hetkel kõrgus 2,8m

Teostatavate tööde nimekiri:

Seinad
Kolm välisseina (millest üks on poolenisti välissein), üks sisesein.
Seintes karkass hetkel 13+5cm
Välisseinte soojustamine:
1.Tuuletõke isover RKL 31 - 30mm
2.Klaasvill isover kl 33 - 50mm
3.Klaasvill isover kl 33 -100mm
4.aurutõkkekile 
5.topelt kipsplaat, vähemalt ühes seinas OSP+kipsplaat köögimööbli paigalduseks.

Sisesein
Vana seina karkass 10cm.
Vajalik töö: heliisolatsioon, aurutõkkekile, topelt kipsplaat.
Seinte viimistlus: korrektselt värvitud sisesein.

Lagi toas ja pesuruumis
Alles on jäetud vana vahelagi, milles on soojustuse ja isolatsioonina kasutatud saepuru ja laudist.
Lae tööd: heliisolatsioon (Isover Acustic või analoog), topelt kipsplaat.
Lae all on teise korruse küttetorud, mille jaoks on vaja jätta teenindusluuk.
Lae viimistlus: korrektselt värvitud lagi.

Põrand
Aluseks on vana betoonpõrand ja vanad põranda palgid.
Põranda tööd: täiendav kandev konstruktsioon, aurutõkkekile, soojustus, aluspõrand ja alusmatt, parketi ja põrandaliistude paigaldus.
Parketi ja liistud toob klient.

Pesuruum
Siseseinte ehitus ja ukse paigaldus, seinte ja põranda niiskuskindlaks töötlemine, põranda (2 m2) ja seinte (ca 11 m2) plaatimine.
WC-poti, dushi ja kapiga kraanikausi paigaldus.
Veetorude (soe- ja külmvesi) ja kanalistasioonitorude paigaldus ja ühendus.
Elektripõrandakütte paigaldus (kaablid ja tarvikud põrandasiseseks paigalduseks hangib teostaja).

Kööginurgale veetorude (soe- ja külmvesi) ja kanalisatsioonitoru paigaldus ettenähtud kohtadesse.
Veetorude (soe- ja külmvesi) toomine katlaruumi kollektorist läbi põranda vajalikesse kohtadesse kööki ja pesuruumi. Ühenduse algpunkt asub keldris, distants ca 10 meetrit. Mõõdikute paigaldus soojale ja külmale veele. Materjal ja isolatsioon teostajalt.
Toa seina värskeõhu klapi ava puurimine ja paigaldamine (toob tellija).
Üks helikindel välisuks (valge).
Ventilatsiooni ehitus: ava puurimine välisseina, sund-väljatõmbe torustik kahele asukohale (köök ja pesuruum) ühe mootoriga.
Elektrijuhtmete vedamine määratud kohtadesse (kaablid hangib tellija).
Akna ümbruse viimistlemine ja aknalaua paigaldus.

Tellija hangib
Elektrikaablid, pistikupesad, lülitid, valgustid hangib tellija.
Elektriühenduse peakilpi ühendamine jääb tellija korraldada.
Pesuruumi plaadid, valamu, wc-pott, dushisegisti.
Põrandaliistud ja parkett.

Pildid, video ja failid

Hanke korraldaja: eraisik ID56155

Pakkumised

Pakkumisi kokku: 3

Ettevõte Summa Käibemaks Lisatud Vestlus
Kasutaja ikoon ID40056
Pakkuja profiil Väike nool paremale
22 000€ Sisaldab KM Sisaldab KM 30.07.2022 Vestlus (0)
Kasutaja ikoon ID70403
Pakkuja profiil Väike nool paremale
18 000€ Ei ole KMKR Ei ole KMKR 30.07.2022 Vestlus (0)
Kasutaja ikoon ID70448
Pakkuja profiil Väike nool paremale
17 500€ Ei ole KMKR Ei ole KMKR 08.08.2022 Vestlus (0)

Pakkumise kirjeldus:

Meie pakkumine Teie kirjeldatud töödele.
Lugupidamisega
HN

Küsimused hanke korraldajale

Hanke korraldajale ei ole veel küsimusi esitatud.

Lisa küsimus

Lisa küsimus

Minu pakkumine

Reeglid

Pakkumise kirjelduse väli on mõeldud pakkumise detailsemaks lahti kirjutamiseks. Pikema teksti mugavaks sisestamiseks klikkige kasti paremal ülaservas oleval ikoonil.
Pakkumist tehes on keelatud postitada enda kontaktandmeid (nimi, telefon, aadress jne). Me jälgime ja analüüsime pakkumisi, et vältida pettuseid ja reeglite rikkumisi.
Rikkumise puhul kasutajakonto blokeeritakse.

 

Teisi töid samas valdkonnas

Valdkonnas "Siseviimistlustööd" on 20 aktiivset tööd

Seinte pahteldus ja värvimine

Asukoht: Harjumaa, Türisalu
Aega jäänud: 2p 21h
Tehtud pakkumisi: 7

Korteri seinte ja lagede värvimine, osaline pahteldamine

Asukoht: Harjumaa, Tallinn
Aega jäänud: 21h 39 min
Tehtud pakkumisi: 5

Vanemad teated:

Vaata kõiki

Sellel veebilehel kasutatakse küpsiseid. Kasutamist jätkates nõustute küpsiste kasutamisega.

Sulge
 
Minu pakkumine

Reeglid

Pakkumise kirjelduse väli on mõeldud pakkumise detailsemaks lahti kirjutamiseks. Pikema teksti mugavaks sisestamiseks klikkige kasti paremal ülaservas oleval ikoonil.
Pakkumist tehes on keelatud postitada enda kontaktandmeid (nimi, telefon, aadress jne). Me jälgime ja analüüsime pakkumisi, et vältida pettuseid ja reeglite rikkumisi.
Rikkumise puhul kasutajakonto blokeeritakse.