+ Lisa oma töö      

Otsid ehitajat "Siseviimistlustööd" valdkonnast?

Parima pakkumise ja teostaja leidmiseks lisa oma töö.

Värskendusremont Pirital eramaja 1-2 korrus põrandad ja seinad

ID 74542

338 vaatamist

Prindi

  • check Pakkumiste tegemine
    kuni 01.08.2022
  • check Võitja valik kuni
    08.08.2022
  • 3 Töö teostamine
    ja hinnang
Hanke lõpp: E, 1. august, 2022
Maakond: Harjumaa
Linn: Tallinn
Tööde algus: E, 01. august, 2022 (Soovituslik)
Tööde lõpp: R, 30. september, 2022 (Soovituslik)
Ehitusmaterjalid: Töö tegija poolt
Soovin pakkumisi: Summa kogu projektile

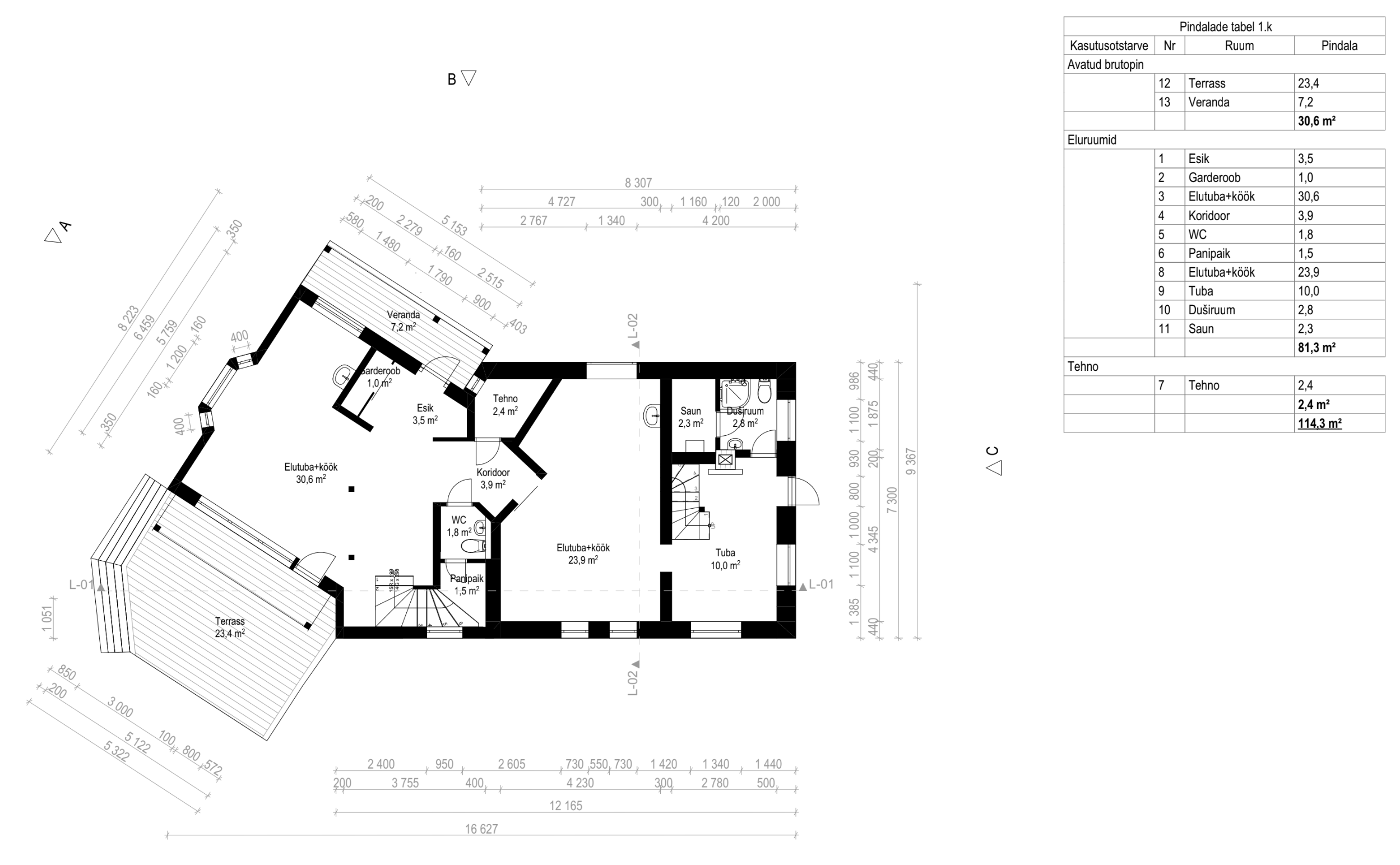
Töö sisu

23m2 köök-söögituba, kus vaja lihvida laudpõrand (2/3 pinnast) ning vahetada linoleumpõrand (1/3 pinnast) korkpõranda vastu (võimalik, et sinna alla vaja panna ka püssiplaat).

10m2 toas vaja lihvida 7m2 põrandapinda (ülejäänud 3m2 on kamina ja ahju esine kivi). Ideaalis soovime lihvimise asemel sinna vaipa, aga kuna tegemist kaminatoaga, siis tuleohutuse mõttes ei klapi - kui on olemas mittesüttiv vaip, siis see oleks hea variant. Vajalik samas toas tapeetida ning me ei oska öelda, kas saab tapeetida vana peale või tarvis eemaldada.

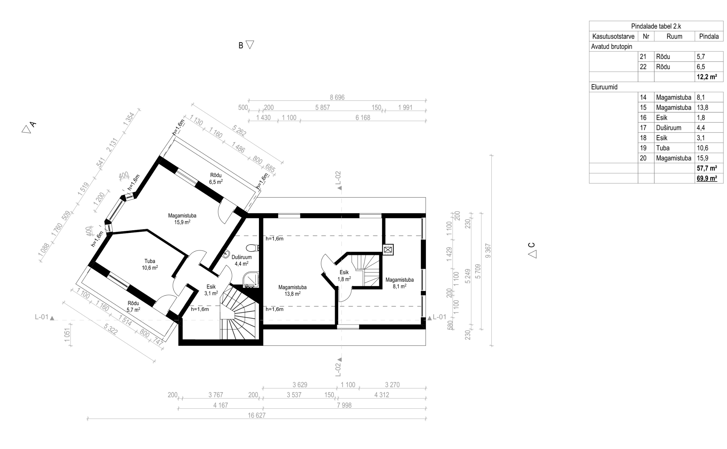
Teisel korrusel 13,8m2 magamistoas laudpõranda peale parkett panna ning seintele remondikips ja värv.

Kõrval väiksem 8,1m2 magamistuba lagi remondikipsiga katta ning kahte magamistuba ühendav lühem sein mõlemilt poolt remondikipsiga katta, sest see on selline kehva ajutine püssiplaatsein.

Teise korruse trepihall 1,8m2 vajab samuti värskendust, ilmselt mingis osas remondikipsi ja värvi samuti.

Puidust trepp tahaks samuti kerget lihvi ja lakki vmt, et näeks värskem välja.

Tarvis oleks juba augustis-septembris ära teha.

Pildid, video ja failid

Hanke korraldaja: eraisik ID70250

Pakkumised

Pakkumisi kokku: 3

Ettevõte Summa Käibemaks Lisatud Vestlus
Kasutaja ikoon ID65365
Pakkuja profiil Väike nool paremale
17 560€ Sisaldab KM Sisaldab KM 28.07.2022 Vestlus (2)
Kasutaja ikoon ID65125
Pakkuja profiil Väike nool paremale
16 500€ Ei ole KMKR Ei ole KMKR 30.07.2022 Vestlus (0)
Kasutaja ikoon ID70403
Pakkuja profiil Väike nool paremale
15 000€ Ei ole KMKR Ei ole KMKR 31.07.2022 Vestlus (0)

Küsimused hanke korraldajale

Hanke korraldajale ei ole veel küsimusi esitatud.

Lisa küsimus

Lisa küsimus

Minu pakkumine

Reeglid

Pakkumise kirjelduse väli on mõeldud pakkumise detailsemaks lahti kirjutamiseks. Pikema teksti mugavaks sisestamiseks klikkige kasti paremal ülaservas oleval ikoonil.
Pakkumist tehes on keelatud postitada enda kontaktandmeid (nimi, telefon, aadress jne). Me jälgime ja analüüsime pakkumisi, et vältida pettuseid ja reeglite rikkumisi.
Rikkumise puhul kasutajakonto blokeeritakse.

 

Teisi töid samas valdkonnas

Valdkonnas "Siseviimistlustööd" on 20 aktiivset tööd

Seinte pahteldus ja värvimine

Asukoht: Harjumaa, Türisalu
Aega jäänud: 2p 21h
Tehtud pakkumisi: 7

Korteri seinte ja lagede värvimine, osaline pahteldamine

Asukoht: Harjumaa, Tallinn
Aega jäänud: 21h 39 min
Tehtud pakkumisi: 5

Vanemad teated:

Vaata kõiki

Sellel veebilehel kasutatakse küpsiseid. Kasutamist jätkates nõustute küpsiste kasutamisega.

Sulge
 
Minu pakkumine

Reeglid

Pakkumise kirjelduse väli on mõeldud pakkumise detailsemaks lahti kirjutamiseks. Pikema teksti mugavaks sisestamiseks klikkige kasti paremal ülaservas oleval ikoonil.
Pakkumist tehes on keelatud postitada enda kontaktandmeid (nimi, telefon, aadress jne). Me jälgime ja analüüsime pakkumisi, et vältida pettuseid ja reeglite rikkumisi.
Rikkumise puhul kasutajakonto blokeeritakse.