+ Lisa oma töö      

Otsid ehitajat "Üldehitus" valdkonnast?

Parima pakkumise ja teostaja leidmiseks lisa oma töö.

Lintvundamendi ladumine 6x8 meetrit

ID 74541

461 vaatamist

Prindi

  • check Pakkumiste tegemine
    kuni 29.07.2022
  • check Võitja valik kuni
    05.08.2022
  • 3 Töö teostamine
    ja hinnang
Hanke lõpp: R, 29. juuli, 2022
Maakond: Põlvamaa
Linn: Põlva
Tööde algus: E, 01. august, 2022 (Soovituslik)
Tööde lõpp: K, 31. august, 2022 (Soovituslik)
Ehitusmaterjalid: Töö tegija poolt
Soovin pakkumisi: Summa kogu projektile

Töö sisu

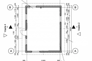
8000x6000mm vundamendi ladumine. Min 1.5 meetrit kõrge.

Kasutades FIBO5 või muud plokki, taldmik FIBO või betoon, vöö FIBO või betoon.

Soojustust, hüdrotõke jms paigaldama ei pea. Ainult müüri ladumine.

Krundil puudub elekter ning veevarustus. Tiik olemas kust saab segu jaoks vett.

Väljakaeve tehtud, vundamendi tagasitäide jms teostab klient

Pildid, video ja failid

Hanke korraldaja: eraisik ID49187

Pakkumised

Pakkumisi kokku: 2

Ettevõte Summa Käibemaks Lisatud Vestlus
Kasutaja ikoon ID38260
Pakkuja profiil Väike nool paremale
2 200€ KM lisandub KM lisandub 28.07.2022 Vestlus (0)

Pakkumise kirjeldus:

Pakkumine töörahal, kui sobib saab materjali juurde arvestada.

Kasutaja ikoon ID65365
Pakkuja profiil Väike nool paremale
15 789€ Ikoon kell Sisaldab KM Sisaldab KM 29.07.2022 Vestlus (2)

Küsimused hanke korraldajale

Hanke korraldajale ei ole veel küsimusi esitatud.

Lisa küsimus

Lisa küsimus

Minu pakkumine

Reeglid

Pakkumise kirjelduse väli on mõeldud pakkumise detailsemaks lahti kirjutamiseks. Pikema teksti mugavaks sisestamiseks klikkige kasti paremal ülaservas oleval ikoonil.
Pakkumist tehes on keelatud postitada enda kontaktandmeid (nimi, telefon, aadress jne). Me jälgime ja analüüsime pakkumisi, et vältida pettuseid ja reeglite rikkumisi.
Rikkumise puhul kasutajakonto blokeeritakse.

 

Teisi töid samas valdkonnas

Valdkonnas "Üldehitus" on 29 aktiivset tööd

Maja värvimine

Asukoht: Harjumaa, Saue
Aega jäänud: 1p 23h
Tehtud pakkumisi: 6

Vanemad teated:

Vaata kõiki

Sellel veebilehel kasutatakse küpsiseid. Kasutamist jätkates nõustute küpsiste kasutamisega.

Sulge
 
Minu pakkumine

Reeglid

Pakkumise kirjelduse väli on mõeldud pakkumise detailsemaks lahti kirjutamiseks. Pikema teksti mugavaks sisestamiseks klikkige kasti paremal ülaservas oleval ikoonil.
Pakkumist tehes on keelatud postitada enda kontaktandmeid (nimi, telefon, aadress jne). Me jälgime ja analüüsime pakkumisi, et vältida pettuseid ja reeglite rikkumisi.
Rikkumise puhul kasutajakonto blokeeritakse.