+ Lisa oma töö      

Otsid ehitajat "Kanalisatsioonitööd" valdkonnast?

Parima pakkumise ja teostaja leidmiseks lisa oma töö.

WC kanalitoru vedamine keldrist korterisse

ID 74475

364 vaatamist

Prindi

  • check Pakkumiste tegemine
    kuni 23.07.2022
  • check Võitja valik kuni
    30.07.2022
  • 3 Töö teostamine
    ja hinnang
Hanke lõpp: L, 23. juuli, 2022
Maakond: Harjumaa
Linn: Tallinn
Tööde algus: E, 25. juuli, 2022 (Soovituslik)
Tööde lõpp: E, 25. juuli, 2022 (Soovituslik)
Ehitusmaterjalid: Töö tegija poolt
Soovin pakkumisi: Summa kogu projektile

Töö sisu

WC kanalitoru vedamine korterisse. Püstak asub keldris, vaja on teostada teemantpuurimine läbi vundamendiseina (paekivi), et vedada toru korteri all paiknevasse ruumi. Sellest ruumist tuleb teostada uus puurimine korterisse, läbi vahelae (puitlaasttsementplaat vms). Toruotsale tuleb paigaldada kate.

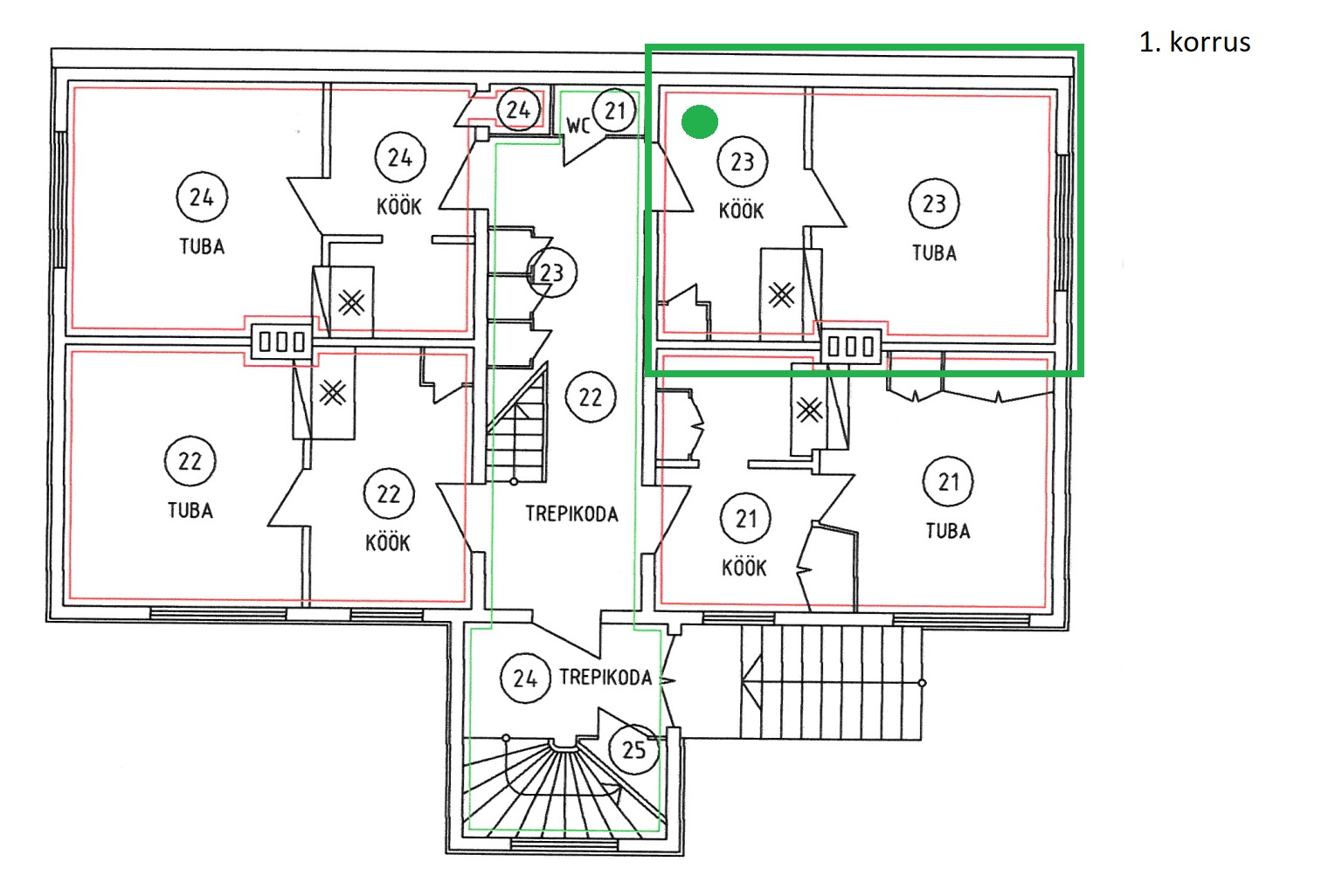
Lisatud pilt keldris olevast püstakust. Püstaku kõrval paremal pool paikneb vundamendisein, millele teematpuurimine teostada tuleb.
Lisatud ka joonised (punane ring - püstaku asukoht, nooled - näitavad puurimise suunda, roheline ring - kanalitoru otsa tulevane asukoht korteris).

Tööde teostaja ülesandeks jääb vajadusel ka naabrite (kes kasutavad sama püstakut) teavitamine teostatavatest töödest.

Tegemist on kahekorruselise puumajaga Kalamajas, korter asub 1. korrusel.

Pildid, video ja failid

Hanke korraldaja: ettevõte ID44925

Pakkumised

Pakkumisi kokku: 4

Ettevõte Summa Käibemaks Lisatud Vestlus
Kasutaja ikoon ID9009
Pakkuja profiil Väike nool paremale
1 870€ KM lisandub KM lisandub 23.07.2022 Vestlus (0)
Kasutaja ikoon ID28394
Pakkuja profiil Väike nool paremale
1 450€ Sisaldab KM Sisaldab KM 23.07.2022 Vestlus (0)

Pakkumise kirjeldus:

Kanali paigaldus keldrist korterini , koos puurimiste ja materjalidega.

Kasutaja ikoon ID68017
Pakkuja profiil Väike nool paremale
1 300€ Sisaldab KM Sisaldab KM 23.07.2022 Vestlus (0)

Pakkumise kirjeldus:

Tere.
Saame tulla 31.07
Töö teeme kiirelt ja korralikult.
Parimatega
Arthur

Kasutaja ikoon ID44695
Pakkuja profiil Väike nool paremale
1 250€ Sisaldab KM Sisaldab KM 23.07.2022 Vestlus (0)

Pakkumise kirjeldus:

Tere,

Pakkumine sisaldab puurimistööd, materjali ja kanalisatsiooni paigaldust korterini. Garantii tööle 5a.

Küsimused hanke korraldajale

Hanke korraldajale ei ole veel küsimusi esitatud.

Lisa küsimus

Lisa küsimus

Minu pakkumine

Reeglid

Pakkumise kirjelduse väli on mõeldud pakkumise detailsemaks lahti kirjutamiseks. Pikema teksti mugavaks sisestamiseks klikkige kasti paremal ülaservas oleval ikoonil.
Pakkumist tehes on keelatud postitada enda kontaktandmeid (nimi, telefon, aadress jne). Me jälgime ja analüüsime pakkumisi, et vältida pettuseid ja reeglite rikkumisi.
Rikkumise puhul kasutajakonto blokeeritakse.

 

Teisi töid samas valdkonnas

Valdkonnas "Kanalisatsioonitööd" on 2 aktiivset tööd

Kaevetööd, 8 m³ kogumismahuti paigaldus ja trassid - Juminda küla

Asukoht: Harjumaa, Juminda
Aega jäänud: 6p 21h
Tehtud pakkumisi: 0

no-img Pilt puudub

Veevarustuse- ja kanalisatsiooniinsener, tase 6 MTR registreering

Asukoht: Pärnumaa, Pärnu
Aega jäänud: 12p 21h
Tehtud pakkumisi: 0

Vanemad teated:

Vaata kõiki

Sellel veebilehel kasutatakse küpsiseid. Kasutamist jätkates nõustute küpsiste kasutamisega.

Sulge
 
Minu pakkumine

Reeglid

Pakkumise kirjelduse väli on mõeldud pakkumise detailsemaks lahti kirjutamiseks. Pikema teksti mugavaks sisestamiseks klikkige kasti paremal ülaservas oleval ikoonil.
Pakkumist tehes on keelatud postitada enda kontaktandmeid (nimi, telefon, aadress jne). Me jälgime ja analüüsime pakkumisi, et vältida pettuseid ja reeglite rikkumisi.
Rikkumise puhul kasutajakonto blokeeritakse.