+ Lisa oma töö      

Otsid ehitajat "Fassaaditööd" valdkonnast?

Parima pakkumise ja teostaja leidmiseks lisa oma töö.

Eramaja soojustus, fasaadi tööd ja katuse vahetamine.

ID 74291

519 vaatamist

Prindi

  • check Pakkumiste tegemine
    kuni 13.08.2022
  • check Võitja valik kuni
    20.08.2022
  • 3 Töö teostamine
    ja hinnang
Hanke lõpp: L, 13. august, 2022
Maakond: Harjumaa
Linn: Tallinn
Tööde algus: E, 18. juuli, 2022 (Soovituslik)
Tööde lõpp: P, 30. aprill, 2023 (Soovituslik)
Ehitusmaterjalid: Töö tellija poolt
Soovin pakkumisi: Summa kogu projektile

Töö sisu

Elamu on miljööväärtuslikus alas, aga väheväärtuslikuks tunnistatud (mitte muinsuskaitse alune). Elamu põhimahule kavandatakse lisasoojustuseks jäik mineraalvill. Vaja eemaldada vana pritskrohv ning teise korruse otsaviiludel ja vintskappidel teppplaat koos krohviga. Hoone väljast soojustamisel taastatakse sokli, räästakarniisi ja portaali ning teiste arhitektuursete detailide iseloomulik eenduvus.
Eenduvuse tagamiseks kasutatakse vajadusel erineva paksusega soojustust. Välisseinad krohvitakse lubitsemendist silekrohviga ja värvitakse halli värvi.
Krohvitud fassaadidel taastatakse väljast varasem akende taanduvus fassaadipinnast. Juurdeehituse viimistlemiseks kasutakse põhimahule sarnaselt lubitsemendist silekrohvi.
Välisseinad on 1933 aasta betoonblokidest, millel on õhutaskud sees, seega koht, kuhu kinnitusi panna võib olla vaid 40mm paks. Pilt tehtud ka plokkide ristlõikest ja asetusest! Juurdeehituse köök/vannituba seinad on tellistest ja garaazi seinad on fibost laotud.

Soklit saab soojustada kuni 500mm maa sisse. Avastasin, et vundamendil on taldmik valatud 200mm laialt. See ei ole ka kindel info sest tervet vundamenti ma lahti ei kaevanud. Kaevasin maja nurgast vaid 1 meeter lahti uue elektri kaabli paigalduseks.
Õhksoojuspumpade ringi tõstmine tuleks teha peale sokli soojustust.
Hetkel on seinapeal, aga selle jaoks leian ka vastavad inimesed kes selle ringi tõstavad ja uued torud panevad.

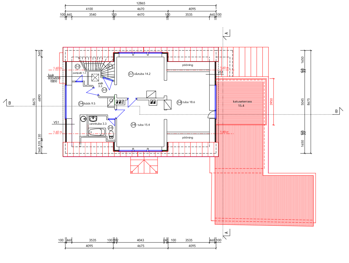
Teisel korrusel on kunagi olnud katuse terass mida tahaks taastada. Uus katuseterass tuleb katuse peale teras raamist/raamidest (soovitavalt poltlahendusena). See on ka selline kokkuleppe küsimus ehitajaga. Võin ka ise leida asjaliku metalli firma.

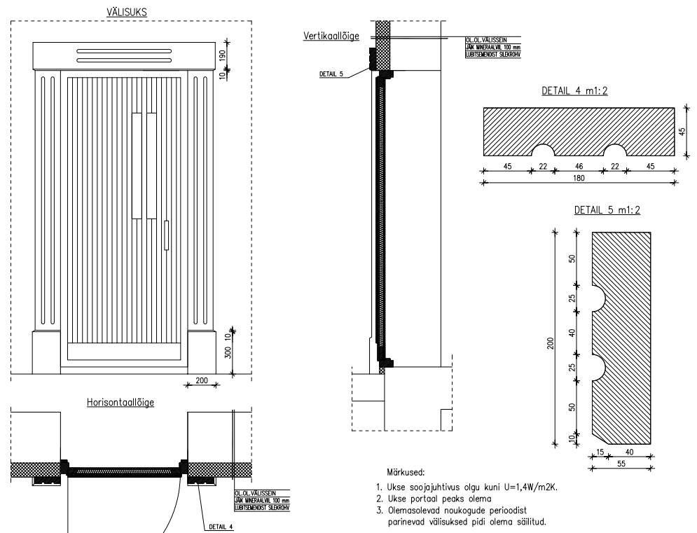
Uued aknad on tellitud vastavalt projektile. Akende valmimis tähtaeg on 2022 oktoober/november.
Plastikaknad vahetuvad välja puitakende vastu. Keldriaknad samuti tulevad uued puitaknad ja on vaja paigutada välisviimistluse tasapinna suhtes samale kaugusele.
Juurdeehituse aknad tuleb paigutada välisviimistluse tasapinna suhtes samale kaugusele kui põhimahu aknad.
Juurdeehituse tummseina liigendamiseks kavandatakse põhimahu traditsionalistliku arhitektuuriga arvestavad avatäited ja krohviraamistus.

Põhimaja eterniit katus eemaldada ja üle vaadata katuse talad. Vajadusel plommida. Eterniidi all on vana kivikatuse 45x45 prussidest roovitus. Vajadusel lisada uut roovitust või vana üldse välja vahetada. Katuse soojustus on hetkel liiv mis oleks vaja vahetada puistematerjali või mõne teise villa soojustuse vastu (200 kuni 300mm horisontaalselt ja 100 kuni 150mm vertikaal pindadel).
Juurdeehituse katusekatteks on ette nähtud kleephüdroisolatsioon ja rullkatus. Hetkel ajutise lahendusena tehtud ja tuleks kontrollida ning mingi tasemeni vahetada. Pigem tundub kuni prussideni lahti võtta.
Uus katus tuleb valtsplekk või selle immitatsioon.
Ruuki classic või Weckman valtsprofiil (või midagi muud).

Garaaz
Katus kindlasti kõik maha võtta. Uued talad 50x200 ja uus katuse kate rullmaterjalist.
Sillused akendele (fibo või aeroc) ja uksele kas kohapeal valada sillus või tellida (3,5 meetrit pikk 150mm lai) sillus.
Hetkel keskmine post kõveralt laotud (üks nurk kaardub ülevalt ühelt poolt 15mm sissepoole) ja võibolla vaja uuesti laduda. Ja akende vahele kaks posti juurde laduda.

Keldri akende ümbert tellisest tehtud kastid asendada kas uute tellistest laotud kastidega või siis peale akende vahetust valada betoonist kastid.

Prügi ära viimine kokkuleppeline. Multiliftiga pääseb ligi ja saab konterineri aeda parkida. Võin ka ise vabalt ära viia.

Mõõdud ja mahud on plaanidel olemas. Küsige julgelt lisaküsimusi - üldises jutus ei osanud võib-olla kõiki olulisi detaile ise lisada.
Juurde ehituses vaja vannituba ja saun ka ehitada valmis. Aga see on hetkel teisejärguline.

Võin vabalt õhtuti ja nädala vahetusel ise olla abitööjõuks.

Ärge küsige miks ma ise ei ehita. :D Lihtsalt ei ole seda teadmist piisavalt ja üksi ei jõua!

Pildid, video ja failid

Hanke korraldaja: eraisik ID50858

Pakkumised

Pakkumisi kokku: 0

Küsimused hanke korraldajale

Küsimus: private ID50648   15.07.2022 07:11
Tere, saaksime aidata garaazi katusega, tegeleme igapäevaselt lamekatustega.

Soovitav oleks teha eraldi hange katusetöödeks

Teavita reeglite rikkumisest

Korraldaja vastus: 17.07.2022 23:26

Tere. Mõte on hea, aga sõlmede keerukus on minu arust liiga keeruline, et teha eraldi. Vaja oleks teha korraga ja kõigele mõeldes.
Aga võite teha lamekatuse jaoks eraldi pakkumise ka. Kui erinevate tööde spetsialistid saavad sõlmede osas kokkuleppele, siis ei näe ma ka probleemi miks ei saaks mitu firmat korraga teha tervet maja.

Teavita reeglite rikkumisest

Küsimus: private ID69364   17.07.2022 19:02
Tere,
Palju katusel on ruute?

Teavita reeglite rikkumisest

Korraldaja vastus: 17.07.2022 23:28

Viilkatuse ja vintskapi osa 200 kuni 220 umbes täpselt.
Lamekatust 50-60 ruutmeetrit

Teavita reeglite rikkumisest

Lisa küsimus

Lisa küsimus

Minu pakkumine

Reeglid

Pakkumise kirjelduse väli on mõeldud pakkumise detailsemaks lahti kirjutamiseks. Pikema teksti mugavaks sisestamiseks klikkige kasti paremal ülaservas oleval ikoonil.
Pakkumist tehes on keelatud postitada enda kontaktandmeid (nimi, telefon, aadress jne). Me jälgime ja analüüsime pakkumisi, et vältida pettuseid ja reeglite rikkumisi.
Rikkumise puhul kasutajakonto blokeeritakse.

 

Teisi töid samas valdkonnas

Valdkonnas "Fassaaditööd" on 12 aktiivset tööd

Akende ja viilude parandus ja värvimine

Asukoht: Valgamaa, Valga
Aega jäänud: 8h 59 min
Tehtud pakkumisi: 3

Eramaja vintskapide laudise paigaldus

Asukoht: Pärnumaa, Pärnu-Jaagupi
Aega jäänud: 9p 8h
Tehtud pakkumisi: 2

Vanemad teated:

Vaata kõiki

Sellel veebilehel kasutatakse küpsiseid. Kasutamist jätkates nõustute küpsiste kasutamisega.

Sulge
 
Minu pakkumine

Reeglid

Pakkumise kirjelduse väli on mõeldud pakkumise detailsemaks lahti kirjutamiseks. Pikema teksti mugavaks sisestamiseks klikkige kasti paremal ülaservas oleval ikoonil.
Pakkumist tehes on keelatud postitada enda kontaktandmeid (nimi, telefon, aadress jne). Me jälgime ja analüüsime pakkumisi, et vältida pettuseid ja reeglite rikkumisi.
Rikkumise puhul kasutajakonto blokeeritakse.