+ Lisa oma töö      

Otsid ehitajat "Üldehitus" valdkonnast?

Parima pakkumise ja teostaja leidmiseks lisa oma töö.

Baurocist kõrvalhoone ehitus

ID 74158

723 vaatamist

Prindi

  • check Pakkumiste tegemine
    kuni 10.08.2022
  • check Võitja valik kuni
    17.08.2022
  • 3 Töö teostamine
    ja hinnang
Hanke lõpp: K, 10. august, 2022
Maakond: Harjumaa
Muu asula: Vaela
Tööde algus: N, 01. september, 2022 (Soovituslik)
Tööde lõpp: K, 01. märts, 2023 (Soovituslik)
Ehitusmaterjalid: Töö tellija poolt
Soovin pakkumisi: Summa kogu projektile

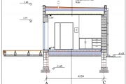
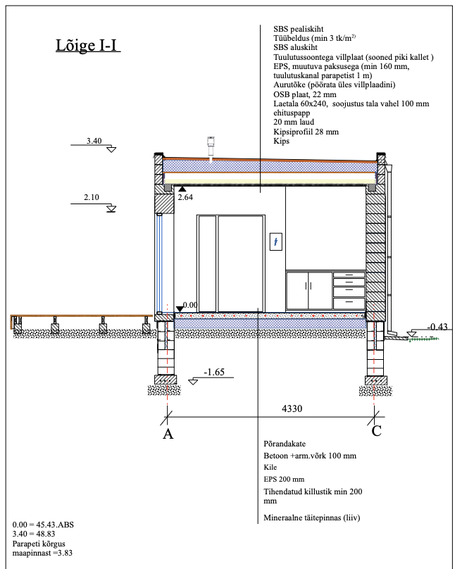
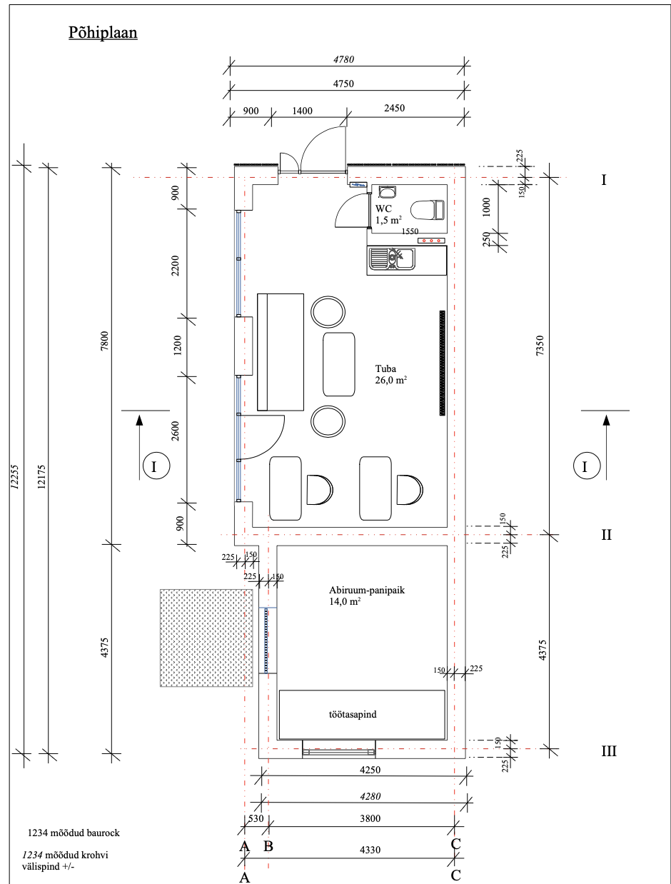
Töö sisu

Kõrvalhoone on 58m2, millest 2/3 moodustab kontorituba ning ülejäänud on soe kuur. Hoones on ka wc ning kööginurk.

Siin on ka materjalide mahutabel:
fibo 300 mm 340 tk
fibo 150 mm 506 tk
BR 375 e+ 710tk
BR U 375e+  84tk
BR 150 mm 180tk
sillused:
3000x375x400    1
3600x375x400    1
2000x372x200    2

Betoon (aluspõrand ja vundamendi taldmik) 8 m3 
Killustik 16 m3 
Liiv 25 m3 

OSB plaat 46 m2 +46 m2 (alumise võib asendada lauaga, aga pragu vist osb kiirem kätte saada), ülemise paksus 22 mm, alumine võib olla õhem.
EPS (katuslaele, põranda alla, vundamendi sisse ja sillutusriba alla)21 m3
Jäik villplaat tuulutussoontega 30 mm 46 m2  (1,4 m3)
Klaassvill 4,5 m3
Laetalad 21 tk 240x60x4,5   (1,4 tm)

PS!! Torutööd ja siseviimistluse teeme ise.

Pildid, video ja failid

Hanke korraldaja: eraisik ID70074

Pakkumised

Pakkumisi kokku: 1

Ettevõte Summa Käibemaks Lisatud Vestlus
Kasutaja ikoon ID50594
Pakkuja profiil Väike nool paremale
45 000€ KM lisandub KM lisandub 09.08.2022 Vestlus (0)

Pakkumise kirjeldus:

Tere,

Hinnapakkumine koostatud vastavalt hanke kirjeldusele.
Võimalus tasuda osaliselt ilma KM.

Lgp. Taivo

Küsimused hanke korraldajale

Hanke korraldajale ei ole veel küsimusi esitatud.

Lisa küsimus

Lisa küsimus

Minu pakkumine

Reeglid

Pakkumise kirjelduse väli on mõeldud pakkumise detailsemaks lahti kirjutamiseks. Pikema teksti mugavaks sisestamiseks klikkige kasti paremal ülaservas oleval ikoonil.
Pakkumist tehes on keelatud postitada enda kontaktandmeid (nimi, telefon, aadress jne). Me jälgime ja analüüsime pakkumisi, et vältida pettuseid ja reeglite rikkumisi.
Rikkumise puhul kasutajakonto blokeeritakse.

 

Teisi töid samas valdkonnas

Valdkonnas "Üldehitus" on 27 aktiivset tööd

Terassi õlitamine, 13,7 ruutu

Asukoht: Harjumaa, Saue
Aega jäänud: 5p 17h
Tehtud pakkumisi: 4

Eramaja ehitus

Asukoht: Harjumaa, Suurupi
Aega jäänud: 4p 17h
Tehtud pakkumisi: 4

Vanemad teated:

Vaata kõiki

Sellel veebilehel kasutatakse küpsiseid. Kasutamist jätkates nõustute küpsiste kasutamisega.

Sulge
 
Minu pakkumine

Reeglid

Pakkumise kirjelduse väli on mõeldud pakkumise detailsemaks lahti kirjutamiseks. Pikema teksti mugavaks sisestamiseks klikkige kasti paremal ülaservas oleval ikoonil.
Pakkumist tehes on keelatud postitada enda kontaktandmeid (nimi, telefon, aadress jne). Me jälgime ja analüüsime pakkumisi, et vältida pettuseid ja reeglite rikkumisi.
Rikkumise puhul kasutajakonto blokeeritakse.