+ Lisa oma töö      

Otsid ehitajat "Üldehitus" valdkonnast?

Parima pakkumise ja teostaja leidmiseks lisa oma töö.

Katusega rõdu kinni ehitamine tubadeks

ID 73806

335 vaatamist

Prindi

  • check Pakkumiste tegemine
    kuni 14.07.2022
  • check Võitja valik kuni
    21.07.2022
  • 3 Töö teostamine
    ja hinnang
Hanke lõpp: N, 14. juuli, 2022
Maakond: Harjumaa
Muu asula: Pringi
Tööde algus: E, 18. juuli, 2022 (Soovituslik)
Tööde lõpp: E, 31. oktoober, 2022 (Soovituslik)
Ehitusmaterjalid: Töö tegija poolt
Soovin pakkumisi: Summa kogu projektile

Töö sisu

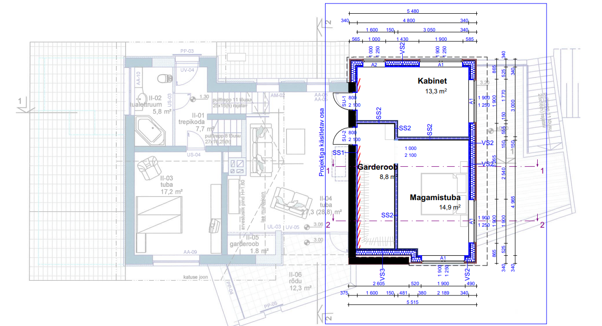
Soovime ehitada umbes 40 m2 suuruse katusega rõdu kinni tubadeks.

Olemasoleva katuse saab säilutada kuid see tuleks soojustada.
Päringule on lisatud pildid ning plaani ja vaadete eskiis.

Soovin hinnapiaakumise näol saada maksumuse suurusjärku, kus on erinevad suuremad tööd lahku löödud.

Ehitusmaterjalide hind peaks olema hinna sees. Va uksed ja aknad.

Pakkumine peaks sisaldama nii uute seinte ehitust, fassaadi töid, põrandate valamist, soojustust, ventilatsiooni ühendamist (saab tuua läbi seinte kõrval asuvast toast), siseviimistlustöid, akende ja uste paigaldust.

Tööd, mis antud pakkumise alla ei kuulu:
* Kütte elementide paigaldus (põranda küte), teostab küttefirma
* Elektritööd ja kaabeldus , teostab eraldi ettevõte

Palun kommentaarina lisada ka võimalik tööde teostamise aeg. Meie ootus oleks saada seinad üles ja aknad ette ja küte paigaldatud enne intensiivsema kütteperioodi algust.

Pildid, video ja failid

Hanke korraldaja: eraisik ID49611

Pakkumised

Pakkumisi kokku: 1

Ettevõte Summa Käibemaks Lisatud Vestlus
Kasutaja ikoon ID40056
Pakkuja profiil Väike nool paremale
35 000€ KM lisandub KM lisandub 09.07.2022 Vestlus (0)

Küsimused hanke korraldajale

Hanke korraldajale ei ole veel küsimusi esitatud.

Lisa küsimus

Lisa küsimus

Minu pakkumine

Reeglid

Pakkumise kirjelduse väli on mõeldud pakkumise detailsemaks lahti kirjutamiseks. Pikema teksti mugavaks sisestamiseks klikkige kasti paremal ülaservas oleval ikoonil.
Pakkumist tehes on keelatud postitada enda kontaktandmeid (nimi, telefon, aadress jne). Me jälgime ja analüüsime pakkumisi, et vältida pettuseid ja reeglite rikkumisi.
Rikkumise puhul kasutajakonto blokeeritakse.

 

Teisi töid samas valdkonnas

Valdkonnas "Üldehitus" on 30 aktiivset tööd

Maja värvimine

Asukoht: Harjumaa, Saue
Aega jäänud: 2p 6h
Tehtud pakkumisi: 5

Terassi õlitamine, 13,7 ruutu

Asukoht: Harjumaa, Saue
Aega jäänud: 5p 6h
Tehtud pakkumisi: 5

Vanemad teated:

Vaata kõiki

Sellel veebilehel kasutatakse küpsiseid. Kasutamist jätkates nõustute küpsiste kasutamisega.

Sulge
 
Minu pakkumine

Reeglid

Pakkumise kirjelduse väli on mõeldud pakkumise detailsemaks lahti kirjutamiseks. Pikema teksti mugavaks sisestamiseks klikkige kasti paremal ülaservas oleval ikoonil.
Pakkumist tehes on keelatud postitada enda kontaktandmeid (nimi, telefon, aadress jne). Me jälgime ja analüüsime pakkumisi, et vältida pettuseid ja reeglite rikkumisi.
Rikkumise puhul kasutajakonto blokeeritakse.