+ Lisa oma töö      

Otsid ehitajat "Katusetööd" valdkonnast?

Parima pakkumise ja teostaja leidmiseks lisa oma töö.

Kivikatuse ehitus palkmajale

ID 73431

404 vaatamist

Prindi

  • check Pakkumiste tegemine
    kuni 05.07.2022
  • check Võitja valik kuni
    12.07.2022
  • 3 Töö teostamine
    ja hinnang
Hanke lõpp: T, 5. juuli, 2022
Maakond: Tartumaa
Muu asula: Läti
Tööde algus: E, 20. juuni, 2022 (Soovituslik)
Tööde lõpp: K, 31. august, 2022 (Soovituslik)
Ehitusmaterjalid: Töö tellija poolt
Soovin pakkumisi: Summa kogu projektile

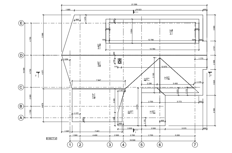
Töö sisu

Soov leida ehitaja kivikatusele. Puitmaterjal ja kivid on olemas. Kogu pind ca 400m2.

Pildid, video ja failid

Hanke korraldaja: ettevõte ID69699

Pakkumised

Pakkumisi kokku: 2

Ettevõte Summa Käibemaks Lisatud Vestlus
Kasutaja ikoon ID69364
Pakkuja profiil Väike nool paremale
8 000€ Sisaldab KM Sisaldab KM 15.06.2022 Vestlus (6)

Pakkumise kirjeldus:

Tere,
hind sisaldab kõiki töid mis katuse paigaldusse kuulub.

Kasutaja ikoon ID66095
Pakkuja profiil Väike nool paremale
6 800€ Sisaldab KM Sisaldab KM 16.06.2022 Vestlus (1)

Küsimused hanke korraldajale

Küsimus: private ID67285   04.07.2022 23:13
Tere ! kas sarikad tuleb ise paigaldada nagu näha esimestelt piltidelt .




Lugupidamisega reino

Teavita reeglite rikkumisest

Korraldaja vastus:
Hanke korraldaja ei ole küsimusele veel vastanud

Lisa küsimus

Lisa küsimus

Minu pakkumine

Reeglid

Pakkumise kirjelduse väli on mõeldud pakkumise detailsemaks lahti kirjutamiseks. Pikema teksti mugavaks sisestamiseks klikkige kasti paremal ülaservas oleval ikoonil.
Pakkumist tehes on keelatud postitada enda kontaktandmeid (nimi, telefon, aadress jne). Me jälgime ja analüüsime pakkumisi, et vältida pettuseid ja reeglite rikkumisi.
Rikkumise puhul kasutajakonto blokeeritakse.

 

Teisi töid samas valdkonnas

Valdkonnas "Katusetööd" on 9 aktiivset tööd

no-img Pilt puudub

Käidava katuse PVC 54m2

Asukoht: Harjumaa, Muraste
Aega jäänud: 4p 11h
Tehtud pakkumisi: 3

Garaaži katuse vahetamine

Asukoht: Harjumaa, Viimsi
Aega jäänud: 13p 11h
Tehtud pakkumisi: 2

Vanemad teated:

Vaata kõiki

Sellel veebilehel kasutatakse küpsiseid. Kasutamist jätkates nõustute küpsiste kasutamisega.

Sulge
 
Minu pakkumine

Reeglid

Pakkumise kirjelduse väli on mõeldud pakkumise detailsemaks lahti kirjutamiseks. Pikema teksti mugavaks sisestamiseks klikkige kasti paremal ülaservas oleval ikoonil.
Pakkumist tehes on keelatud postitada enda kontaktandmeid (nimi, telefon, aadress jne). Me jälgime ja analüüsime pakkumisi, et vältida pettuseid ja reeglite rikkumisi.
Rikkumise puhul kasutajakonto blokeeritakse.