+ Lisa oma töö      

Otsid ehitajat "Siseviimistlustööd" valdkonnast?

Parima pakkumise ja teostaja leidmiseks lisa oma töö.

Saunaruumi väljaehitamine

ID 73416

457 vaatamist

Prindi

  • check Pakkumiste tegemine
    kuni 29.06.2022
  • check Võitja valik kuni
    06.07.2022
  • 3 Töö teostamine
    ja hinnang
Hanke lõpp: K, 29. juuni, 2022
Maakond: Harjumaa
Linn: Tallinn
Tööde algus: L, 30. juuli, 2022 (Soovituslik)
Tööde lõpp: K, 30. november, 2022 (Soovituslik)
Ehitusmaterjalid: Töö tellija poolt
Soovin pakkumisi: Summa kogu projektile

Töö sisu

Saunaruumi väljaehitamine Nõmmel

Pildid, video ja failid

Hanke korraldaja: eraisik ID52318

Pakkumised

Pakkumisi kokku: 3

Ettevõte Summa Käibemaks Lisatud Vestlus
Kasutaja ikoon ID3527
Pakkuja profiil Väike nool paremale
3 500€ KM lisandub KM lisandub 18.06.2022 Vestlus (0)

Pakkumise kirjeldus:

Tere!
Omame pikaajalist kogemust ehitus valdkonnas, seega töö kiire ja kvaliteetne. Töid teostame hingega ning objekti anname üle puhtana!
Pakkumises on arvestatud kõigi kuludega.

Lugupidamisega,
JM

Kasutaja ikoon ID66826
Pakkuja profiil Väike nool paremale
2 650€ Ei ole KMKR Ei ole KMKR 20.06.2022 Vestlus (0)

Pakkumise kirjeldus:

Hind ei sisalda plaatimistöid ega elektritöid.
Selliseid töid, nagu teil teha on vaja tuleks ideaalis koos maha istuda, materjalid ja muu läbirääkida ja siis töösse.
Aga usun, et minu pakutud hinnaga peaks välja tulema igal juhul.
Parimat

Kasutaja ikoon ID40056
Pakkuja profiil Väike nool paremale
3 000€ Ikoon kell Sisaldab KM Sisaldab KM 21.06.2022 Vestlus (0)

Pakkumise kirjeldus:

Materjal pole hinnas. Palun valida meid ainult juhul kui töid soovitakse ka reaalselt teostada.
Lp Martin

Ehitame saunu igapäevaselt. Pildid hange.ee galeriis.

Küsimused hanke korraldajale

Küsimus: private ID66332   15.06.2022 15:24
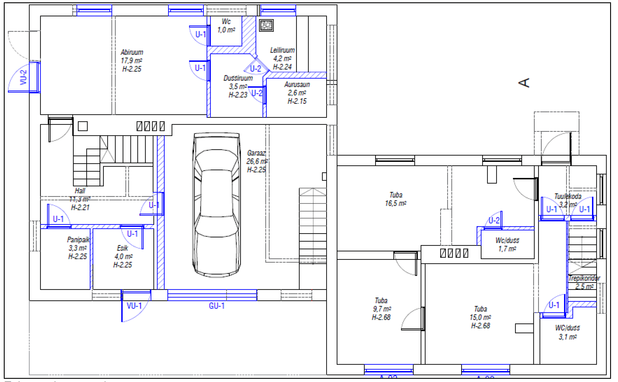
Kas välja tuleb ehitada ainult leiliruum (4.4m2) või lisaks ka aurusaun (2.6m2) ja dushiruum (3.5m2), WC (1.0m2)?

Teavita reeglite rikkumisest

Korraldaja vastus: 15.06.2022 19:38

Tere
Aurusaun ja duširuum on välja ehitatud, ka sauna üks on paigaldatud lisan pildi kus vasak klaariks on leiliruumi asukoht

Teavita reeglite rikkumisest

Küsimus: private ID66826   16.06.2022 07:36
Tere
Töö hind sõltub leiliruumi keerukusest, ehk arusaamatuste vältimiseks paluksin teil leiliruumi planeeritavat sisemust võimalikult täpselt kirjeldada, seda alates soovitud materjalidest kuni valgustuse ja muude erilahendusteni(kui neid on)
Seniks,
Parimat

Teavita reeglite rikkumisest

Korraldaja vastus: 18.06.2022 01:29

Ei ole erisoove, võiks normaalne välja näha ja mingi LED valgustus olla.
Materjali osas: pole ise ehitaja ja ei oska midagi välja pakkuda

Teavita reeglite rikkumisest

Küsimus: private ID10919   26.06.2022 20:18
Tere. Saan õigesti aru , et ainult leiliruum vaja ehitada? Ja soovtuslik aeg kuni nov. lõpp? Lgp.

Teavita reeglite rikkumisest

Korraldaja vastus:
Hanke korraldaja ei ole küsimusele veel vastanud

Lisa küsimus

Lisa küsimus

Minu pakkumine

Reeglid

Pakkumise kirjelduse väli on mõeldud pakkumise detailsemaks lahti kirjutamiseks. Pikema teksti mugavaks sisestamiseks klikkige kasti paremal ülaservas oleval ikoonil.
Pakkumist tehes on keelatud postitada enda kontaktandmeid (nimi, telefon, aadress jne). Me jälgime ja analüüsime pakkumisi, et vältida pettuseid ja reeglite rikkumisi.
Rikkumise puhul kasutajakonto blokeeritakse.

 

Teisi töid samas valdkonnas

Valdkonnas "Siseviimistlustööd" on 20 aktiivset tööd

Seinte pahteldus ja värvimine

Asukoht: Harjumaa, Türisalu
Aega jäänud: 2p 21h
Tehtud pakkumisi: 7

Korteri seinte ja lagede värvimine, osaline pahteldamine

Asukoht: Harjumaa, Tallinn
Aega jäänud: 21h 41 min
Tehtud pakkumisi: 5

Vanemad teated:

Vaata kõiki

Sellel veebilehel kasutatakse küpsiseid. Kasutamist jätkates nõustute küpsiste kasutamisega.

Sulge
 
Minu pakkumine

Reeglid

Pakkumise kirjelduse väli on mõeldud pakkumise detailsemaks lahti kirjutamiseks. Pikema teksti mugavaks sisestamiseks klikkige kasti paremal ülaservas oleval ikoonil.
Pakkumist tehes on keelatud postitada enda kontaktandmeid (nimi, telefon, aadress jne). Me jälgime ja analüüsime pakkumisi, et vältida pettuseid ja reeglite rikkumisi.
Rikkumise puhul kasutajakonto blokeeritakse.