+ Lisa oma töö      

Otsid ehitajat "Küttesüsteemid" valdkonnast?

Parima pakkumise ja teostaja leidmiseks lisa oma töö.

Radikate paigaldus

ID 73394

633 vaatamist

Prindi

  • check Pakkumiste tegemine
    kuni 28.06.2022
  • check Võitja valik kuni
    05.07.2022
  • 3 Töö teostamine
    ja hinnang
Hanke lõpp: T, 28. juuni, 2022
Maakond: Harjumaa
Muu asula: Järveküla
Tööde algus: E, 20. juuni, 2022 (Soovituslik)
Tööde lõpp: E, 04. juuli, 2022 (Soovituslik)
Ehitusmaterjalid: Töö tellija poolt
Soovin pakkumisi: Summa kogu projektile

Töö sisu

Vaja paigaldada seina ja ühendada 4 radikat. Radikad Purmo Ventil Compact CV22. Radikad ja nende jalad on olemas.

Ühendamiseks vajalik materjal pakkuja poolt.

Lisaks vaja utiliseerida 2 vanat radika, mis hetke ühendatud.

Küttesüsteemiks on maakütte!!!

Kpv paindlik

Pildid, video ja failid

Hanke korraldaja: eraisik ID69676

Pakkumised

Pakkumisi kokku: 2

Ettevõte Summa Käibemaks Lisatud Vestlus
Kasutaja ikoon ID44695
Pakkuja profiil Väike nool paremale
960€ KM lisandub KM lisandub 15.06.2022 Vestlus (0)

Pakkumise kirjeldus:

Tere,

Hind sisaldab paigaldus& toruliitmikud

Kasutaja ikoon ID50618
Pakkuja profiil Väike nool paremale
640€ KM lisandub KM lisandub 27.06.2022 Vestlus (2)

Pakkumise kirjeldus:

Hind sisaldab:
- 4 radiaatori paigaldust
- 4 radiaatori ühendused olemasoleva torustikuga
- vanade radiaatorite utiliseerimine
- saab tasuda ilma km
Teha saame juuli teisel poolel.

Küsimused hanke korraldajale

Küsimus: private ID50618   15.06.2022 20:01
Tere.
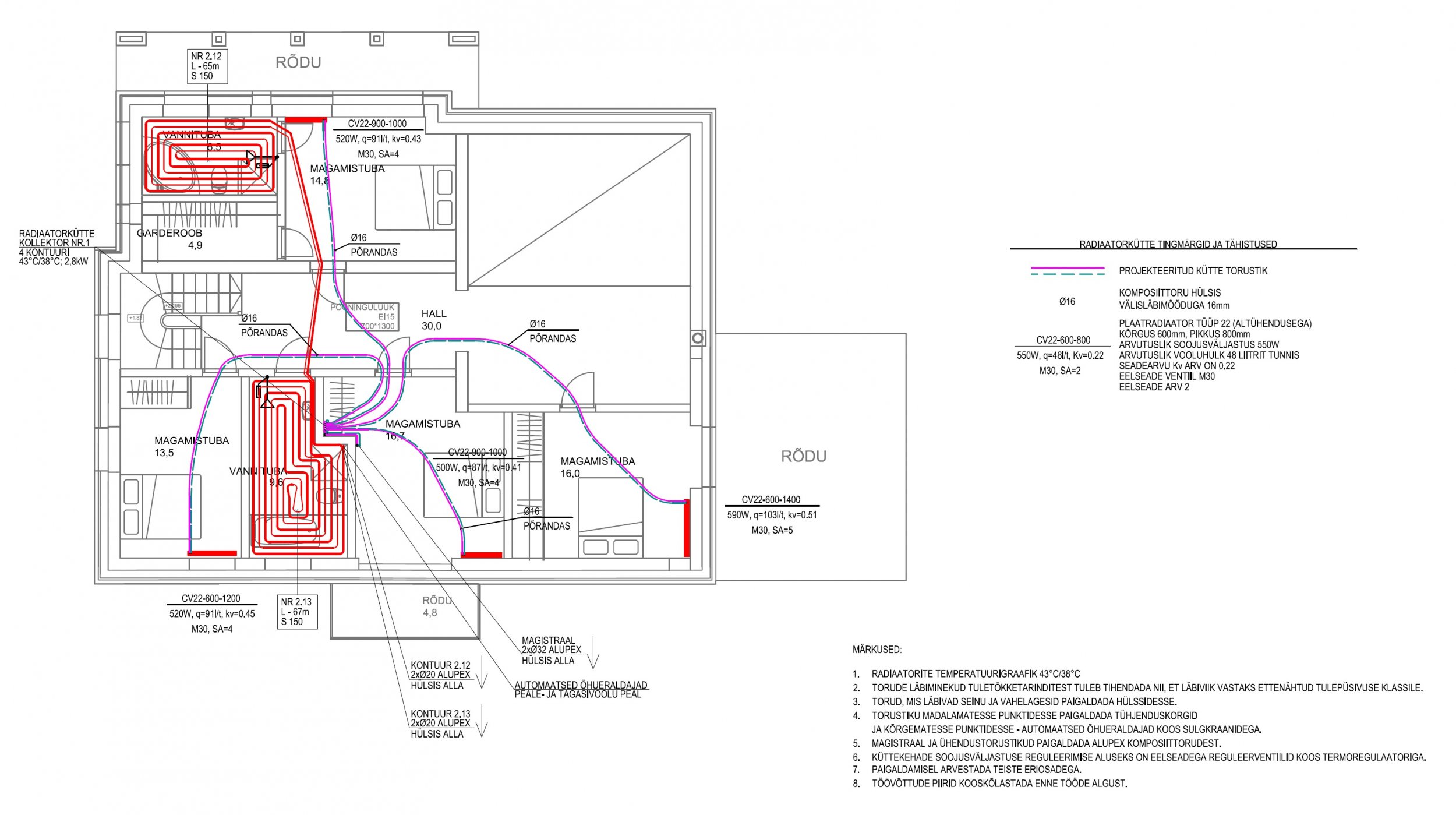
Kas torud põrandas toodud ära paigalduskohtadesse?
Termostaadid ja sulgelemendid olemas?

Teavita reeglite rikkumisest

Korraldaja vastus: 15.06.2022 20:59

Termostaate ei ole ja ei ole ka vaja paigaldada, nende asemel plaanis paigaldada endal hiljem ajamid.
Torud on põranda seest juba veetud vaja ainult ühendada ja seina paigaldada vt pilt 2 parketti sees.
Mida mõtlete sulgelementide all ? Kui radikasse veeringluse sulgemist siis torud on ühendatud kollektoriga , kus võimalik ringlus kinni keerata. Lisasin pildi hankesse juurde kollektorist.

Teavita reeglite rikkumisest

Lisa küsimus

Lisa küsimus

Minu pakkumine

Reeglid

Pakkumise kirjelduse väli on mõeldud pakkumise detailsemaks lahti kirjutamiseks. Pikema teksti mugavaks sisestamiseks klikkige kasti paremal ülaservas oleval ikoonil.
Pakkumist tehes on keelatud postitada enda kontaktandmeid (nimi, telefon, aadress jne). Me jälgime ja analüüsime pakkumisi, et vältida pettuseid ja reeglite rikkumisi.
Rikkumise puhul kasutajakonto blokeeritakse.

 

Teisi töid samas valdkonnas

Valdkonnas "Küttesüsteemid" on 2 aktiivset tööd

no-img Pilt puudub

Küttesüsteemi püstakute vahetus ja radiaatoritega ühendamine

Asukoht: Järvamaa, Paide
Aega jäänud: 3p 20h
Tehtud pakkumisi: 2

Cooper&Hunter Consol Inverter 18

Asukoht: Harjumaa, Tallinn
Aega jäänud: 20h 51 min
Tehtud pakkumisi: 1

Vanemad teated:

Vaata kõiki

Sellel veebilehel kasutatakse küpsiseid. Kasutamist jätkates nõustute küpsiste kasutamisega.

Sulge
 
Minu pakkumine

Reeglid

Pakkumise kirjelduse väli on mõeldud pakkumise detailsemaks lahti kirjutamiseks. Pikema teksti mugavaks sisestamiseks klikkige kasti paremal ülaservas oleval ikoonil.
Pakkumist tehes on keelatud postitada enda kontaktandmeid (nimi, telefon, aadress jne). Me jälgime ja analüüsime pakkumisi, et vältida pettuseid ja reeglite rikkumisi.
Rikkumise puhul kasutajakonto blokeeritakse.