+ Lisa oma töö      

Otsid ehitajat "Vundamenditööd" valdkonnast?

Parima pakkumise ja teostaja leidmiseks lisa oma töö.

Hange on lõppenud!

Võitjaks osutus kasutaja ID 47151

Vundamendi soojustamine ja krohvimine

ID 73311

476 vaatamist

Prindi

  • check Pakkumiste tegemine
    kuni 27.06.2022
  • check Võitja valik kuni
    04.07.2022
  • 3 Töö teostamine
    ja hinnang
Hanke lõpp: E, 27. juuni, 2022
Maakond: Harjumaa
Linn: Tallinn
Tööde algus: E, 13. juuni, 2022 (Soovituslik)
Tööde lõpp: P, 26. juuni, 2022 (Soovituslik)
Ehitusmaterjalid: Töö tellija poolt
Soovin pakkumisi: Tüki- või ühikuhinda

Töö sisu

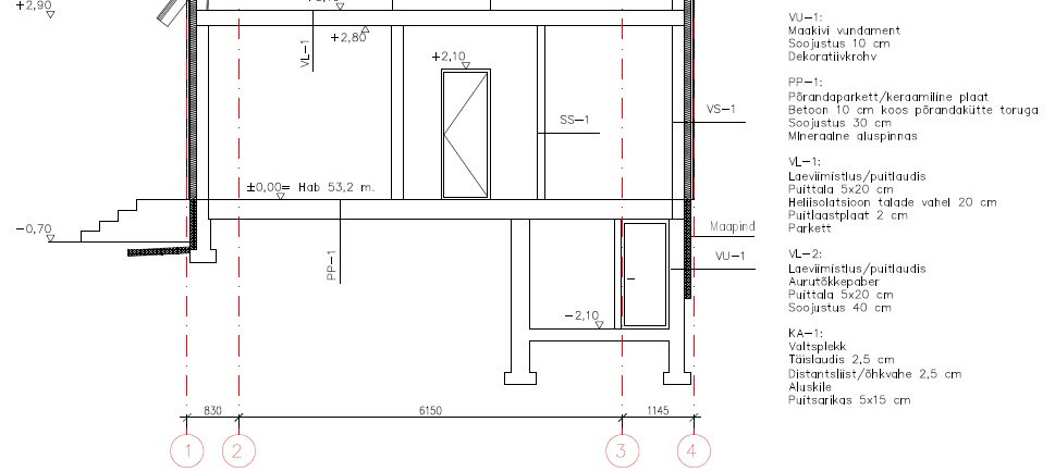
Vanema maja vundamendi soojustamine 10 cm vahtpolüstüreeniga ja krohvimine. Vundamendi kõrgus maapinnast 50-70 cm. Juurdeehituse osas on soojustus paigaldatud, seal vaja vaid krohvida. Maja ehitusalune pind kokku ca 130 m2.

Pildid, video ja failid

Hanke korraldaja: eraisik ID59720

Pakkumised

Pakkumisi kokku: 2

Ettevõte Summa Käibemaks Lisatud Vestlus
Kasutaja ikoon ID47151
Pakkuja profiil Väike nool paremale
2 999€ KM lisandub KM lisandub 13.06.2022 Vestlus (0)
Kasutaja ikoon ID55176
Pakkuja profiil Väike nool paremale
4 350€ KM lisandub KM lisandub 13.06.2022 Vestlus (0)

Pakkumise kirjeldus:

Vastavalt kirjenduse materialid telija poolt

Küsimused hanke korraldajale

Küsimus: private ID55176   13.06.2022 10:48
Tere. Kas väljakaevu tööd on vaja? Või sojusts ainulat maapinnase sokli osa?
Lgp.

Teavita reeglite rikkumisest

Korraldaja vastus: 13.06.2022 12:34

Tere, kaevetööd tuleks teha ise. Samas mahud ei ole väga suured ja mitmes kohas tuleks kaevata labidaga. Tööde maht jooksvates meetrites võiks olla järgmine:
* ei ole vaja kaevata juba paigaldatud soojustusega osas - ca 20 m
* kaevata horisontaalse soojustuse jaoks (madalamalt) - 19 m
* kaevata keldri ulatuses vertikaalselt (sügavamalt) - ca 6-7 m

Kuna maja lähedal on ka puid-põõsaid, siis kindlasti on vaja ka labidatööd teha. Kas koppa üldse kasutada nii väikse mahu osas, ei oska öelda.

Teavita reeglite rikkumisest

Lisa küsimus

Lisa küsimus

Minu pakkumine

Reeglid

Pakkumise kirjelduse väli on mõeldud pakkumise detailsemaks lahti kirjutamiseks. Pikema teksti mugavaks sisestamiseks klikkige kasti paremal ülaservas oleval ikoonil.
Pakkumist tehes on keelatud postitada enda kontaktandmeid (nimi, telefon, aadress jne). Me jälgime ja analüüsime pakkumisi, et vältida pettuseid ja reeglite rikkumisi.
Rikkumise puhul kasutajakonto blokeeritakse.

 

Vanemad teated:

Vaata kõiki

Sellel veebilehel kasutatakse küpsiseid. Kasutamist jätkates nõustute küpsiste kasutamisega.

Sulge
 
Minu pakkumine

Reeglid

Pakkumise kirjelduse väli on mõeldud pakkumise detailsemaks lahti kirjutamiseks. Pikema teksti mugavaks sisestamiseks klikkige kasti paremal ülaservas oleval ikoonil.
Pakkumist tehes on keelatud postitada enda kontaktandmeid (nimi, telefon, aadress jne). Me jälgime ja analüüsime pakkumisi, et vältida pettuseid ja reeglite rikkumisi.
Rikkumise puhul kasutajakonto blokeeritakse.