+ Lisa oma töö      

Otsid ehitajat "Ventilatsioonitööd" valdkonnast?

Parima pakkumise ja teostaja leidmiseks lisa oma töö.

Ventilatsioonitorustiku paigaldus eramajale

ID 73189

430 vaatamist

Prindi

  • check Pakkumiste tegemine
    kuni 10.06.2022
  • check Võitja valik kuni
    17.06.2022
  • 3 Töö teostamine
    ja hinnang
Hanke lõpp: R, 10. juuni, 2022
Maakond: Tartumaa
Linn: Tartu
Tööde algus: E, 20. juuni, 2022 (Soovituslik)
Tööde lõpp: P, 10. juuli, 2022 (Soovituslik)
Ehitusmaterjalid: Töö tellija poolt
Soovin pakkumisi: Summa kogu projektile

Töö sisu

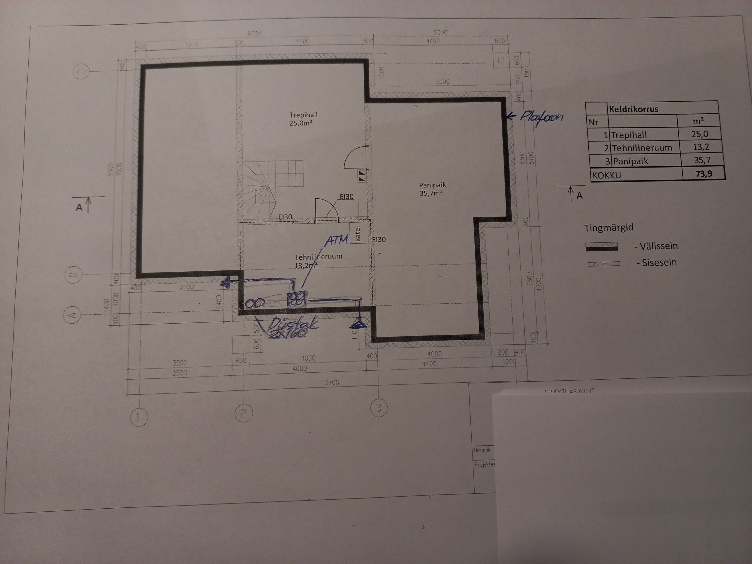
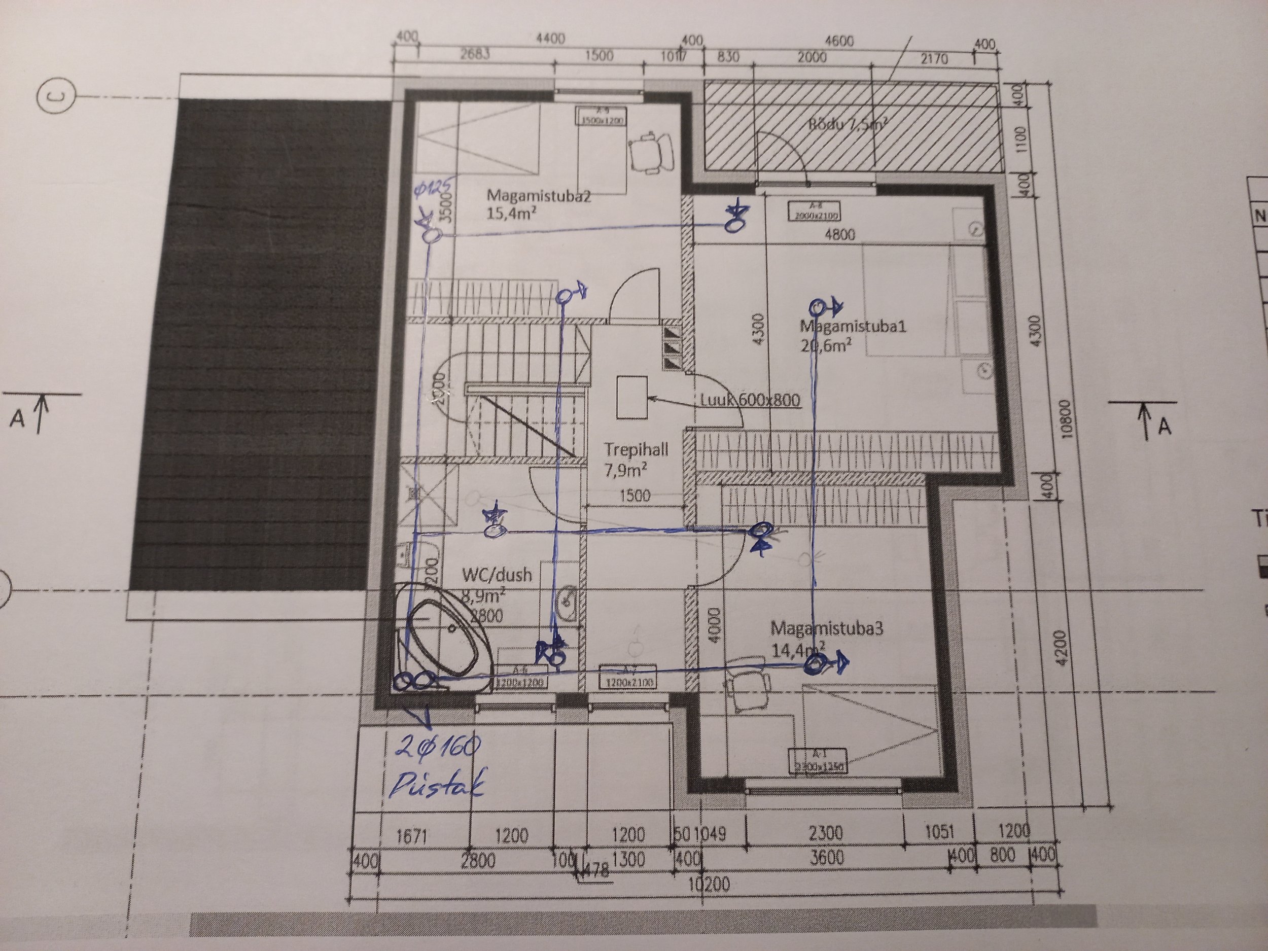
Soovin leida Tartu linnas asuvale ehitusjärgus elamule ventilatsioonitorustiku paigaldajat. Elamu on kahekordne, keldriga, õõnespaneelidest vahelagedega. Püstakute läbiviigud olemas Keldrisse tuleb soojustagastuseagregaat. Esimesel korrusel tuleks kavandatava ripplae alt vedada torud köök-elutuppa, wc-sse ja saunaruumidesse. Teisel korrusel katusefermide alt kolme magamistuppa ja vannituppa.

Pildid, video ja failid

Hanke korraldaja: eraisik ID65535

Pakkumised

Pakkumisi kokku: 0

Küsimused hanke korraldajale

Hanke korraldajale ei ole veel küsimusi esitatud.

Lisa küsimus

Lisa küsimus

Minu pakkumine

Reeglid

Pakkumise kirjelduse väli on mõeldud pakkumise detailsemaks lahti kirjutamiseks. Pikema teksti mugavaks sisestamiseks klikkige kasti paremal ülaservas oleval ikoonil.
Pakkumist tehes on keelatud postitada enda kontaktandmeid (nimi, telefon, aadress jne). Me jälgime ja analüüsime pakkumisi, et vältida pettuseid ja reeglite rikkumisi.
Rikkumise puhul kasutajakonto blokeeritakse.

 

Teisi töid samas valdkonnas

Valdkonnas "Ventilatsioonitööd" on 3 aktiivset tööd

Eramaja ventilatsioonitööd

Asukoht: Tartumaa, Soinaste
Aega jäänud: 4p 12h
Tehtud pakkumisi: 1

no-img Pilt puudub

Ventilatsiooni paigaldamine

Asukoht: Tartumaa, Tartu
Aega jäänud: 1p 12h
Tehtud pakkumisi: 0

Vanemad teated:

Vaata kõiki

Sellel veebilehel kasutatakse küpsiseid. Kasutamist jätkates nõustute küpsiste kasutamisega.

Sulge
 
Minu pakkumine

Reeglid

Pakkumise kirjelduse väli on mõeldud pakkumise detailsemaks lahti kirjutamiseks. Pikema teksti mugavaks sisestamiseks klikkige kasti paremal ülaservas oleval ikoonil.
Pakkumist tehes on keelatud postitada enda kontaktandmeid (nimi, telefon, aadress jne). Me jälgime ja analüüsime pakkumisi, et vältida pettuseid ja reeglite rikkumisi.
Rikkumise puhul kasutajakonto blokeeritakse.