+ Lisa oma töö      

Otsid ehitajat "Betoonitööd" valdkonnast?

Parima pakkumise ja teostaja leidmiseks lisa oma töö.

betoonpõranda remont/kahjustunud pinnakõvenduskihi asendamine

ID 72952

368 vaatamist

Prindi

  • check Pakkumiste tegemine
    kuni 08.06.2022
  • check Võitja valik kuni
    15.06.2022
  • 3 Töö teostamine
    ja hinnang
Hanke lõpp: K, 8. juuni, 2022
Maakond: Harjumaa
Muu asula: Vääna
Tööde algus: R, 08. juuli, 2022 (Soovituslik)
Tööde lõpp: R, 15. juuli, 2022 (Soovituslik)
Ehitusmaterjalid: Töö tegija poolt
Soovin pakkumisi: Summa kogu projektile

Töö sisu

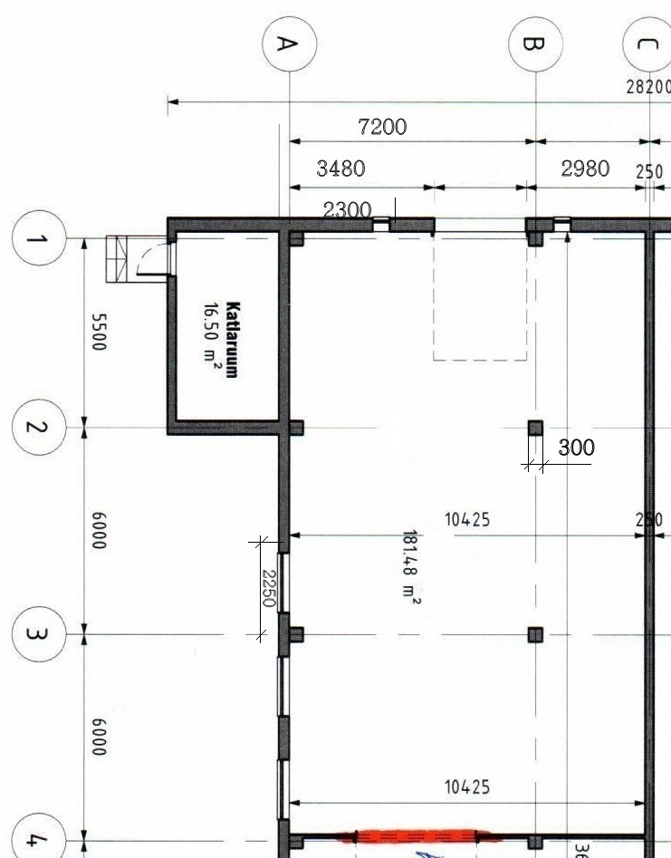
Oleks vaja taastada betoonpõrand 181,5 m2. Põrand oli kaetud mingi kihiga, mis muutis selle tolmuvabaks ja üsna siledaks. Sinna läks peale happeline lahus, mis lahustas selle pinnakihi ja nüüd on pind kare ja tolmab. Happekahjustus on ca 140 ruutmeetril, ca 40 m2 on kaetud epoga, mis tuleks eemaldada. Lõpptulemus peaks olema ühtlane põrand kogu ruumi ulatuses.

Pildid, video ja failid

Hanke korraldaja: ettevõte ID17361

Pakkumised

Pakkumisi kokku: 0

Küsimused hanke korraldajale

Küsimus: private ID63309   01.06.2022 16:44
Tere

Uuriks, kas soovite uut kihti betooni valada või sooviksite epopõrandaga katta kogu pinna?
Kui soovite epopõrandaga katta, siis saaksin aidata .
Kõige niiöelda odavam ja lihtsam oleks pind katta isevalguva epomassiga 2 mm.
Kui selline lahendus on teile vastuvõetav, siis saaksime edasi suhelda.

Teavita reeglite rikkumisest

Korraldaja vastus: 01.06.2022 19:16

See põrand saab olema lao pind, liigub rokla ja mõni väiksem tõstuk. Kas epo seda kannatab? Milline on epo kõvadus võrreldes betooniga? Soov oleks saada vähemalt 2-aastane garantii. Põhimõtteliselt sobib ka epo.

Teavita reeglite rikkumisest

Küsimus: private ID63309   01.06.2022 20:12
Tere

Epopõrand sobib ideaalselt laopindade katmiseks. Kahjuks ei oska tuua välja võrdus tabelit epopõranda ja betooni vahel. Annan alati oma tööle 2 a garantii.
Kõik muidugi oleneb ka , summast mis olete nõus investeerima põrandasse. Hinnad al 30- 45 eur/m2 ehk 2-4 mm kihipaksusega põrandakate.

Teavita reeglite rikkumisest

Korraldaja vastus: 02.06.2022 08:22

Kahjuks epo siiski ei sobi

Teavita reeglite rikkumisest

Küsimus: private ID63309   02.06.2022 09:26
Selge.

Tänan info eest.

Teavita reeglite rikkumisest

Korraldaja vastus:
Hanke korraldaja ei ole küsimusele veel vastanud

Lisa küsimus

Lisa küsimus

Minu pakkumine

Reeglid

Pakkumise kirjelduse väli on mõeldud pakkumise detailsemaks lahti kirjutamiseks. Pikema teksti mugavaks sisestamiseks klikkige kasti paremal ülaservas oleval ikoonil.
Pakkumist tehes on keelatud postitada enda kontaktandmeid (nimi, telefon, aadress jne). Me jälgime ja analüüsime pakkumisi, et vältida pettuseid ja reeglite rikkumisi.
Rikkumise puhul kasutajakonto blokeeritakse.

 

Teisi töid samas valdkonnas

Valdkonnas "Betoonitööd" on 6 aktiivset tööd

Betoonist platsi valamine väljas.

Asukoht: Harjumaa, Luige
Aega jäänud: 8h 56 min
Tehtud pakkumisi: 4

Betoonpõranda valu

Asukoht: Harjumaa, Jõelähtme
Aega jäänud: 2p 8h
Tehtud pakkumisi: 3

Vanemad teated:

Vaata kõiki

Sellel veebilehel kasutatakse küpsiseid. Kasutamist jätkates nõustute küpsiste kasutamisega.

Sulge
 
Minu pakkumine

Reeglid

Pakkumise kirjelduse väli on mõeldud pakkumise detailsemaks lahti kirjutamiseks. Pikema teksti mugavaks sisestamiseks klikkige kasti paremal ülaservas oleval ikoonil.
Pakkumist tehes on keelatud postitada enda kontaktandmeid (nimi, telefon, aadress jne). Me jälgime ja analüüsime pakkumisi, et vältida pettuseid ja reeglite rikkumisi.
Rikkumise puhul kasutajakonto blokeeritakse.